知末
知末
创作上传
VIP
收藏下载
登录 | 注册有礼

D Bay卫生洁具建筑施工图相关项目

2025/08/09 17:56:59
查看完整案例
微信扫一扫
收藏
下载
翻译
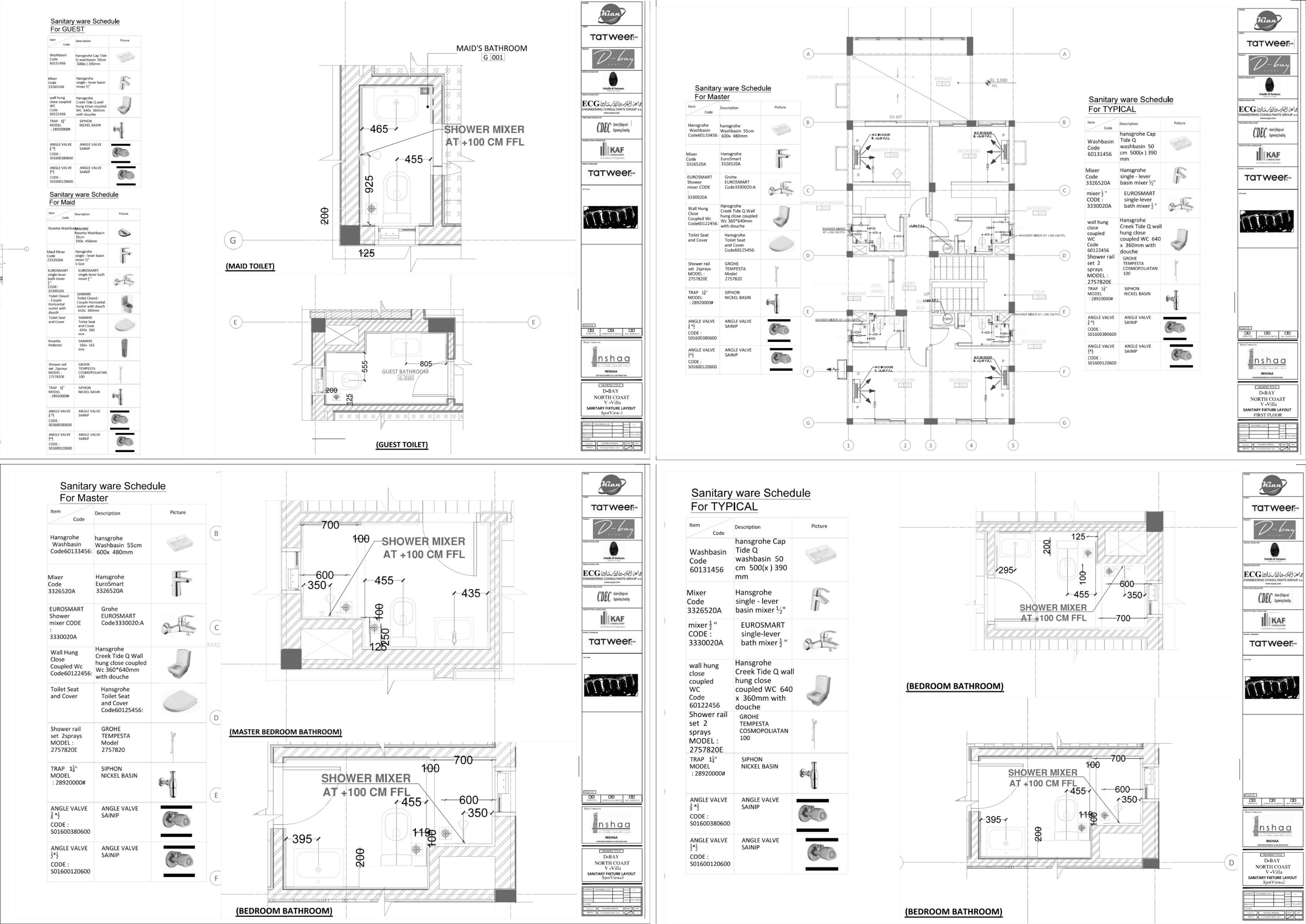
Shop Drawing For Sanitary Fixtures
Architectural Shop Drawing for Sanitary Fixtures in D-Bay,
North Coast under Tatweer Misr and KAF Supervision.
D  Bay卫生洁具建筑施工图相关项目-3
D  Bay卫生洁具建筑施工图相关项目-4
D  Bay卫生洁具建筑施工图相关项目-5
D  Bay卫生洁具建筑施工图相关项目-6
D  Bay卫生洁具建筑施工图相关项目-7
D  Bay卫生洁具建筑施工图相关项目-8
D  Bay卫生洁具建筑施工图相关项目-9
D  Bay卫生洁具建筑施工图相关项目-10
D  Bay卫生洁具建筑施工图相关项目-11
D  Bay卫生洁具建筑施工图相关项目-12
D  Bay卫生洁具建筑施工图相关项目-13
D  Bay卫生洁具建筑施工图相关项目-14
D  Bay卫生洁具建筑施工图相关项目-15
南京喵熊网络科技有限公司 苏ICP备18050492号-4知末 © 2018—2020 . All photos and trademark graphics are copyrighted by their owners.增值电信业务经营许可证(ICP)苏B2-20201444苏公网安备 32011302321234号
客服
消息
收藏
下载
最近