查看完整案例

收藏

下载

翻译
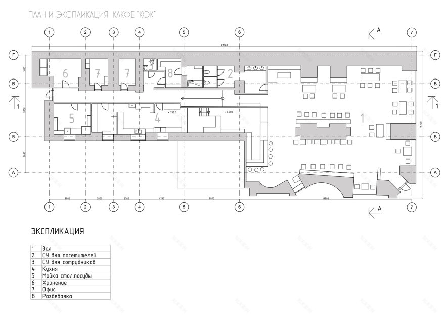
Учебный дизайн проект интерьеров кафе "КОК".
В этом проекте я хотела создать кафе с морской тематикой , но в качестве ключевых образов для вдохновения я решила взять не банальные лодки и вёсла , а эстетику промышленного порта . Помимо интерьера , я также придумала узнаваемый , смешной логотип морячка .
Учебный плакат дизайн проекта интерьеров кафе "КОК"
客服
消息
收藏
下载
最近









