查看完整案例

收藏

下载

翻译
Architects:Felipe Hess Arquitetos
Year:2022
Photographs:Fran Parente
Category:Houses
Contributors:Felipe Hess, Pia Quagliato, Roberta Alecrim
Interiors:Patricia Sturm
City:São Paulo
Country:Brazil
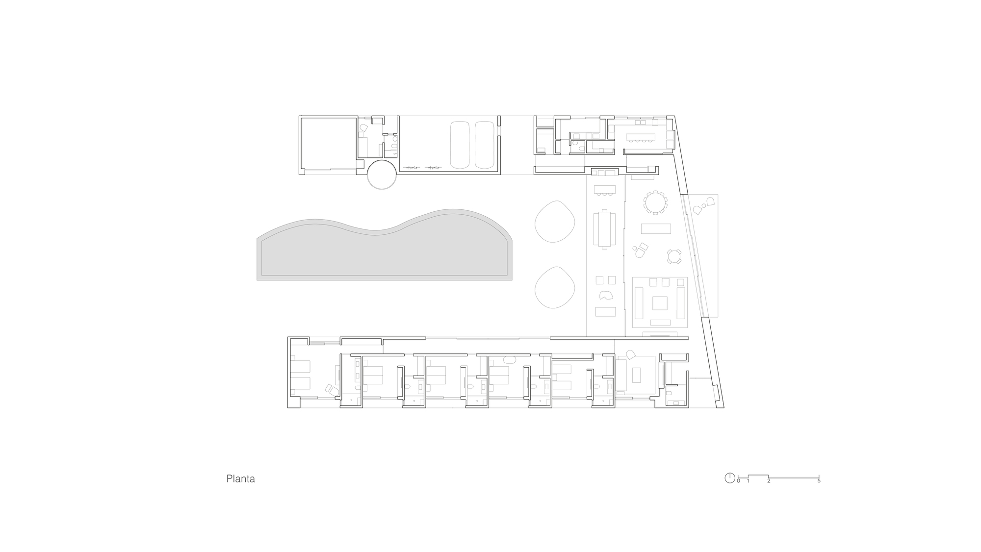
Text description provided by the architects. The Haras House is a single-story residence built on a trapezoidal lot. The "C" shaped volume organizes the spaces around a central courtyard, which features a garden, a porch, and a 25-meter lane, integrated into the resident's daily routine. The design prioritizes privacy and the direct relationship between internal and external spaces.
The program is distributed across three well-defined wings. The private wing contains five suites, with the main suite positioned at the end, offering openings in two directions and views of the courtyard and the side setback. On the opposite side, the service wing accommodates a garage, a support apartment, a laundry room, and a kitchen. Between the two blocks, the social area connects the volumes with a living room, dining room, and central fireplace, in addition to a spacious porch that integrates the indoor spaces with the outdoor pool area.
The floor plan follows the shape of the lot, narrowing at the back and allowing for the insertion of a discreet technical area. The materials palette is concise: dark brick on the façades, continuous granite flooring in the social areas, and wood in the intimate areas. The sloping roof meets the condominium requirements and will have a darkened finish to reinforce the visual unity of the ensemble.
The landscaping, designed by Renata Tilli, complements the project with shaded areas, vegetated setbacks next to the bedrooms, and gathering spaces around the pool. All bathrooms receive natural light, and a gym has been integrated into the main body of the house.
Project gallery
客服
消息
收藏
下载
最近











































