查看完整案例

收藏

下载

翻译
Architects:maa_architecture studio
Area:320m²
Year:2020
Photographs:Oana Crainic,CaroLine Dethier
Manufacturers:Wienerberger,Vande Moortel,Wever & Ducre
Lead Architects:Michel Parubaj
Structural Engineering:Forme & Structures
Carpenter:Rive Gauche
Category:Houses
Architecture:Michel Parubaj
City:Lasne
Country:Belgium
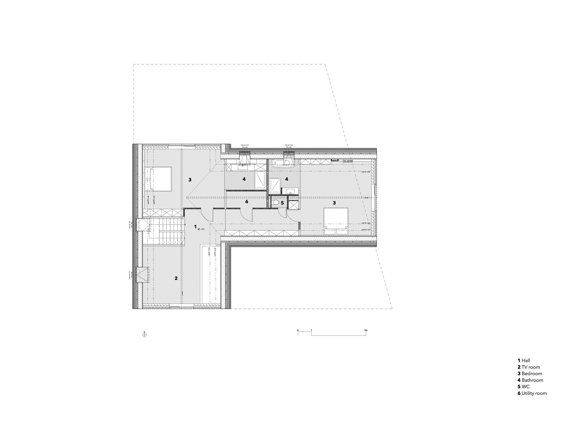
Text description provided by the architects. Urban planning requirements were one of the main elements significantly influencing the design of this new single-family house from the very beginning. The house is located on a 13-acre plot within a residential development in Ohain.
The urban planning policy in Lasne is known for its particular attention to preserving the rural and traditional character of the built environment. As a result, volumetric and material possibilities are immediately limited to a traditional expression: sloped roofs with tiles or slats, brick façades, simple volumes, a clear hierarchy of forms, etc.
However, over the years, lifestyles and construction techniques have evolved considerably. The challenge, therefore, was to design spaces that meet today's needs, make use of contemporary design methods and technologies, while respectfully preserving the character of local architecture and aligning with the spirit of the municipality.
In a contemporary architectural context where grand gestures are commonplace, sometimes for better, sometimes for worse, the exercise proved enriching in many ways.
First, because analyzing traditional architecture in our regions quickly reveals the sound building sense of our ancestors and the beauty of the principles that define their work: simple, discreet, understated, yet rich and ingenious. Then, one soon realizes that respecting the principles of traditional architecture in no way implies a retrograde, conservative, or uncreative mindset.
Project gallery
客服
消息
收藏
下载
最近































