查看完整案例

收藏

下载

翻译
RIVER BLUE interior design
Design: Valeriia Voronchikhina
Design studio: Morion
CG: Yana Skrigalovskaya
Year: 2024
Area: 65 sq. mLocation: Tyumen, Russian Federation
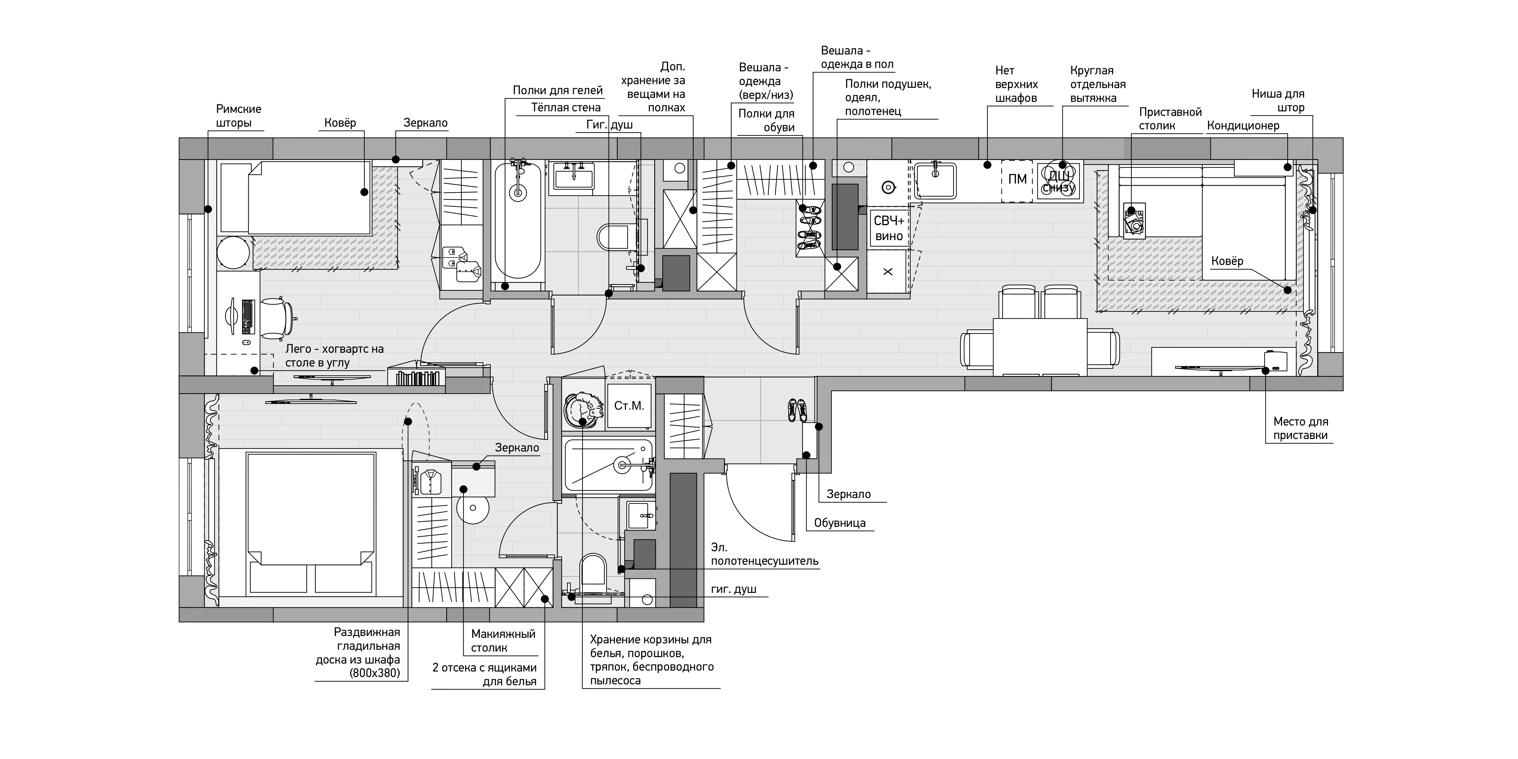
This apartment is for a young family, where both spouses are dentists. The project is designed in a minimalist style. However, every room has a color accent. The overall space is dominated by a deep blue hue. All necessary areas have been thought out in the planning solution and all storage areas are well hidden.
Эта квартира для молодой семьи, где оба супруга - стоматологи. Проект выполнен в стиле минимализм. Однако в каждой комнате есть цветовой акцент. В общем пространстве преобладает глубокий синий оттенок. В планировочном решении продуманы все необходимые зоны и удачно спрятаны все зоны хранения.
HALLWAY
REFERENCES
KITCHEN I LIVING ROOM
REFERENCES
BATHROOM
REFERENCES
CHILDREN'S ROOM
REFERENCES
MASTER BEDROOM
REFERENCES
BATHROOM 2
REFERENCES
Thanks for watching!
Telegram: @pavlerya
Email: gubina.valerya@bk.ru
客服
消息
收藏
下载
最近

















































