查看完整案例

收藏

下载
项目名称 | 香港置地·壹江郡(第叁套)
Project name | Yijiangjun
项目地址 | 中国·重庆
Project address | Chongqing, China
项目面积 | 150㎡
Gross Built Area | 150㎡
项目风格 | 现代极简
Project style | Modern simplicity
设计团队 | KD室内设计事务所
Design team | K.D.interior design
施工落地 | 恺邸工程
Engineering construction | KaiDi construction
陈设设计 | 恺悦陈设
Furnishing construction | KaiYue furnishing
“Less is more”是建筑大师凡德罗说过的一句话,对于屋主来说,家也应该保持最简单的状态,为极简生活。
本案位于香港置地壹江郡,原始结构为四室两厅三卫的户型,业主是一对80后小夫妻。关于家的想象,他们拒绝“模板化”,宁愿牺牲房间数量,强调个性表达,热爱极简。设计师与业主沟通后,决定大胆拆除,以克制的姿态完成这个“灰调空间”,创造一个可以让心静下来,不被打扰的空间。
Project Analysis方案分析
▲ 原始平面图
原始户型为四室两厅三卫的结构,房间多但不适于业主的需求。业主是年轻人,愿意大胆改造,更愿意为了品质“牺牲”房间数量。
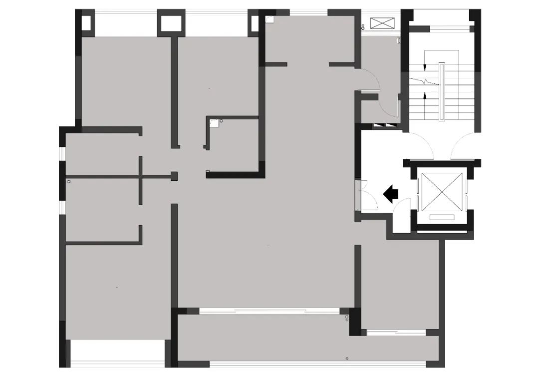
▲平面图
1.考虑到日常居住人口不多,整体户型改造为2室2厅1厨2卫。
2.将原本入户旁边的小卧室与客厅打通,增大客餐厅面积。
3.将原本的主卧改造为次卧。
4.原本的次卧与旁边卧室打通,改造成主卧套房。
5.打掉所有卧室的飘窗,增大可利用面积。
•01
ENTRANCE 入户
见过很多入户的姿态,开门瞬间,内敛的灰色与木色,温暖治愈。
• 02
LIVING ROOM
客厅
业主夫妇注重高质量的陪伴与交流,客餐厅一体化设计,通过灰色奠定低调内敛的气质,结合棉麻、石材、皮革等材质构建利落的线条。开放的阳台涌入大量绿色,成为家里的生机来源,同时也是居家日子中最常去的打卡地。
无主灯设计让随处可走的空间流畅感更加明显,隐形收纳让空间保持干净的同时变得更加有秩序感。客厅休憩区,是朋友来了之后的居心所,可以一起坐地毯上聊聊天、一起追个剧。
• 03 DINING ROOM 餐厅
一张大理石餐桌是这个空间的栖息岛,由它伸展开的通道,带着精致的味道探向四面八方。搭配Flos的吊灯,极简中的阴翳之美。
• 04 KITCHEN 厨房
餐厅的另一端指向厨房,在这张岛台上,业主夫妇在这里度过很多深夜食堂的时刻。岛台旁边是半开放的餐边柜,酒柜里是女主人淘来的各种杯子,琳琅满目,生活也因此变得更加多元有趣。
• 05
STUDY ROOM
书房
这既是书房,也是多功能活动室。视线沿着百叶帘游走,给我们带来一些独特的光影感受。一盏Tradition花苞灯被设计师指派到特定位置,当灯光亮起来,聚拢丝丝烟火气。
• 06 MASTER BEDROOM 主卧
质感漆的光泽让极简的造型墙显露出别样的肌理美感,低矮的软包靠背床,人的压力也跟着释放一截,这个卧室特别好睡。
独立的衣帽间,设计师通过材质和色彩雕琢这份敦实感,一点点用心的细节都在展示这方空间的美。
• 07 SECOND ROOM 次卧
只是简单的布置,省去繁琐的表达,“只用来睡觉”的卧室很讨喜,配上良好的光线和吊灯带来的温馨感,一秒入睡。
• 08 BATHROOM 卫生间
卫生间沿用空间调性,你一定会看上角落里101 copenhagen的花瓶,它是女主人淘来的,特别适合这个空间。
MORE CASES
……
客服
消息
收藏
下载
最近






























