查看完整案例

收藏

下载

翻译
ДИЗАЙН ПРОЕКТ ЭТНО-ТУРИСТИЧЕСКОГО
КОМПЛЕКСА "2150"
Россия, Кабардино-Балкария, Терскол
DESIGN OF ETHNIC HOTEL "2150"
Russia, Kabardino-Balkaria, Terskol
Проект посвящен созданию этно-туристического комплекса в Кабардино-Балкарии. Название проекта "2150" появилось из-за расположения объекта в деревне Терскол, находящейся на высоте 2150 метров над уровнем моря, одна из самых высоких точек Европы
The project is dedicated to the creation of an ethno-tourist complex in Kabardino-Balkaria. The name of the project "2150" appeared due to the location of the facility in the village of Terskol, located at an altitude of 2150 meters above sea level, one of the highest points in Europe
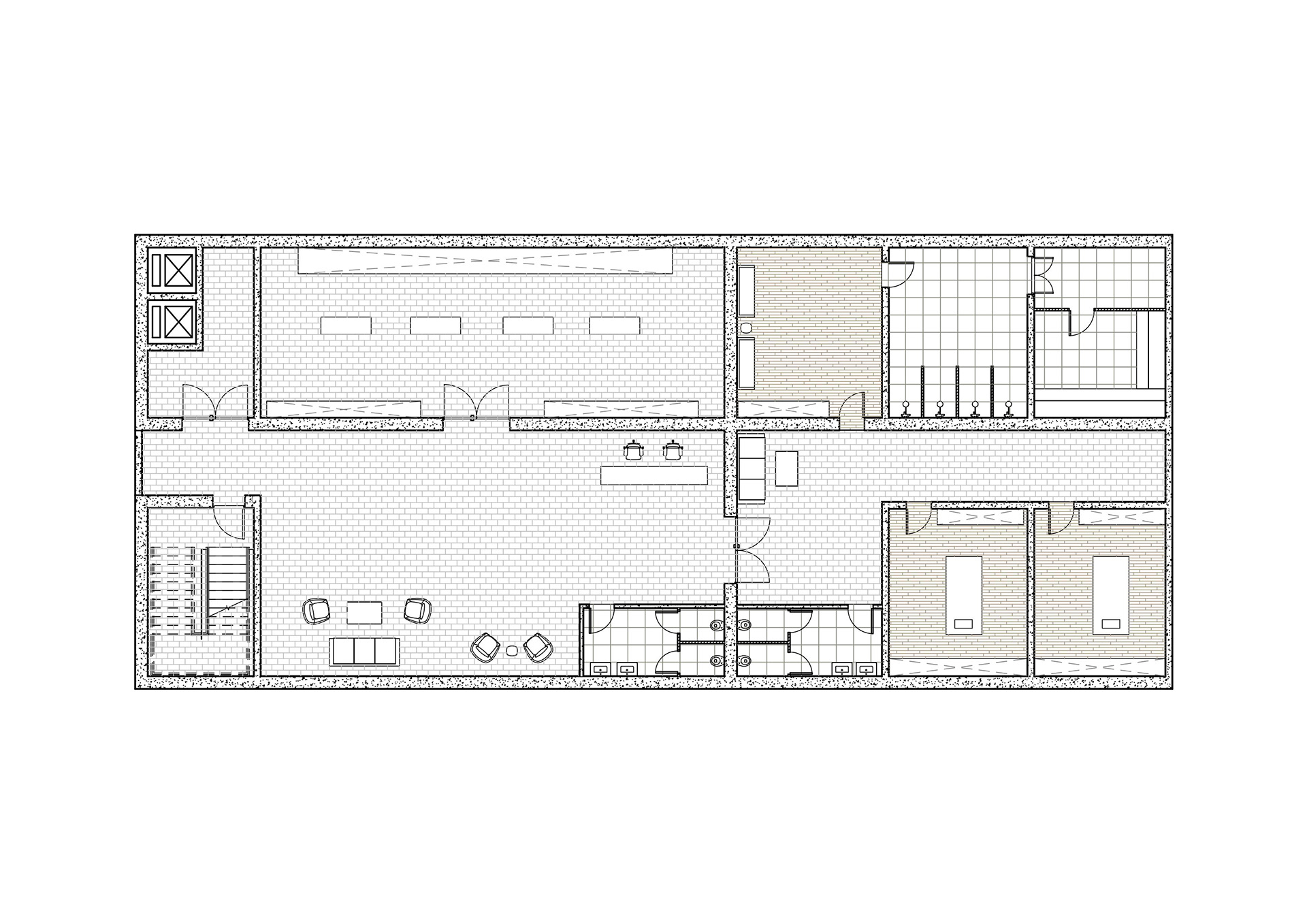
1 ЭТАЖ
1st floor
↓
На первом этаже расположились зона ресепшена с местами для ожидания клиентов, а также ресторан.
Все пространства комплекса включают в себя этнические мотивы и предметы интерьера
On the first floor there is a reception area with places for waiting for customers, as well as a restaurant.
All spaces of the complex include ethnic motifs and interior items
2 ЭТАЖ
2nd floor
↓
Уютные номера наполненые духом гор. Ниже представлен номер люкс, его две спальни, подходящий для большой семьи
Cozy rooms filled with the spirit of the mountains. Below is a suite with two bedrooms, suitable for a large family.
БРЕНДИРОВАННЫЕ ЭЛЕМЕНТЫ
branded elements
↓
Были также разработаны брендированные элементы, мерч и этнический узор, использованый в интерьере, основанный на мотивах ковровых изделий Кавказа
Branded elements, merch, and ethnic patterns used in the interior, based on carpet motifs of the Caucasus, were also developed
спасибо за то, что уделили время проекту и остались до конца. до новых встреч!
thank you for staying until the end, hope you enjoyed this project. untill next time!
:)
SOFTWARE : 3DS MAX, REVIT, ADOBE LIGHTROOM, ADOBE PHOTOSHOP, ADOBE ILLUSTRATOR
客服
消息
收藏
下载
最近




















