查看完整案例

收藏

下载

翻译
RHYTHMS (p. II) interior design
Design: Valeriia Voronchikhina
Design studio: Morion
CG: Yana Skrigalovskaya
Year: 2024
Area: 141 sq. m (house)Location: Tyumen, Russian Federation
Software: 3ds Max, Corona renderer, Photoshop, Archicad
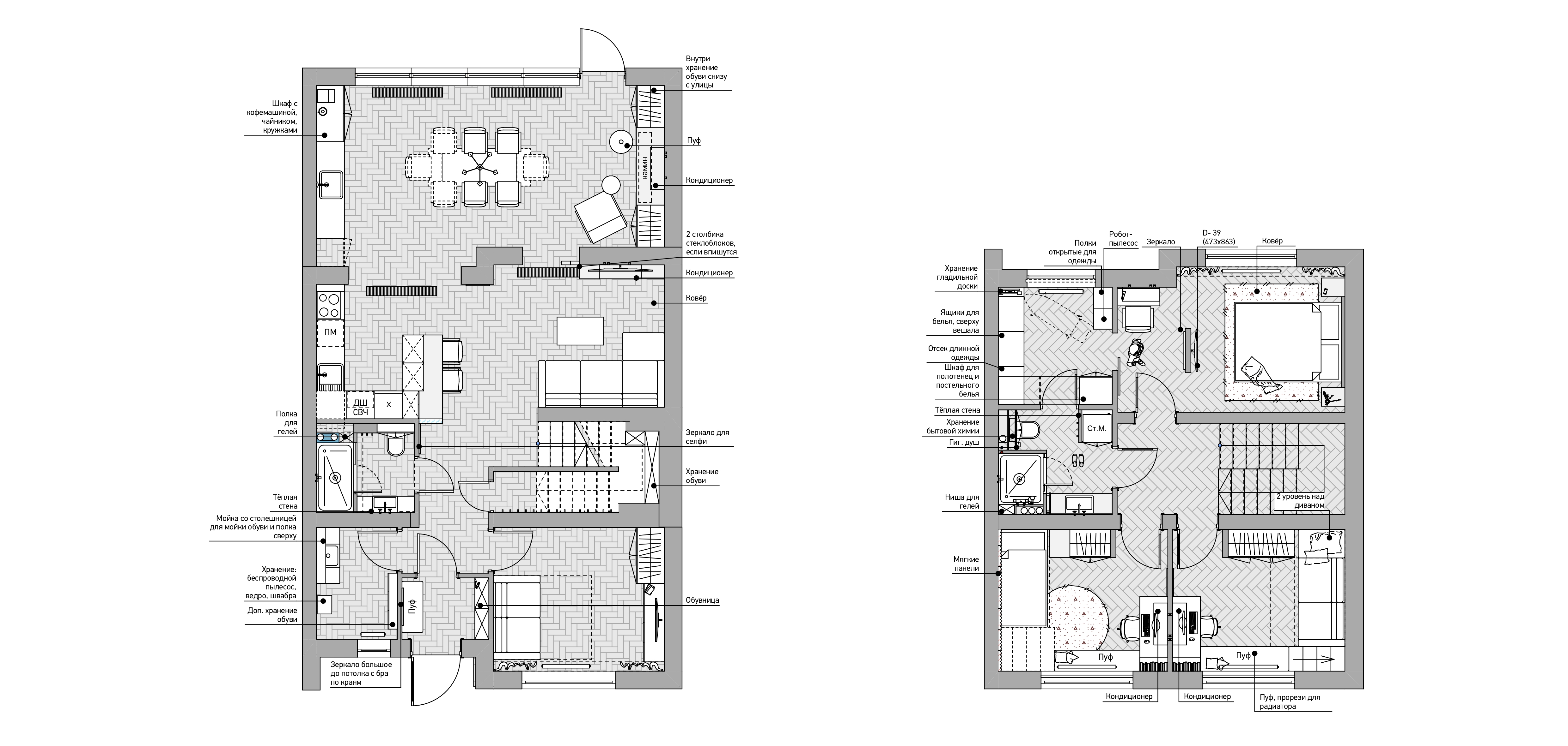
In this case, you are presented with the second floor of a townhouse with a master bedroom and two bedrooms for children, including a master bathroom. One of the customers' wishes was to make the bedroom in dark blue-green shades, creating a cozy, subdued, secluded atmosphere. Children's room 1 is for the youngest daughter, whose name is Olivia, and it was decided to create a room with an emphasis on olive color. It was shown in the visualizations. what will the room look like in the near future, while the daughter is a baby, and then during school days. Nursery 2 is for the eldest daughter, who had one leg already in her teens. And she really wanted her own cozy separate space, she really wanted the 2nd level of the bed for gatherings. And the girl's favorite color was lilac.
В данном случае вам представлен второй этаж таунхауса с мастер-спальней, и двумя спальнями детей, в том числе мастер-санузел. Одним из пожеланий заказчиков было сделать спальню в тёмно-сине-зелёных оттенках, создавая уютную приглушенную, уединённую атмосферу. Детская комната 1 для младшей дочери, которую зовут Оливия, и было решено выполнить комнату с акцентом на оливковом цвете. Было показано на визуализациях. как будет выглядеть комната в ближайшее время, пока дочь- малышка, и потом уже в школьные времена. Детская комната 2 для старшей дочери, которая была одной ногой уже в подростковом возрасте. И ей очень хотелось своего уютного отдельного пространства, очень хотелось 2-ой уровень кровати для посиделок. А любимым цветом у девочки был сиреневый.
MASTER BEDROOM
REFERENCES
MASTER BATHROOM
REFERENCES
CHILDREN'S ROOM 1
REFERENCES
CHILDREN'S ROOM 2
REFERENCES
Thanks for watching!
Telegram: @pavlerya
Email: gubina.valerya@bk.ru
客服
消息
收藏
下载
最近














































