查看完整案例

收藏

下载

翻译
GARNET SUNSET interior design
Design: Valeriia Voronchikhina
Design studio: Morion
CG: Yana Skrigalovskaya
Year: 2025
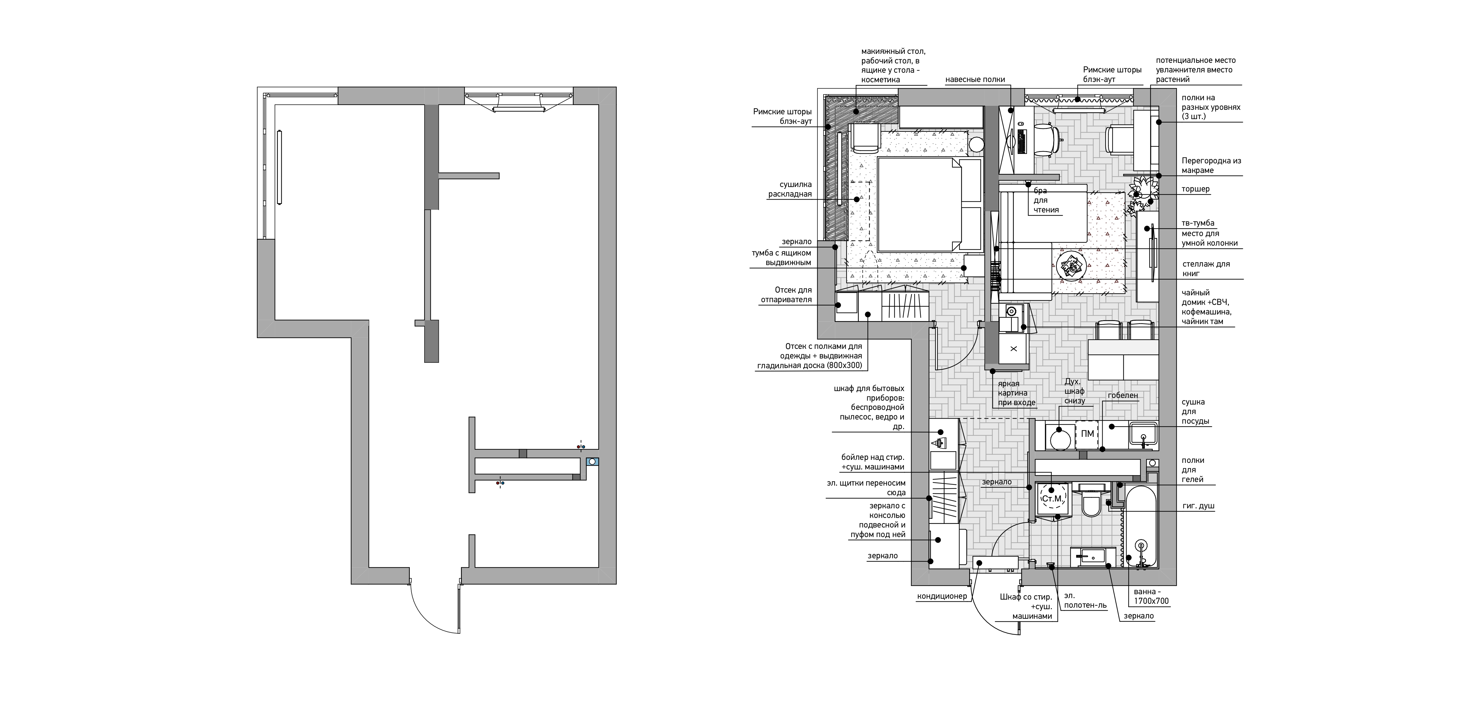
Area: 47 sq. mLocation: Tyumen, Russian Federation
Software: 3ds Max, Corona renderer, Photoshop, Archicad
The project of this apartment was created for a young couple, where the girl is a very creative person with many hobbies (including macrame). The customer wanted to combine mid century, the play of light, color, and texture of real wood in the interior, as well as the inclusion of magical colored glass sconces that create sunbeams. The result is a bright, characteristic, playful interior, full of details, a play of colors, shapes and cozy textures. In the bathroom and bedroom, the concept changed several times, and eventually we came to more intimate options.
Проект данной квартиры создавался для молодой пары, где девушка очень творческий человек со множеством хобби (в том числе макраме). Заказчице хотелось в интерьере совместить мид сенчури, игру света, цвета, фактуры настоящего дерева, а также обязательно включение волшебных бра из цветного стекла, создающих солнечных зайчиков. В итоге получился яркий, характерный, игривый интерьер, насыщенный деталями, игрой цвета, форм и уютных текстур. В ванной и спальне концепция несколько раз менялась, а в итоге мы пришли к более камерным вариантам.
HALLWAY
REFERENCES
KITCHEN I LIVING ROOM
REFERENCES
BATHROOM
REFERENCES
BEDROOM
REFERENCES
Thanks for watching!
Telegram: @pavlerya
Email: gubina.valerya@bk.ru
客服
消息
收藏
下载
最近






















































