查看完整案例

收藏

下载
家是未完成的俳句,是时间与自然共同执笔的修行。当一位在日本生活十年的插画师,将“家”托付时,设计师决定用侘寂的哲学为她的日常铺底。原木是未干的画布,暖白是光的留白,而所有设计细节都将成为岁月笔触的载体。这里没有“完美”的装饰,只有与时光共生的秩序。空间以最谦逊的姿态,等待生活的墨迹缓缓渗透。
START READING
空间的呼吸,从三居到一居的减法
Space composition, flowing poetic lines
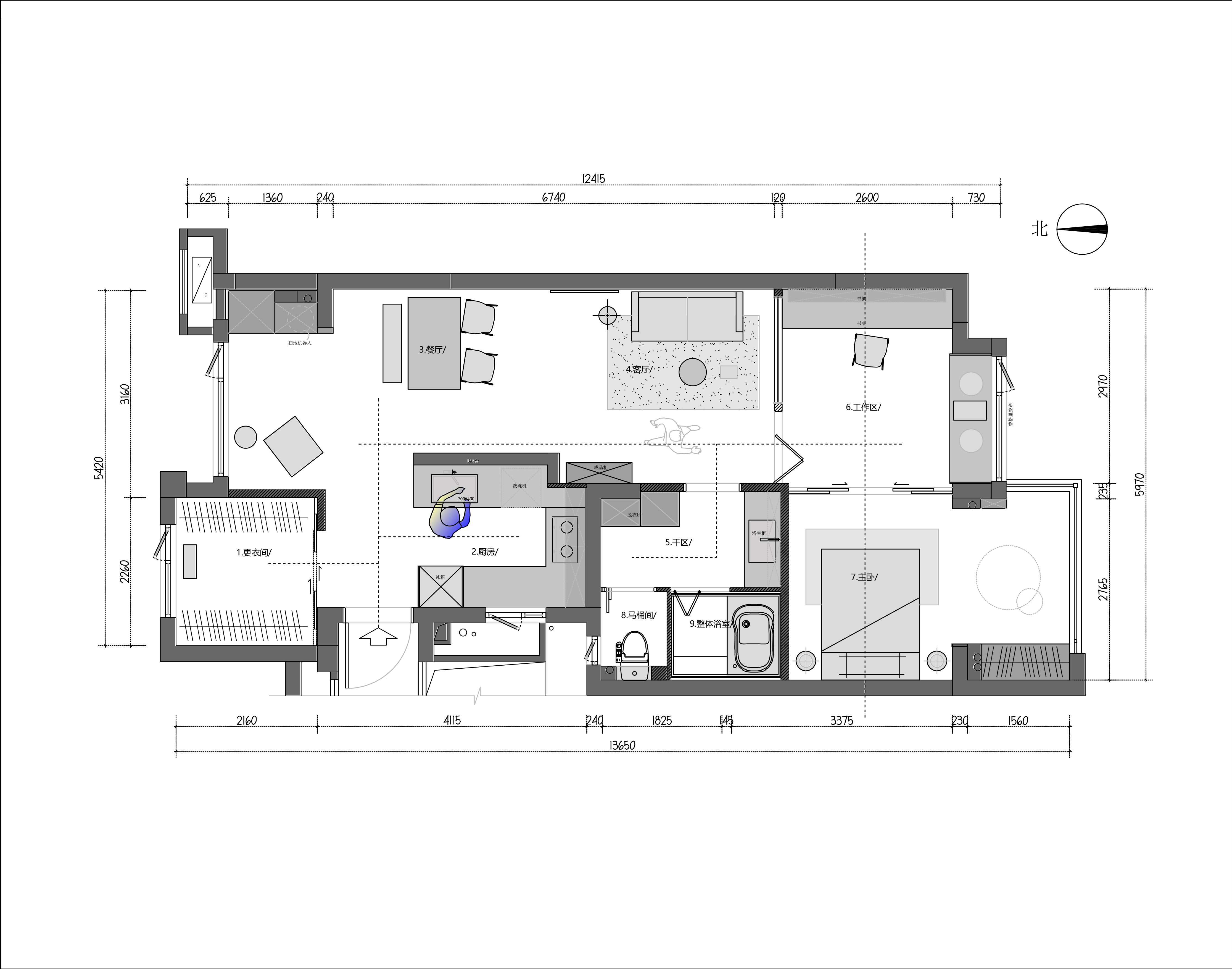
原户型是标准的三居室,但设计师选择打破边界,让空间回归“居住”的本质。厨房改为开放式,与客餐厅融为一体,烹饪与交谈的界限被柔化;主卧与工作室以一扇可推拉的障子纸门相连,推开是睡眠的静谧,关上是创作的专注;卫生间重构为三分离式,日式马桶间与深浸式浴室各自独立,满足屋主对沐浴仪式的追求。这种“减法”并非舍弃,而是让空间回归功能的核心。
正如侘寂美学中“残缺”比“完整”更接近真实,这里每一个区域都为生活留出呼吸的缝隙。空间没有生硬的隔断,只有光与风的自由穿行。晨光从客厅的障子纸漫入,午后的斜阳在餐厅的轨道灯下停留,暮色则透过厨房的开口与操作台上的不锈钢锅具相遇。每个区域都是诗句的段落,共同构成完整的叙事。
材质的诗性,原木、暖白与时间的对话
The poetic quality of materials
材质是空间的肌肤,承载着日式美学对“自然”的敬畏。墙面采用特殊纹理的艺术漆,如宣纸铺就的底色,与原木地板的天然纹路形成粗粝与温润的对话;橱柜的哑光板材与餐桌的实木结疤,则以低调的质感平衡功能需求——防水、易清洁的现代材质与木质元素的传统纹理在此握手言和。
最妙的是细节的隐喻:玄关衣帽间的原木隔板以开放式排列,让呼吸感延续到最细处;工作室墙面的隔板陈列着未完成的画稿与手作小物,成为生活的展览墙。
其次,玻璃与纸质的碰撞更妙:前者现代,后者传统,却因共同的透光性成为光的容器。这些材质没有刻意雕琢,却因时间的浸润而愈发温润。材料没有高低之分,只有是否贴合生活的考量。
光线的叙事,让光成为空间的主人
Let light become the master of space
光是设计的灵魂,设计师让光线在空间中自由流动。客厅的障子纸推拉门滤去刺目阳光,只留下朦胧的影;餐厅的黑色轨道灯以聚光突出餐桌中心,而厨房的筒灯则以均匀的光线照亮操作台。
最动人的细节藏在光影的流动里:清晨,阳光从客厅的窗户斜入,穿过餐厅的开口,在厨房的瓷砖上画出一道金色的线;夜晚,客厅的暖灯与工作室的柔光台灯同时亮起,将空间切割成明暗交织的块面。这里的光线没有固定形状,却让空间有了时间的维度。正如侘寂美学中“阴影比明亮更值得凝视”,光与暗的交替成为日常最动人的诗行。
侘寂的留白,空白作为秩序的哲学
The Philosophy of Blank as Order
设计不是创造“好看的房子”,而是让空白成为一种秩序。客厅没有多余的色彩与物件,一张沙发、一盏暖灯、一张边几,如同画布上的留白,给呼吸和梦境留出足够的空间;餐厅的木质餐桌仅以白色花瓶点缀,让用餐成为与自然对话的仪式;工作室的原木书桌宽大而简洁,隔板上的画材与速写本自然陈列,既是创作的基地,也是灵感涌动的角落。
这些“留白”并非空洞,而是为生活预留的弹性。总之,搭配上侘寂美学中“空”比“满”更接近本质,这里的一切都等待着被使用、被填充、被赋予意义。
这个家像一首未完成的俳句,原木是平仄,光线是韵脚,而生活是永远续写的下句。当插画师在障子纸门后的衣帽间整理衣物,当家人在开放式厨房的L型台面上切配食材,当深夜的工作台亮起柔光,空间便不再是静止的设计作品,而是与居住者共同呼吸的生命体——木色会随四季变深,光线会随心情流转,而所有的故事,都将在这张生活的画布上自然生长,永不落幕。
不难想象,“时间会让一切自然生”,这个家,是她为自己画的第一幅画,而剩下的颜色与细节,终将在日常中慢慢铺陈开来
福州纵远联行空间设计有限公司 | 设计单位
于旭辉 | 设计团队
福建·福州 | 项目地址
70㎡ | 项目面积
原木、复合地板、宣纸、艺术漆、岩板、玻璃、日本整体浴室 | 主要材料
于旭辉 福州纵远联行空间设计有限公司 创始人/设计总监
荣誉:
金外滩奖
艾特奖
上海设计周十大办公空间
40 UNDER 40 当代设计杰出青年 (福州)
CIID 福州“金十佳”优秀办公空间奖
金住奖十大居住空间设计师(福州)
Add:福州市仓山区点金财富中心1#1210
客服
消息
收藏
下载
最近



























