查看完整案例

收藏

下载
这座住宅位于科尔多瓦省普尼利亚山谷(Punilla Valley),靠近龙山(Cerro El Dragón),坐落在拉法尔达(La Falda)与韦尔塔格兰德(Huerta Grande)之间。场地以起伏的丘陵与山地景观为特征,可眺望开阔的山谷景致,呈现出科尔多瓦半干旱地区典型的自然风貌。基地地势陡峭,位于普尼利亚山谷与奇卡斯山脉(Sierras Chicas)之间的山麓地带。
The house is situated in the Punilla Valley, Córdoba Province, near Cerro El Dragón, between the towns of La Falda and Huerta Grande. The site is characterized by rolling hills and mountain landscapes with expansive valley views, typical of the semi-arid Córdoba region. The terrain, with its steep topography, extends across the foothills separating the Punilla Valley from the Sierras Chicas.
▼项目周围环境,surrounding environment©Gonzalo Viramonte
▼建筑外观,building exterior©Gonzalo Viramonte
▼建筑以巨石混凝土墙体构筑,building is constructed with cyclopean concrete walls©Gonzalo Viramonte
住宅位于地块最高处,临近出入口道路,依托一处高地平台展开。建筑以线性布局分为上下两层,整体朝向西北。
Perched on an elevated plateau near the access road and at the highest point of the plot, the house is organized over two levels in a linear layout, with a clear orientation toward the northwest.
▼以线性布局分为上下两层,the house is organized over two levels in a linear layout©Gonzalo Viramonte
底层如同坚实的基座,以巨石混凝土墙体构筑,内含客房、工艺工作室、服务空间与从车库进入的主入口,并延伸出一个外部露台。
The ground floor, conceived as a solid base, is constructed with cyclopean concrete walls accommodating guest bedrooms, a craft workshop, service areas, and the main entrance from the garage, along with an exterior terrace area.
▼底层如同坚实的基座,the ground floor, conceived as a solid base©Gonzalo Viramonte
▼混凝土细部,concrete detail©Gonzalo Viramonte
上层则为独立的外露混凝土结构,依据6米跨度的模块化网格组织,四周设有悬挑。模块尺度因功能而异:公共空间采用6米模块,私密空间则为3米模块。两大功能区通过一个宽敞的入口大厅分隔,该大厅亦作为主要入口,自此可远眺南向全景。
The upper floor consists of an independent exposed concrete structure, organized through a modular grid of 6-meter spans with perimeter cantilevers. The module size varies according to function: 6 meters in the social area and 3 meters in the private zones. Both areas are clearly differentiated and separated by a generous entrance hall, which from the main access provides panoramic views to the south.
▼混凝土回廊,concrete corridor©Gonzalo Viramonte
▼混凝土墙上的光影变幻,the play of light and shadow on concrete walls©Gonzalo Viramonte
▼混凝土墙上的光影变幻,the play of light and shadow on concrete walls©Gonzalo Viramonte
住宅的设计有意展现其结构逻辑:结构即建筑。由巨石混凝土墙体形成的石质基座,顺应整体的几何秩序,承托上层体量。上层向四周伸展,在除南立面以外的所有界面形成环绕廊道。南侧同样以悬挑形式布置,设置了一条纵向的内部流线,并以悬挂式隔墙与结构框架之间形成界面,仅由三处大体量的混凝土构件打断,以框取特定景观。该走廊由顶部自然采光照亮,使阳光能够进入并激活相邻空间。
The house intentionally reveals its structural logic: here, the structure is the architecture. The stone base formed by the cyclopean walls, aligned with the modular geometry guiding the entire project, supports the upper volume, which extends toward the perimeter to create galleries on all façades except the southern one. On the southern side, also cantilevered, runs the interior longitudinal circulation, protected by a suspended partition between the frames, interrupted only by three large concrete volumes that frame specific views. This circulation receives natural overhead light, allowing direct sunlight to animate the interior spaces adjacent to the southern partition.
▼通往上层楼梯,concrete staircase towards the upper level©Gonzalo Viramonte
▼通往上层楼梯,concrete staircase towards the upper level©Gonzalo Viramonte
设计理念
Concept
住宅与周边景观保持持续对话,同时以自身的材料性表达确立独立姿态。设计刻意限定在两种材料——天然石材与“人工石材”混凝土——以此统一所有构造元素,并突出重力与光影轻盈之间的张力。光线在此仿佛具备实体质感,唤起对区域氛围与地理特质的感知。
The house engages in a continuous dialogue with the surrounding landscape while asserting its own material expression. The deliberately limited palette of two materials—natural stone and concrete, the “artificial stone”—unifies all construction elements and emphasizes the tension between gravity and the lightness introduced by daylight. This light, at times seemingly solid, evokes the atmosphere and geography of the region.
▼客厅空间,living room space©Gonzalo Viramonte
▼餐厅空间,dining hall©Gonzalo Viramonte
▼山景露台,the terrace towards the mountain view©Gonzalo Viramonte
▼重力与光影轻盈之间的张力,emphasizes the tension between gravity and the lightness introduced by daylight©Gonzalo Viramonte
这座住宅被设想为一处未完成、灵活而充满活力的舞台,作为一件“开放的作品”,其生成意义在于始终保留余地,供居住者主观地加以占有与演绎,并逐渐成为环境的私密延伸。
Conceived as an unfinished, flexible, and dynamic stage, the house embraces its condition as an open work: incomplete in the most generative sense, subject to the subjective appropriation of its inhabitants, aspiring to become an intimate extension of its surrounding environment.
▼与周边景观保持持续对话,engages in a continuous dialogue with the surrounding landscape©Gonzalo Viramonte
▼浴室空间,bathroom space©Gonzalo Viramonte
▼场地平面,site plan©Cristián Nanzer
▼一层平面,ground floor plan©Cristián Nanzer
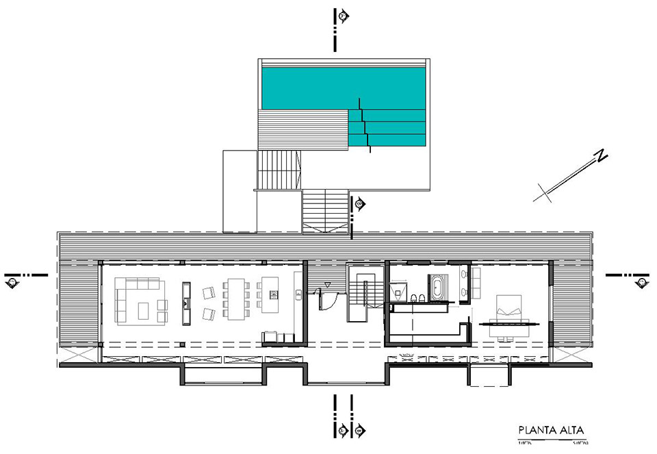
▼二层平面,first floor plan©Cristián Nanzer
▼屋顶平面,roof plan©Cristián Nanzer
▼立面,elevation©Cristián Nanzer
▼剖面,section©Cristián Nanzer
▼剖面,section©Cristián Nanzer
House on Cerro El Dragón – Punilla Valley, Córdoba Province
Built area: 529.70 m²
Architect / Project: Cristián Nanzer /
Technical Direction: Cristián Nanzer / Ricardo Tesoreiro
Collaborators: Lourdes Cuadro / Juan Dimuro
Structural Engineer: Edgar Morán
Construction Management: Ricardo Tesoreiro
Builder: Juan Pacheco
Electrical Installations: Gabriel Canelo
Carpentry: Urbantek Company /
Construction period: 2019 – 2022
Photography of completed project: Gonzalo Viramonte
Photography of construction progress: Juan Dimuro
Author’s report: Cristián Nanzer
客服
消息
收藏
下载
最近

























































