查看完整案例

收藏

下载
Paris Internationale是一场以独立、合作与伙伴关系为驱动力的艺术博览会,每年在不同地点展出当代艺术。博览会利用现有的丰富基础设施,在有限的时间内创造出独特且具有环保意识的体验。选择处于“过渡状态”的建筑作为展场,是一种积极回应城市中空间闲置和单一使用问题的承诺。连续三年,Christ & Gantenbein与Paris Internationale合作,打造的展览设计不仅回应了每一处场地的独特性,还凸显了建筑的类型学特征,强调空间的渗透性与连通性。
Paris Internationale, an art fair driven by a mindset of independence, collaboration, and partnerships, displays contemporary art at different locations each year. The fair leverages the abundantly available existing infrastructures to create a unique, environmentally conscious experience for a limited time. The strategy to occupy buildings in an in-between state is a strong commitment to address the problem of underutilization and mono-use of spaces within our cities. For three consecutive years, Christ & Gantenbein have collaborated with Paris Internationale, creating an exhibition design that not only responds to the uniqueness of each venue but also accentuates the building’s typological features, with a strong emphasis on permeability and connectivity.
▼博览会所在建筑外观,Exterior view of the building where the fair is held©Giaime Meloni
通过建立清晰的结构框架,以墙体取代传统展位“盒子”的方式,打破了艺术博览会常见的封闭格局。该体系脱离了“走廊”作为核心组织单元的惯例,以最简化的手段与材料,巧妙引导观众在场地中自由流动。
Adopting a radical system that sets a clear framework and by introducing walls instead of boxes, the design challenges the encapsulation typical of art fair layouts. This system, a departure from the corridor as the art fair’s central organizational unit, subtly guides visitors around the building with minimal effort and materials.
▼以墙体取代传统展位“盒子”,introducing walls instead of boxes©Giaime Meloni
忠于Paris Internationale的一贯气质,霓虹灯与简洁墙体依然是核心视觉元素,既划定展位,又凸显作品。方案在保持场地历史完整性的同时,叠加现代元素,形成当下与过去的对话。Christ & Gantenbein 的建筑介入,以极简手段实现语境性与激进性的融合,为参展者与观众带来独特体验。2025 年博览会将更换展址,相关信息将于近期公布。
True to the identity of Paris Internationale, neon lights and simple walls with minimal finishes remain primary elements, delineating booths and showcasing artwork. The result, underpinned by a commitment to maintaining the building’s historical integrity while introducing modern elements that facilitate the display and appreciation of art, is a bold blend where the past dialogues with the present. Christ & Gantenbein’s architectural interventions for Paris Internationale imparts this fair with an approach that merges contextuality with radicality through minimal means, ensuring exhibitors and visitors a unique experience. For the 2025 edition the fair will change venue and details will be communicated soon.
▼霓虹灯与简洁墙体成为核心视觉元素,neon lights and simple walls with minimal finishes remain primary elements©Giaime Meloni
2023年及2024年巴黎艺术博览会
Paris Internationale 2024 and 2023
Both the 9th and 10th edition of the fair took place at the historic former telephone exchange of Poste Bergère-Trudaine on 15-17 Rue du F. Poissonnière. The main building with its long plateaux was designed by François Le Coeur in 1911: it is a monumental, infrastructural and industrial building with striking art-deco ornaments, such as an iron clock and gates crafted by sculptor Szabo. A post office and technical building with eight floors were subsequently added, respectively in 1919 and 1935, introducing further spatial richness to the venue. Lately, its entire interior finishings and infrastructure was removed, waiting for a renovation to come, revealing a bare, skeletal framework, as well as its potential.
▼呈现出裸露的骨架结构,exposing the skeletal structure©Giaime Meloni
▼开放的展览位,open booth©Giaime Meloni
▼强化了与建筑的联系,emphasize the connection to the building©Giaime Meloni
这一独特场地拥有大尺度的玻璃开口、双层挑高空间与三处光线充盈的内院,为展览提供了极高的空间品质,使建筑介入得以尽可能简约。策略上延续“以少取胜”,不仅复用往届构件,也充分利用场地现有条件。开放的展位格间强化了与建筑的联系,并促进画廊之间的互动,这是Paris Internationale的标志特征。双端开放且略微退让于建筑立面的展位,创造出多重通道,激发观众的偶遇体验;部分展位甚至由两家画廊共享,更进一步鼓励艺术作品间的对话。
This exceptional location features large plateaux with extensive glazing, double height spaces under exposed concrete beams, and three internal courtyards flooded with light. It thus provides a given of very high-quality that allows the architectural intervention to be as minimal as possible. This strategy of economy of means is further pursued in the reuse of many elements from previous editions, together with the infrastructure found on site. The open bays emphasize the connection to the building and foster interaction between galleries, which is a defining characteristic of Paris Internationale. The fact that the bays are open at both ends, and set back slightly from the building’s façade, creates multiple pathways for visitors, potentially inviting more opportunities for serendipity. Some of the bays are shared by two galleries, further encouraging a strong dialogue between the artworks.
▼双层挑高空间,double height spaces ©Giaime Meloni
▼大尺度的玻璃开口带来的充足光照,extensive glazing brings sufficient sunlight©Giaime Meloni
Christ & Gantenbein的展览设计将建筑转化为“城市空间”,营造开放与交流的氛围。在多达5000平方米的场地中,71个展位与开放区域相辅相成,鼓励探索、发现与社区感的建立。
Christ & Gantenbein’s exhibition design interprets the building as an urban space, which fosters a sense of openness and exchange. Spreading across this former switching station’s vast expanse of 5000 m2, the 71 gallery spaces are complemented with open areas that encourage exploration, discovery, and community.
▼营造开放与交流的氛围,fosters a sense of openness and exchange©Giaime Meloni
2022年巴黎艺术博览会
Paris Internationale2022
2022年,Christ & Gantenbein首次参与Paris Internationale,选址于巴黎最早的玻璃幕墙建筑之一。该建筑曾是法国摄影师 Nadar的工作室,并在1874年承办了首届印象派展览。此后于20世纪90年代改造为办公与商业用途,在疫情期间再度废弃。内部设施被全部拆除,裸露的骨架与巨大潜力一览无余。
The 2022 edition of the art fair and first participation of Christ & Gantenbein took place in one of Paris’ first glazed-facade buildings, which housed the former studio of the French photographer Nadar and was home of the first Impressionist exhibition in 1874. Transformed in the 1990s and most recently used as an office and commercial building, this venue was abandoned during the pandemic. Its entire interior infrastructure was removed, revealing a bare, skeletal framework, as well as its vast potential.
▼玻璃幕墙建筑外观,glazed-facade buildings©Giaime Meloni
▼裸露的骨架结构带来巨大的潜力,revealing a bare, skeletal framework, as well as its vast potential©Giaime Meloni
▼突破了传统展位的封闭模式,creating an exhibition design that challenges the preconceived idea of the art fair booth©Giaime Meloni
位于加尼叶歌剧院与玛德莱娜教堂之间的卡普辛大道,这一粗粝空间在巴黎市中心极为罕见。Christ & Gantenbein将3000平方米的场地视作“城中之城”,以激进的灯光与临时墙体系统,重新诠释奥斯曼式的空间原则。空置的外壳与深进深楼层被垂直于大道的直线网络覆盖,突破了传统展位的封闭模式。开放的通道自街道延伸至庭院,贯穿障碍,营造自由流动的展览体验。
The raw interior was kept largely intact, providing something unexpected in the centre of Paris at the Boulevard des Capucines between the Opéra Garnier and La Madeleine. Approaching the 3000 m2area like a city within a city, Christ & Gantenbein reinterprets Hausmannian principles by forming a radical system of lights and temporary walls. The empty shell and deep floor plates are superimposed by a network of straight lines perpendicular to the boulevard, creating an exhibition design that challenges the preconceived idea of the art fair booth. Open pathways stretch from the street to the courtyard, despite any obstacles.
▼营造自由流动的展览体验,creating a free-flowing exhibition experience©Giaime Meloni
▼增加交互与交流的可能性,increase opportunities for interaction and communication©Giaime Meloni
展览共设67个展位,分布于四层空间,汇聚来自20多个国家的60家画廊。除展览空间外,大堂与咖啡区配置了Christ & Gantenbein设计的定制家具。咖啡馆、书店、快闪餐厅与户外空间被策略性地分布在各层,打破网格,增加交互与交流的可能性。
The 67 booths of different dimensions, distributed over 4 floors above ground, house 60 galleries from over 20 countries. Alongside the exhibition spaces, a lobby and a café are furnished with custommade objects designed by Christ & Gantenbein. Cafés, a book store, a pop-up restaurant, an outdoor space, and other infrastructure are strategically situated throughout each floor to break up the grid.
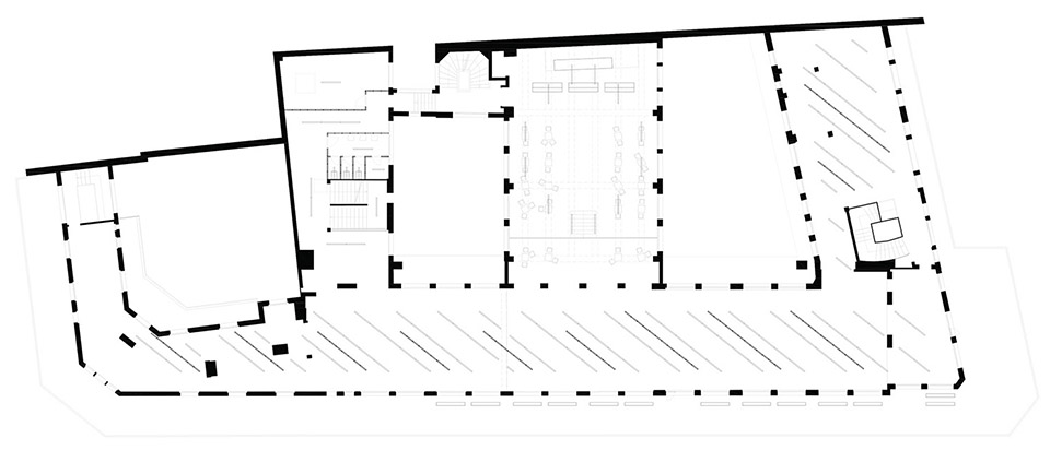
▼2022年博览会场地平面,2022 fair site plan©Giaime Meloni
▼2022年博览会一层平面,2022 fair first floor plan©Giaime Meloni
▼2022年博览会二层平面,2022 fair second floor plan©Giaime Meloni
▼2022年博览会四层平面,2022 fair fourth floor plan©Giaime Meloni
▼2022年博览会剖面,2022 fair section©Giaime Meloni
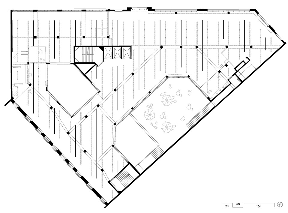
▼2023及24年博览会场地平面,2023 & 2024 fair site plan©Giaime Meloni
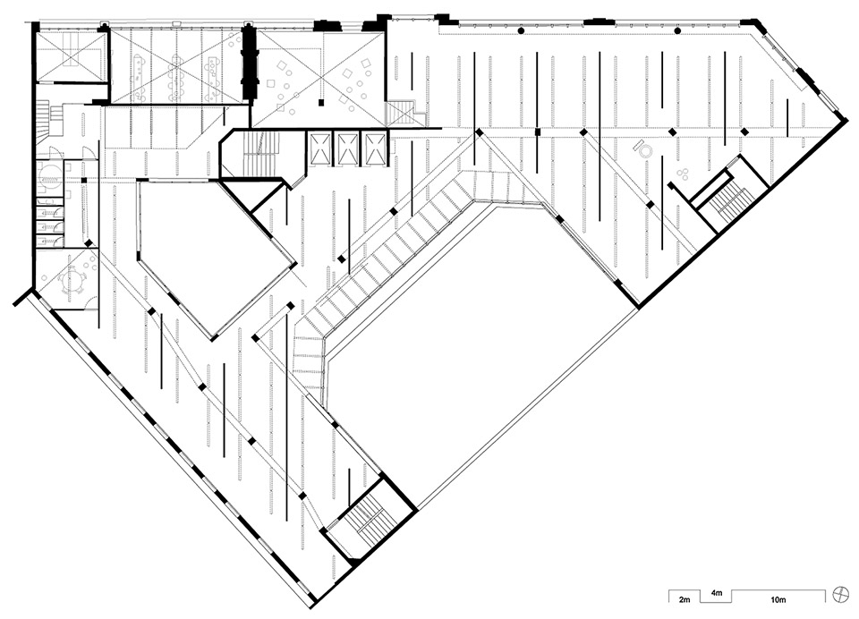
▼2023及24年博览会一层平面,2023 & 2024 fair ground floor plan©Giaime Meloni
▼2023及24年博览会三层平面,2023 & 2024 fair third floor plan©Giaime Meloni
▼2023及24年博览会五层平面,2023 & 2024 fair fifth floor plan©Giaime Meloni
▼2023及24年博览会剖面,2023 & 2024 fair section©Giaime Meloni
▼2023及24年博览会剖面,2023 & 2024 fair section©Giaime Meloni
CLIENT:Paris Internationale, France
STATUS:Built
PROGRAM:Exhibition Design / Transformation
PARIS INTERNATIONALE 2024 EDITION
YEAR:2024
LOCATION:Poste Bergère-Trudaine, 15-17 Rue du F. Poissonnière, Paris, France
SIZE:5’000 m²
COLLABORATION:Ears & Eyes, We Are Ona
TEAM:Emanuel Christ, Christoph Gantenbein, Victoria Easton; Jeffrey Deng, MarcelaLino, Alessandro Pasero, Giada Zuan
PARIS INTERNATIONALE 2023 EDITION
YEAR:2023
LOCATION:Poste Bergère-Trudaine, 15-17 Rue du F. Poissonnière, Paris, France
SIZE:5’000 m²
COLLABORATION:Ears & Eyes, We Are Ona
TEAM:Emanuel Christ, Christoph Gantenbein, Victoria Easton; Jeffrey Deng, MarcelaLino, Alessandro Pasero, Giada Zuan
PARIS INTERNATIONALE 2022 EDITION
YEAR:2022
LOCATION:35 Boulevard des Capucines, Paris, France
SIZE:3’000 m²
COLLABORATION:Ears & Eyes, Nicolas Hosteing, Gobezzia
TEAM:Emanuel Christ, Christoph Gantenbein; Victoria Easton; Arthur Bürki, MarcelaLino, Meret Pfiffner
客服
消息
收藏
下载
最近









































