查看完整案例

收藏

下载
在佛山官窑文化艺术中心(官窑三宝)项目中,建筑师尝试用整体修旧如旧,局部微更新改造的方式保留原街区的风貌,同时插入“陶”主题的空间线索作为参观体验路径,为艺术家、策展人和运营方提供空间基础,最终实现以陶瓷文化艺术带动相关业态发展以及激活历史街区的设想。
In the Foshan Guanyao Cultural and Art Center (Guanyao Sanbao) project, the architects adopted an approach of comprehensive restoration to its original state, combined with localized micro-renovations, in order to preserve the character of the original street block. At the same time, they incorporated spatial cues themed around “ceramics” to provide a spatial foundation for curators, artists, and operators, ultimately realizing the vision of development of related business format and revitalizing the district through ceramic art.
▼2号楼立面,Facade of Building 2 © 柯剑波
▼西南侧沿街效果,Southwest Street-Facing View © 柯剑波
▼4号楼结构构架,Structural Framework of Building 4© 柯剑波
1.现状建筑的丰富性
Richness of the Existing Buildings
陶艺家李见深在2023年初选定这个位于佛山南海区官窑镇的驿园西路北侧尚不太起眼的一组建筑作为未来官窑文化艺术中心的时候,这里的场地中的每个建筑和物件都像是被尘封多年静待开启。▼总平面图,Master Plan © 灰空间
At the beginning of 2023, ceramic artist Li Jianshen selected a relatively inconspicuous cluster of buildings on the north side of Yiyuan West Road in Guanyao Town, Nanhai District, Foshan, as the future site of the Guanyao Cultural and Art Center. At that time, every building and object within the site seemed as though it had been sealed away for years, quietly awaiting rediscovery.
▼沿街立面改造前,Street-Facing Façade Before Renovation © 灰空间
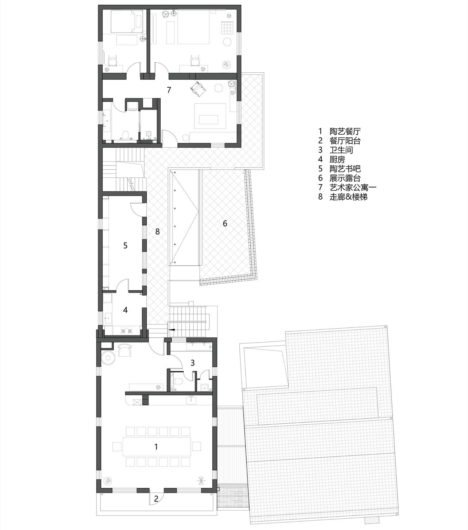
该组建筑总面积约865㎡,共由4幢单体组成,其建造年代和形式各异——1号楼珠江纵队队部旧址建于20世纪初,是一幢典型的西方样式与本土文化结合的民国建筑;2号楼建于解放后,是一幢外廊式砖混结构的三层建筑;3号楼是一幢近年加建的混凝土框架结构的单层小型建筑;4号楼则是建造年代不详的砖木结构的单层民宅。这4幢建筑共同围合出一个狭长的内院,其与3号楼屋顶的小露台共同构成了区域内的户外核心公共空间。▼4幢楼改造前,The Four Buildings Before Renovation © 灰空间
This group of buildings has a total floor area of approximately 865 square meters and comprises four separate structures, each differing in construction period and architectural style. Building 1, the former site of the Pearl River Column Headquarters, was constructed in the early 20th century and is a typical Republican-era structure that blends Western architectural elements with local cultural features. Building 2 was built after the founding of the People’s Republic and is a three-story masonry-concrete structure with exterior corridors. Building 3 is a small, single-story concrete frame structure that was added in recent years. Building 4 is a single-story brick-and-timber residential dwelling of indeterminate age. Together, these four buildings form a long and narrow inner courtyard, which, along with the small rooftop terrace of Building 3, constitutes the core outdoor public space within the site.
▼改造前-改造后,Before and After Renovation © 灰空间
“Yiyuan West Road,” located at the entrance to the building complex, has been a bustling courier route since a thousand years ago. The century-long construction history embodied in the architecture has become a defining feature of the area. The site resembles an open-air architectural museum, preserving uninterrupted examples of architectural styles from various historical periods, layered with traces of different functions from recent decades—including those of a former police station and private residences. Every cross-section, no matter where it’s cut, captures a rich, tangible history of over a century of architectural evolution.
▼平面-原始平面图,改造与保留,Plan – Original Floor Plan, Renovation and Preservation© 灰空间
2.顺势设计与场所精神再生
Designing with the Flow and Revitalizing the Spirit of Place
经过对每幢建筑详细的测绘以及结构检测,依据历史风貌价值评估和未来使用的可能性,设计团队针对现存各建筑制定了不同的修复与改造策略。其中历史建筑的外观要恢复到哪个历史时期非常重要。是查询历史资料恢复到其刚建成时的原始外观,还是保留其使用过程中产生的各种痕迹?在这个项目中,建筑师在大部分的区域选择了后者,仅对安全性出现问题的部位进行了修复和调整。
After conducting detailed measurements and structural assessments of each building, the design team developed tailored restoration and renovation strategies based on the historical value and future usability of the existing structures. A key consideration was determining which historical period the exterior of each heritage building should reflect. Should it be restored to its original appearance upon completion, based on archival research? Or should the various traces left by its long - term use be retained? In this project, the architects chose the latter approach for most areas, preserving the marks of time and use, while only repairing and adjusting parts that posed safety concerns.
▼前后对比-巷道入口,Before and After Comparison – Alley Entrance © 灰空间
▼前后对比-天井底层,Before and After Comparison – Ground Floor of the Courtyard © 灰空间
▼前后对比-楼梯,Before and After Comparison – Staircase © 灰空间
▼前后对比-4号楼立面,Before and After Comparison – Facade of Building 4 © 灰空间
▼前后对比-4号楼室内,Before and After Comparison – Interior of Building 4 © 灰空间
1号楼珠江纵队队部旧址以清洗及修复为主。南立面建筑外层破坏风貌的真石漆面层被水枪清洗干净,露出内部的原始水泥砂浆面层及各历史时期涂刷的隐约可见的标语。栏杆、窗框破损处均进行了详细的测绘和实物开模,使修复部分与保留部分保持一致。内部楼板与木梁进行白蚁防治及钢梁加固,替换已经朽烂的木构。
The restoration of Building 1, the former site of the Pearl River Column Headquarters, focused primarily on cleaning and repair. The outer layer of faux-stone paint on the south elevation, which disrupted the building’s historical appearance, was removed using a pressure washer, revealing the original cement mortar finish beneath, along with faint traces of slogans painted during various historical periods. Damaged railings and window frames were meticulously measured, and molds were created from existing components to ensure consistency between restored and preserved elements. Internally, the floors and wooden beams underwent termite treatment and were reinforced with steel beams, while rotted timber components were replaced.
▼1号楼西南侧沿街效果,Southwest Street-Facing View of Building 1 © 柯剑波
▼1号楼二楼过厅,Second-Floor Passage Hall of Building 1 © 柯剑波
▼1号楼三楼原混凝土梁,Original Concrete Beam on the Third Floor of Building 1 © 柯剑波
2号楼进行了外观修复及内部空间调整。原建筑主要是砖混结构,局部为框架结构。其内部布局开间较小,较难作为公共空间使用。因此设计师微调了内部空间布局,使其满足艺术家驻访起居住宿的功能需求。建筑外部保留原始的水刷石材料,对局部破损处进行修复。
Building 2 underwent exterior restoration and internal spatial adjustments. The original structure was primarily masonry-concrete, with portions built in a frame structure. Due to the relatively small span of the interior layout, it was not well-suited for public functions. Therefore, the designers made slight modifications to the internal configuration to meet the functional requirements of artist residencies and temporary living accommodations. Externally, the original washed stone finish was preserved, with partial repairs made to damaged areas.
▼东立面,East Elevation © 颜翘楚
▼2号楼外廊,Exterior Corridor of Building 2 © 柯剑波
▼2号楼卫生间,Restroom in Building 2 © 柯剑波
3号楼拆除了原框架柱间的门窗,开放建筑内部空间,使其与外部院落相通。加固原钢筋混凝土结构梁板柱,使屋面能承载更多人群和活动。作为院落对景的楼梯通过设计师与施工方的努力被保留了下来,经过加固后继续成为整个区域的视觉焦点。
In Building 3, the original doors and windows between structural frame columns were removed, opening up the interior space and connecting it more seamlessly with the courtyard. The original reinforced concrete beams, slabs, and columns were reinforced to support increased foot traffic and activities on the roof. The staircase, which serves as a visual anchor for the courtyard, was preserved thanks to the concerted efforts of the designers and construction team, and continues to serve as a focal point after structural reinforcement.
▼3号楼屋顶露台,Rooftop Terrace of Building 3 © 柯剑波
▼3号楼及底层天井,Building 3 and the Ground-Level Courtyard © 柯剑波
▼保留楼梯,Preserved Staircase © 柯剑波
▼透过遮阳膜看3号楼露台,View Through a Sunshade Membrane © 柯剑波
▼3号楼展示区,Exhibition Area in Building 3 © 柯剑波
▼底层天井,Ground-Level Courtyard © 柯剑波
4号楼在保留原外墙的基础上拆除原内部空间错综复杂的砖墙结构,替换为8根钢木柱撑起屋面及夹层。原建筑为三户并排的民宅,其内部空间受结构砖墙限制较大,同时三户住宅中的两户间还存在600mm的高差。改造前的现场条件与陶艺工作室的功能定义存在较大冲突,因此改造过程中结构构件被最大程度的集约化了,以保证底部空间自由灵活,尺度适宜艺术创作。原场地的高差关系则被保留下来,成为工作室中功能灵活可变的区域。
▼4号楼轴侧,Axonometric View of Building 4 © 灰空间
▼4号楼剖透视,Sectional Perspective of Building 4 © 灰空间
In Building 4, while retaining the original exterior walls, the intricate internal brick wall structure was removed and replaced with eight steel-and-wood columns supporting the roof and mezzanine level. The original building consisted of three adjacent residential units, whose internal spaces were significantly constrained by structural brick walls. Additionally, there was a 600mm height difference between two of the three units. The existing conditions prior to renovation conflicted with the intended function of a ceramics studio. Therefore, the structural elements were highly consolidated during the renovation to ensure a flexible and open ground-level space, suitable in scale for artistic creation. The original site’s height difference was preserved and repurposed as a versatile and adaptable zone within the studio.
▼4号楼沿街面,Street-Facing Facade of Building 4 © 柯剑波
▼4号楼一楼创作区,Ground Floor Creative Zone © 柯剑波
▼4号楼内部空间,Interior Space of Building 4 © 柯剑波
▼4号楼二楼采光井,Second-Floor Light Well of Building 4 © 柯剑波
▼4号楼一楼下沉区域,Sunken Area on the Ground Floor © 柯剑波
▼4号楼二楼楼梯口,Staircase Entrance on the Second Floor © 柯剑波
3.以“陶”为线索——新置入的流线与视觉系统
Take ‘Ceramics’ as a Clue — Newly Inserted Circulation and Visual Systems
沿街的两幢建筑分别是承担会客功能的1号楼珠江纵队队部旧址,以及承担工作室功能的4号楼改造民宅,进入内部公共院落需要打开另一个出入口。同时内部院落、院内露台以及屋顶露台共同形成的公共空间系统也需要在沿街面上有所提示。因此,建筑师在建筑群之间置入了一组陶砖加钢架共同构成的新的流线系统,同时也成为“陶”主题再次在官窑复兴的视觉系统。
The two street-facing buildings serve distinct functions: Building 1, the former headquarters of the Pearl River Column, functions as a reception area, while Building 4, a renovated residential structure, serves as a studio. Accessing the interior public courtyard requires entry through an additional entrance. At the same time, the courtyard, inner terrace, and rooftop terrace together form a cohesive public space system, which also needs to be indicated from the street frontage. To address this, the architects introduced a new circulation system composed of ceramic bricks and steel framing between the buildings. This new system not only organizes spatial flow but also serves as a visual element to reintroduce and emphasize the “ceramics” theme as part of Guanyao’s cultural revival.
▼剖轴侧-1,Sectional Axonometric – 1 © 灰空间
此系统从入口处的砖砌休息座椅区导向连廊区,穿过连廊正对的照壁则是一堵局部镂空的砖砌墙。
This system begins at the entry area with a brick seating zone, guiding movement toward the corridor. Opposite the corridor stands a partially hollowed brick wall, acting as a screen wall.
▼巷道入口树池,Tree Pit at the Alley Entrance © 柯剑波
▼巷道入口,Alley Entrance © 颜翘楚
▼新旧露台的并置对话,Dialogue Between Old and New Terraces © 柯剑波
砖砌墙的背后上方是3号楼屋顶经改造的上人露台,一组钢架加膜的视觉装置在此呈现,膜可随时替换为新的展陈内容。
Above and behind the brick wall is the rooftop of Building 3, transformed into an accessible terrace. A steel frame and membrane installation serves as a visual device here, with the membrane easily replaceable to accommodate changing exhibition content.
▼从天井向上看,Looking Up from the Courtyard © 颜翘楚
钢架的顶端延伸至2号楼屋顶,成为新增屋顶露台的遮蔽屋架。
The top of the steel frame extends to the roof of Building 2, forming the structural canopy for the newly added rooftop terrace.
▼二层连廊,Second-Floor Corridor © 颜翘楚
▼露台及构架,Terrace and Structural Frame © 颜翘楚
这一组陶砖加钢架的系统希望尽可能的以轻介入的方式重新梳理建筑内院公共空间,较少的破坏原有场地在近百年来已经形成的场所精神,并且在驿园西路的街道上呈现出一点变化,使其成为观众进入内部空间的提示。
This system of ceramic bricks and steel framing was designed to reorganize the public space within the architectural courtyard with minimal intervention, thereby preserving the site’s spirit that has developed over the past century. At the same time, it introduces a subtle transformation along Yiyuan West Road, serving as a visual cue to invite visitors into the interior spaces.
▼俯瞰3号楼露台,Overlooking the Rooftop Terrace of Building 3 © 柯剑波
▼东南侧沿街效果,Southeast Street-Facing View © 柯剑波
▼平面-1层平面图,Plan – First Floor Plan © 灰空间
▼平面-2层平面图,Plan – Second Floor Plan © 灰空间
▼平面-3层平面图,Plan – Third Floor Plan © 灰空间
▼4号楼结构,Structure of Building 4 © 栾栌构造设计事务所
项目完整信息
项目名称:佛山官窑文化艺术中心(官窑三宝)改造项目
项目类型:建筑/室内
项目地点:佛山市南海区狮山镇
策划:李见深国际陶艺工作室、西樵山书院、京都三宝株式会社
设计单位:灰空间建筑事务所
主持建筑师:刘漠烟、苏鹏
设计团队:琚安琪、应世蛟、颜翘楚、莫仙、李园园、井雨瑶(实习)
项目建筑师:颜翘楚
艺术指导:李见深
软装及展陈设计:知一设计研究室:雁森、毕舟希、李金龙、徐大伟
结构顾问:马海青、郭芳(1、2、3号楼)栾栌构造设计事务所(4号楼)
历史建筑保护顾问:束林
摄影:本质映像 - 柯剑波、颜翘楚
建设状态:建成
设计时间:2023年12月 - 2024年12月
建设时间:2024年9月 - 2025年4月
建筑面积:865㎡
材料:水刷石、青砖、胶合木、膜材、阳光板等
Project Full Information
Project Name: Renovation Project of Foshan Guanyao Culture and Art Center (Guanyao Sanbao)
Project Type: Architecture/Interior
Project Location: Shishan Town, Nanhai District, Foshan City
Planners: LI Jianshen Ceramics Studio, Xiqiao Mountain Academy, Kyoto Sanpo Co., Ltd.
Design Firm: Grey Space Architects
Leading Architects: LIU Moyan, SU Peng
Design Team: JU Anqi, YING Shijiao, YAN Qiaochu, MO Xian, LI Yuanyuan, JING Yuyao(Intern)
Project architect: YAN Qiaochu
art director:LI Jianshen
Soft decoration and exhibition design: Atelier IN:YAN Sen, BI Zhouxi, LI Jinlong, XU Dawei
Structural Consultant: LuAnLu Partner Structure Consulting MA Haiqing, GUO Fang
Historical building protection consultant: SHU Lin
Photography: KE Jianbo, YAN Qiaochu
Completion Status: Completed
Design Duration: Dec 2023 – Dec 2024
Construction Duration: Sep 2024 – Apr 2025
Building Area: 865㎡
Materials: Granitic plaster,blue brick, glulam, membrane material, sunlight panel, etc
客服
消息
收藏
下载
最近
















































