查看完整案例

收藏

下载

翻译
Architects:locallll
Photographs:Ben Speck
Category:Cultural Center
Design Team:locallll
City:Bergen
Country:Norway
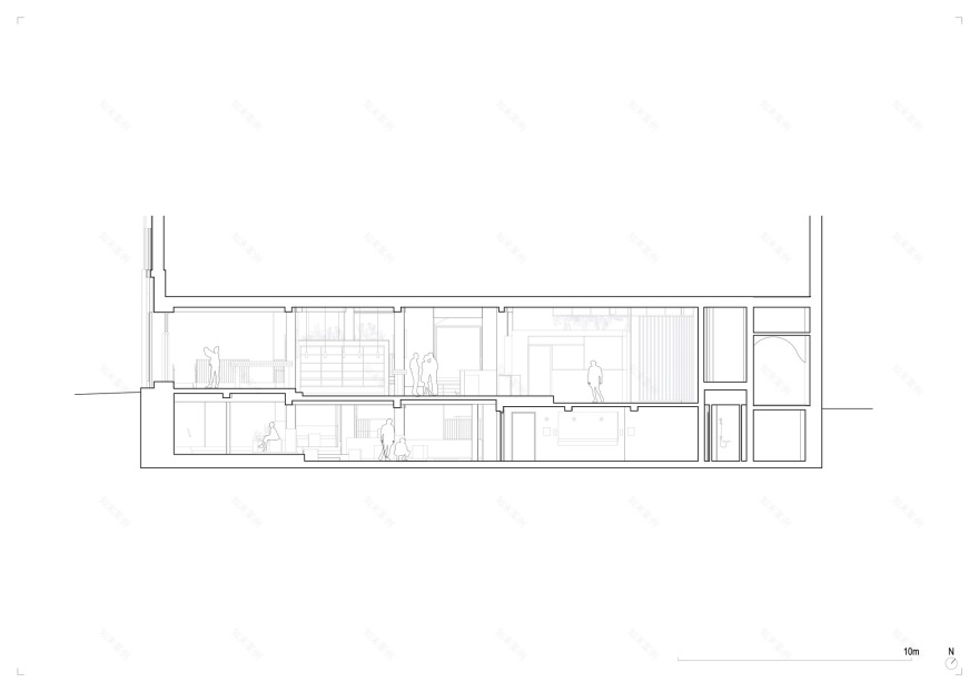
Text description provided by the architects. LOCAL transforms a historic building in Bergen into a vibrant cultural house with mini-golf, food, and performing arts - Architecture studio LOCAL has breathed new life into a historic concrete building in the heart of Bergen by creating Bergen Camping, a dynamic new venue where mini-golf, culinary experiences, and performing arts merge in a rich and layered interior.
Located at Kong Oscars gate 45, the building was originally designed by architect Egill Reimers in 1920 and has served many functions over the years, from a bakery headquarters to offices, small shops, and social services. The latest transformation turns it into an open and inclusive cultural space that reconnects the building with the street life and spirit of the city. "The goal was to bring new energy to a place already full of stories," says Elida Mosquera, partner at LOCAL. "We wanted the history to be visible, not erased, and to invite people in through experiences that are both social and spatial."
LOCAL led the architecture, interior design, and bespoke furniture design for the project. The team worked closely with the building owner and the city's heritage authorities to preserve and reinterpret the building's distinctive character. The commission is a continuation of LOCAL's long-standing collaboration with the building, which also houses offices, apartments, and a hostel on its upper floors.
In the basement, Bergen Camping offers an immersive mini-golf experience set across a series of rooms with varying levels, structural walls, and unexpected visual connections. LOCAL embraced the building's physical limitations to create a playful and engaging journey. A landscape-like "island" winds through the space, integrating the golf course into a new interior terrain with grass-covered surfaces, soft lighting, and aluminum elements. Rather than simplifying or concealing the building's complexity, the design uses level changes, exposed materials, and color to create atmosphere.
A key architectural move is the newly opened courtyard, once an unused part of the building, now covered with glass and filled with daylight. It serves as the heart of the entire venue, connecting the bar, bistro, and stage area on the ground floor. "The courtyard is central, both spatially and socially," says Jerome Picard, partner at LOCAL. "It ties the program together and gives the place a unique identity."
Throughout the project, LOCAL balances raw building elements with tactile, sustainable finishes. Acoustic ceilings and recycled paper wall coverings contrast with exposed brick and concrete. Reflective details and warm lighting add depth and softness, while custom furniture reinforces the architectural concept and strengthens the site's identity. "The materials needed to be tactile and engaging, while also amplifying the building's raw character," Jerome explains.
Project gallery
客服
消息
收藏
下载
最近
























