查看完整案例

收藏

下载
設計概念:插畫師的日式家/一張可以自由創作的生活畫布。
作為設計師,我們一直相信,&家不只是居住的地方,更是一個人氣質與生活方式的延伸。當她——一位在日本生活10年的插畫師找到我們時,我第一反應是這個家需要像她的作品一樣有溫度、有故事。
在色彩的選擇上我們為她定下了原木與暖白的基調。原木能帶來觸覺上的溫潤感,暖白則讓空間像被光輕輕包裹。這種配色既不會分散注意力,又能成為承載創作的安靜背景,就像畫布上的底色包容一切色彩的可能。這是一個安靜的背景,讓生活和創作自由生。
她的創作離不開光,我們讓光在家中自由流動。
我們讓所有的窗與隔斷都互相鏈接,能透光、能呼吸。
窗與隔斷採用透光材料與玻璃的透光設計,讓光線不被截斷也不刺眼。
無論在廚房、客廳還是工作室&她都能感受到從清晨到傍晚的光影變化。
推開門,光和空氣都在緩慢流動。
玄關的左側是障子紙材料的推拉門,門後的衣帽間,原木隔板整排列開,放式設計讓呼吸感延續到最細處。
右側的開放式廚房與客餐廳相鄰,烹飪與交談的邊界被柔化。
客餐廳裡一張沙發一盞暖燈、一張邊幾⸺這裡沒有多餘的色彩與物件就像畫布上的留白給呼吸和夢境留出足夠的空間。沙發安靜地落在原木底座上 邊幾、 餐桌、都是溫潤的木色。
插畫師的工作臺是寬大的原木桌子,牆面裝有隔板,畫材、手作小物、靈感速寫都可以自然陳列。這裡既是她的創作基地,也是生活中最靈感湧動的⻆落。
工作室與主臥之間由一扇推拉門相連。推開後原木與暖白的基調依舊延續。沒有過多裝飾,只有一張床、一盞柔光檯燈和一扇落地窗⸺夜晚的微風和清晨的陽光都是溫潤日常的一部分。
日式馬桶間與深浸式整體浴室讓她在忙碌的創作之餘享受屬於自己的沐浴時光。每一個細節都帶著她在日本生活的印記。
後 記 :
這套設計不是為了創造一個“好看的房子”,我們沒有在空間裡塞滿裝飾,而是讓傢俱與細節彼此呼應,讓空白成為一種秩序。就像侘寂之美所說的,時間會讓一切自然生。這個家是為她畫的第一幅畫。剩下的顏色、細節與故事會在她的日常中慢慢鋪陳開來。隨著時間推移,這張生活畫布將被不斷描繪,永遠不完結。
設計思路:
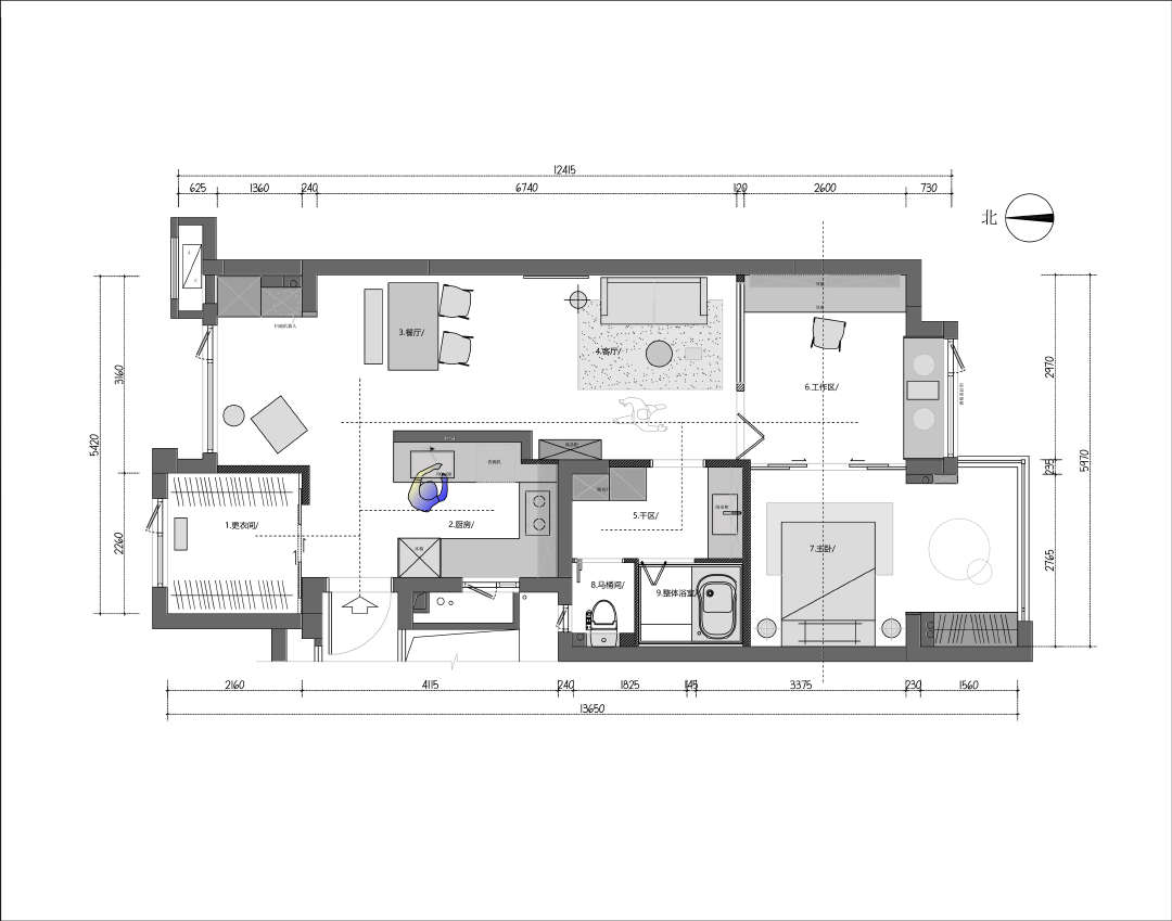
屋主是一個在日本呆過十年的插畫師。根據業主的空間需求,設計師將原本的三居室的房子改為一居室且兼顧書房,將原來封閉的廚房空間改造為開放式廚房,更好的和客餐廳融合起來為一體空間,把原本衛生間位置改為三分離,同時置入整體浴室,滿足屋主對於洗浴的特殊需求。在空間材料中,櫃體部分我們運用大面積天然木頭的紋理來給整個空間增加溫潤的自然感,牆面我們採用牆頂一體特殊紋理感的藝術漆,更好的襯托空間整體氣質和氛圍。
平面圖 -
項目概況
- 項目地址:福建福州
設計單位:福州縱遠聯行設計
設計團隊:於旭輝
設計時間:2024年6月
完工時間:2025年4月
項目面積:70平米
主要材料:原木、複合地板、宣紙、藝術漆、巖板、玻璃、日本整體浴室
>>>>
關于設計師
於旭輝 - 創始人/設計總監 福州縱遠聯行空間設計
獲 獎:金外灘獎 艾特獎 40 UNDER 40 當代設計傑出青年 (福州)
客服
消息
收藏
下载
最近






























