查看完整案例


收藏

下载
Casas, São Paulo, Brasil
设计师:Estúdio Húngaro Arquitetura
面积:250 m²
摄影:Rafaela Netto
提供协助:Gerdau Corsa, FM Serralheria e Estruturas, Manzano, Oliveira, Puma Alumínio
负责建筑师:Arq. Emerson Hungaro, Arq. Luciana Espinosa Hungaro, Rogerio Valente
合作者:Amanda Shum, Moille Shug, Gabriel Neves, Fernanda Lanza, Caroline de Paula, adm. Mayara Pereira Graciano,
Gestión / Coordinación:Arq. Emerson Hungaro, Rogerio Valente, Arq. Luciana Espinosa Hungaro
Ingeniería Estructural Y Cálculos:Ycon Engenharia ltda, Eng. Yopanan C. P. Rebelo
Ciudad:São Paulo
Pais:Brasil
设计师描述 | Designer description:
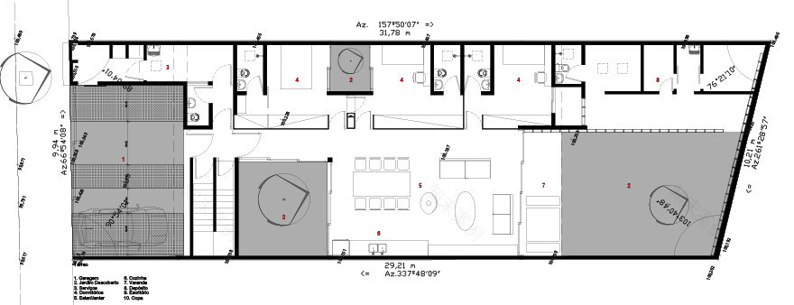
Esta residencia urbana se ubica en un barrio tradicional de São Paulo, al pie de la Serra da Cantareira. El sitio llano se aprovechó al máximo, diseñada para los propios arquitectos. El programa condujo a una implementación lineal, en 2 sectores:dormitorios y baños a la izquierda, descanso, sala de estar, cocina y ocio integrados a la derecha. El nivel medio del frente superior está destinado a un área de trabajo aislada, la oficina.
Las residencias vecinas ya estaban configuradas con muros de más de 7,50 metros y grandes casas. Estos grandes muros conducen a un edificio que daba al interior más privado con un pequeño patio abierto que iluminaba y ventilaba todo el edificio. En este lugar se colocó un árbol de jabuticaba con el fin de atraer aves que existen en gran abundancia en la región.
Ejecutamos una construcción racional y 40% industrializada con impacto ambiental medio. Prácticamente sin movimiento de tierra, siendo el terreno prácticamente llano. Tiempo total de construcción 4 meses debido al rápido montaje de la estructura de acero.
项目完工照片 | Finished Photos
设计师:Estúdio Húngaro Arquitetura
分类:Casas
语言:西班牙语
客服
消息
收藏
下载
最近






















