查看完整案例


收藏

下载
Houses, Pachacamac, Peru
设计师:del Solar arquitectos
面积: 185 m²
年份:2019
摄影:Renzo Rebagliati
建造商: Balterio Peru, Bosch Perú, Casa Rosselló, Cassinelli, Pucon
Lead Architect:Vhal del Solar
Collaborator:Renzo Gallese
Decoration And Landscaping:Magali del Solar
City: Pachacamac
Country: Peru
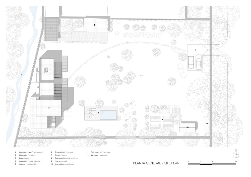
The house is resolved within a compact two-level volume located in a rear corner to maximize the sense of spaciousness of the land, which is perceived as a continuous green blanket from the entrance gate. The arrival path that crosses the garden serves as a filter, like a very subtle sieve, which allows one to perceive the calm passing of time on the route. The interior spaces open up to the surrounding bucolic environment that is appreciated from a new perspective, accompanied by refined senses. The mixed construction technique adopted, with the use of masonry made of concrete blocks on the first floor and wood for the second floor and ceilings, sought at all times an efficient use of resources while maintaining the rustic and cozy tradition of a country house.
Once the spirit of the project was defined, the decoration was open for the use and arrangement of all the pieces owned by the clients. The collection included elements of all kinds (old rails, gates, columns, windows, doors, etc.), recycled from old demolished houses, and awaiting a new use. With them in mind is how complementary outdoor spaces were designed: the living terrace separated from the house as a place of meditation and restlessness; the garden next to the greenhouse for the sustainable cultivation of plants and food; and the dining room opens to the garden allowing its full enjoyment.
The privilege of living surrounded by gardens, farms, plants, and animals, also demands the responsibility of maintaining its delicate atmosphere in balance. These essential values of intimate connection and of what family life entails guided a long-term design process, which continues.
项目完工照片 | Finished Photos
设计师:del Solar arquitectos
分类:Houses
语言:英语
客服
消息
收藏
下载
最近


























