查看完整案例

收藏

下载
坯房插件家是众建筑面对景德镇典型的坯房建筑更新所采用的一种预制化模块系统,通过在坯房的复杂屋架中置入多种功能模块,来形成新的院落空间,是一种可逆化的改造方法。
Porcelain Studio Plugins is a prefabricated modular system developed by People’s Architecture Office for the renewal of typical porcelain workshop buildings in Jingdezhen. By inserting various functional modules into the complex roof structures of these workshops, it creates new courtyard spaces through a reversible renovation approach.
▼C34院落,C34 courtyard© 众建筑
▼H20院落,H20 courtyard © 朱雨蒙
▼P58院落,P58courtyard © 朱雨蒙
▼杨华弄院落,Yanghua Lane courtyard © 众建筑
场地
Site
场地位于景德镇陶阳里历史街区,以明清御窑厂遗址为中心。历史上这里是皇家御窑,明清时期“官搭民烧”的城市格局渐渐形成,官窑周围分布了大量的民窑。窑房和坯房非常密集,一般会在一到两个窑房周围建设十栋左右的坯房, “一窑十坯”是该地区历史肌理的重要特色。
The site is located in the Taoyangli Historic District of Jingdezhen, centered around the ruins of the Ming and Qing imperial kilns. Historically, this area served as the royal kiln complex. During the Ming and Qing periods, an urban layout known as “official kilns supplemented by civilian firing” gradually took shape, with numerous private kilns distributed around the official ones. Kiln houses and porcelain workshops were highly concentrated, typically with about ten workshops surrounding one or two kiln houses—a distinctive feature of the area’s historical fabric known as “one kiln, ten workshops.”
▼御窑厂片区历史地图,Historical map of the Imperial Kiln Factory area © 《浮梁县志》
目前保留下来的历史街区主要位于御窑厂的东西两侧,做了整体的更新规划和修缮,本次改造的插件家散布在街区不同的院落之中。
The remaining historic district is mainly located to the east and west of the Imperial Kiln site, where overall renewal planning and restoration have been carried out. The Plugin units in this renovation are scattered across various courtyards within the district.
▼御窑厂片区历史地图,Historical map of the Imperial Kiln Factory area © 众建筑
坯房
Porcelain Workshops
坯房是传统陶瓷制坯的作坊,相当于如今的原料备制和成型车间,陶工们在此完成拉坯、利坯、晒坯以及画坯等流程。
Porcelain workshops were traditional spaces for ceramic body preparation, equivalent to modern raw material processing and forming workshops. Here, artisans completed processes such as throwing, shaping, drying, and painting.
▼使用中的坯房,Porcelainworkshopsin use © 众建筑
▼拉坯、利坯和画坯,Throwing, trimming and painting © 众建筑
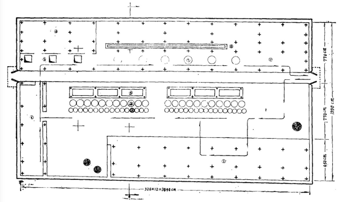
坯房大部分由正间、廒间、泥房形成三合院,房屋均向庭院敞开,以提供良好的干燥条件和充分的干燥场地,功能布局紧凑,内置“回字形”生产线。
Most workshops consist of a three-wing layout comprising a main room, a storage room, and a clay room, all opening toward the courtyard to provide good drying conditions and ample space. The functional layout is compact, with a built-in “loop-shaped” production line.
▼坯房平面图,Porcelainworkshops plan©图片来源自相关史料
▼坯房剖面图,Porcelainworkshops section©图片来源自相关史料
坯房建筑专为制坯工艺设计的穿斗式木构架结构,在并联构架时,把部分联系杆分列在木构架不同高度之上形成坯架,用于搁放晒坯的隔板。木构架间距较小,最低处高度较低,低于人的高度。
The workshop buildings feature column-and-tie timber frames specifically designed for the ceramic forming process. When connecting frames, some linking members are placed at different heights to create drying racks for placing body-drying boards. The timber frames have narrow spacing and relatively low heights, often below human height.
▼坯房内部屋架,Porcelainworkshops interior structure© 众建筑
更新
Renewal
从御窑的功能消失,再到80年代现代化的陶瓷工业兴起,导致手工制瓷日渐式微。古城内的老柴窑逐渐废弃,周围的坯房也慢慢荒废。如何保护性利用坯房建筑,更新的同时做到最小干预,是改造设计主要面对的问题。
With the decline of the imperial kiln’s function and the rise of modern ceramic industry in the 1980s, handmade porcelain production gradually waned. The old wood-fired kilns within the ancient city were gradually abandoned, and the surrounding workshops fell into disuse. The main challenge of the renovation design was how to protect and adaptively reuse these workshop buildings with minimal intervention.
▼坯房改造前,Before renovation © 众建筑
在对该片区的坯房建筑进行了整体的研究分析后,发现坯房建筑因为依着地形搭建,建筑的平面非常不规则,并且形态各异。剖面关系相对统一,但是尺寸和比例也差异很大。
After comprehensive research and analysis of the workshop buildings in the area, it was found that due to their terrain-adaptive construction, the buildings exhibit highly irregular plans and varied forms. While the sectional relationships are relatively consistent, dimensions and proportions also differ significantly.
▼坯房建筑平面研究,Architectural plan studies © 众建筑
▼坯房建筑剖面研究,Architectural section studies © 众建筑
如何保留传统坯房空间特色的同时,适应现代的功能使用?如何对形态各异的传统坯房进行标准化的轻改造?如何采用标准模块化的设计,同时针对使用者产生个性化的匹配设计?这些都是这次更新改造所面临的问题。
我们采用“插件家”的方法进行所有院落的改造,把预制化模块建造系统置入到坯房中,将老旧闲置坯房改造为年轻艺术家的居住和工作空间。通过局部空间舒适性提升和新的功能置换,让历史空间得以使用并延续下来。
How to preserve the spatial characteristics of traditional workshops while adapting them to modern functional needs? How to implement standardized light-touch renovations for workshops of varying forms? How to adopt standardized modular design while allowing for personalized customization based on user needs? These were the key questions faced in this renewal project.
We adopted the “Plugin” method for renovating all courtyards, inserting a prefabricated modular construction system into the workshops to transform old and idle spaces into living and working areas for young artists. By enhancing local spatial comfort and introducing new functions, these historic spaces are revitalized and preserved.
▼四个坯房插件家院落分布图,Distribution map of the four courtyards © 众建筑
插件
Plugins
因为坯架的形制很不规则,插件家灵活多变的优势彰显,在坯架中腾挪躲闪,或架高或平置,形成保温密闭性能更好的生活空间,剩余的半室外空间则改造为丰富多样的工作空间。在不破坏原有建筑的基础上实现空间的可逆性改造。
▼插件家分布图,Distribution map © 众建筑
Due to the irregular form of the drying racks, the flexibility of the Plugin system shines—maneuvering within the racks, elevated or flat-placed, to form better-insulated and enclosed living spaces, while the remaining semi-outdoor areas are transformed into diverse workspaces. This achieves reversible spatial transformation without damaging the original structures.
▼C34院落,C34 courtyard© 众建筑
▼H20院落坯房局部,H20courtyard details© 朱雨蒙
▼H20院落,H20 courtyard© 朱雨蒙
▼P58院落,P58 courtyard © 朱雨蒙
可逆化改造
Reversible Renovation
御窑厂片区属于陶阳里历史街区,坯房等老旧建筑采取保护性修缮措施。修缮不能破坏原有主体建筑,改造必须是可逆化的,在必要的时候可以拆除改造部分恢复旧建筑原状。插件家的改造保留大部分的半室外空间作为开放工作区,原建筑构件不做改动,只在局部置入少量的模块化插件。模块化插件提供封闭性和保温隔热性能都比较好的室内空间,如居住和会客等。且插件的结构与坯房结构完全脱开,基础完全独立。
As part of the Taoyangli Historic District, the Imperial Kiln area requires protective restoration measures for old buildings such as workshops. Renovations must not damage the main structures and must be reversible, allowing the removal of added elements to restore the buildings to their original state when necessary. The Plugin approach retains most semi-outdoor spaces as open work areas, leaving original building components untouched and inserting only a small number of modular plugins. These plugins provide enclosed, well-insulated interior spaces for functions such as living and gathering.
▼C34院落建造过程,C34 courtyard construction process © 众建筑
插件家为轻质的模块化预制系统,直接放置在室内地面,可以快速安装以及快速拆除,是一种完全可逆的方法。
The Plugin system is a lightweight, prefabricated modular system placed directly on indoor floors, allowing quick installation and removal—a completely reversible method.
▼C34院落,C34courtyard © 众建筑
▼C34院落细部,C34courtyard details© 众建筑
规模化和产品化
Scalability and productization
御窑厂片区的坯房数量很多,都需要新的业态进来实现使用的更新,需要提升院落空间的基础设施和空间使用的舒适性,因此整体改造具有规模化的条件和需求。
The large number of workshops in the Imperial Kiln area requires new programs to reactivate them, along with improvements to infrastructure and spatial comfort in the courtyards. Thus, the renovation has the conditions and need for scalability.
▼插件家工厂制作,Factory production © 众建筑
▼插件家板材预制化安装节点,Prefabricated panel installation nodes © 众建筑
插件家系统具有产品化的特点,在工厂里模块化加工,平板运输到现场后进行预制化安装。卫生间和厨房模块,内置的卫浴设施和插件建筑系统整合在一起,实现一定程度的规模化设计、规模化制作和安装,从而以更低的价格来实现更高的完成质量。
The Plugin system is designed for productization, with modules fabricated in factories, transported flat, and assembled on-site. Bathroom and kitchen modules integrate built-in sanitary facilities with the Plugin system, enabling a degree of scaled design, production, and installation, thereby achieving higher quality at lower costs.
▼P58院落,P58 courtyard© 朱雨蒙
▼P58院落内部,P58 courtyard interior© 朱雨蒙
模块化和灵活性
Modularity and flexibility
插件家为模块化预制系统,搭建的板材有统一的模数,可以针对坯房的开间和进深的尺寸范围进行规模化设计,并可以通过对一个方向其中一块板材的尺寸定制,来达到对任意坯房尺寸的适应性。斜顶的做法也保证了对坯房坡屋面空间进行更充分的使用。插件家系统在模块化的同时具备面对复杂空间足够的灵活性。
The Plugin system is a modular prefabricated system with standardized panel dimensions, allowing scalable design adapted to the typical span and depth dimensions of workshops. Customization of panel sizes in one direction enables adaptation to any workshop size. Sloped roofs also allow more efficient use of workshop spaces. The system balances modularity with sufficient flexibility to handle complex spatial conditions.
▼H20院落,H20courtyard © 朱雨蒙
▼H20院落近景,H20courtyard close view© 众建筑
▼H20院落近景,H20courtyard close view© 朱雨蒙
多样化和个性化
Diversification and personalization
插件家系统在标准化模块的同时,也提供了定制化的不同插件。工作/会客、卧室以及厨房和卫浴模块是相对标准化的模块空间,但是可以通过外表面材质与颜色、个性化的门窗和立面家具等去适应不同使用者不同的使用需求,来形成多样性的产品。
▼插件家的标配与定制构件系统,Standard and customized component systems © 众建筑
While based on standardized modules, the Plugin system also offers customized variations. Work/gathering, bedroom, kitchen, and bathroom modules are relatively standardized, but can be personalized through exterior materials and colors, custom doors and windows, and integrated furniture to meet different users’ needs, resulting in diverse products.
▼C34院落卧室模块的上翻门,Upward-folding door of courtyard bedroom module © 众建筑
▼杨华弄院落的卧室模块,Bedroom module in Yanghua Lanecourtyard © 众建筑
▼H20院落的开放办公模块,Open office module of H2o courtyard© 朱雨蒙
院落
Courtyards
本次的改造主要为四组院落,分散在老城各处。院落的空间以及坯房建筑都各不相同,但插件家系统很好的解决了不同院落的更新问题。
This renovation focuses on four courtyard groups scattered throughout the old city. Each courtyard and its workshop buildings vary, but the Plugin system effectively addresses the renewal challenges of each.
▼C34院落改造示意图,Schematic diagram of C34 courtyard renovation © 众建筑
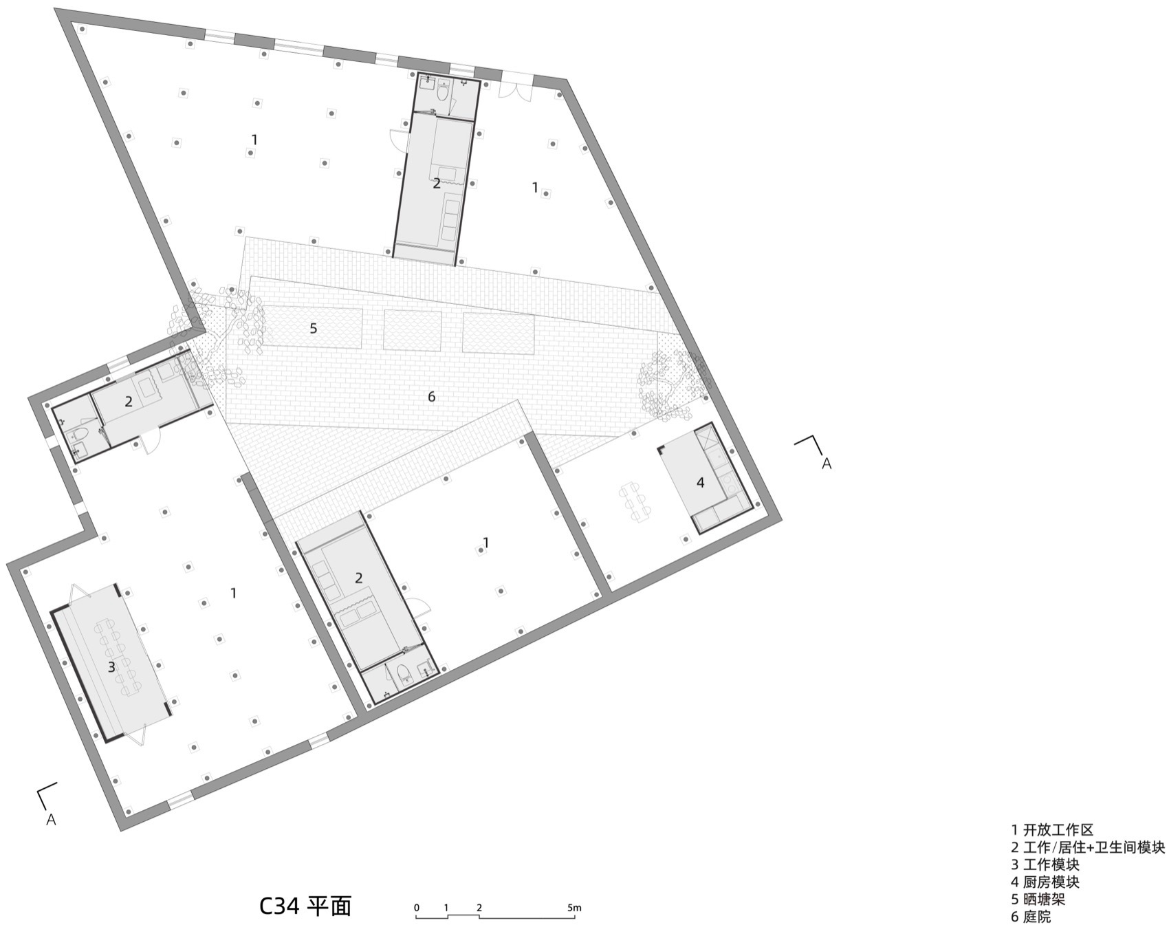
C34院落
Courtyard C34
C34院落由两个坯房和两个居住建筑组合而成,其中一个坯房为平行四边形。院子为三角形平面,中间有一个现存的晒塘架。院落空间比较复杂和多样。
Courtyard C34 consists of two workshops and two residential buildings, one of which is parallelogram-shaped. The courtyard has a triangular layout with an existing drying rack at its center, creating a complex and diverse spatial condition.
▼C34院落改造剖透视图,C34 courtyard renovation perspective © 众建筑
改造按照三个艺术家入驻的模式进行,较小的居住建筑为满足三家共用的厨房空间,有一个厨房的插件家模块。两个坯房和其中较大的居住建筑各为一个艺术家使用,两个坯房的插件家模块整合了卧室、办公以及卫生间功能。居住建筑的模块分为卧室+卫生间模块和办公模块。卧室模块进深较深,采用了平坡结合的屋顶,以导入更多的自然光线。卧室和办公模块顶部均安装了汽车空调(室内外机一体),以保证冬夏的极端天气下可以有较为舒适的室内环境。▼C34院落平面图,C34 courtyard plan © 众建筑
▼C34院落剖面图,C34 courtyard section© 众建筑
The renovation accommodates three artists. The smaller residential building serves as a shared kitchen with one Plugin kitchen module. The two workshops and the larger residential building are dedicated to individual artists. The workshop Plugin modules integrate bedrooms, workspaces, and bathrooms. The residential building contains a bedroom + bathroom module and an office module. The deeper bedroom module uses a combined flat and sloped roof to introduce more natural light. Both bedroom and office modules are equipped with integrated HVAC units to ensure comfort during extreme weather.
▼C34院落内院,C34 courtyard interior© 众建筑
▼C34院落坯房,C34 courtyard house © 众建筑
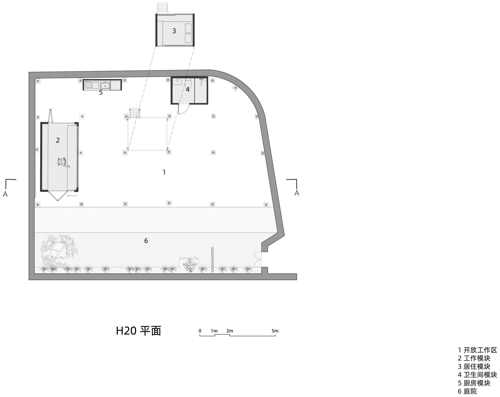
H20院落
Courtyard H20
H20院落较小,由一个大进深坯房和一个窄院组成,是一个比较典型的独立坯房小院。因为坯房进深大,屋脊的高度相对较高。
Courtyard H20 is relatively small, consisting of one deep workshop and a narrow courtyard—a typical independent workshop yard. The workshop’s large depth gives it a relatively high ridge height.
▼H20院落改造示意图,H20 courtyard renovation diagram © 众建筑
▼H20院落改造剖透视图,H20 courtyard renovation perspective © 众建筑
▼H20院落插件家多功能模块,H20 courtyard plug-in home multifunctional module © 众建筑
▼H20院落平面图,H20 courtyard plan © 众建筑
▼H20院落剖面图,H20 courtyard section© 众建筑
H20院落为一个艺术家单独使用,置入的插件家包括办公、居住、卫生间和厨房模块,其中卧室模块采用架高的夹层方式,以更高效的使用坯房空间。办公模块朝向内部及院落的立面可完全开启,以获得空间更大的开放性和灵活性。
Designed for a single artist, the inserted Plugin modules include workspace, living area, bathroom, and kitchen. The bedroom module uses an elevated mezzanine to utilize the workshop space more efficiently. The workspace module features fully openable façades facing the interior and courtyard, enhancing openness and flexibility.
▼H20院落坯房局部,Part of H20 courtyard house © 朱雨蒙
▼H20院落内部,Inside the H20 courtyard © 朱雨蒙
▼H20院落办公模块内部,Interior of H20 courtyard office module © 朱雨蒙
P58院落
Courtyard P58
P58院落由一个较长的坯房和一个居住建筑组成,坯房在东北角原有一个入口,为典型景德镇民居八字型正门。现院落入口改为西北角。
Courtyard P58 comprises one long workshop and one residential building. The workshop originally had an entrance at the northeast corner, typical of Jingdezhen’s八-shaped main doors. The courtyard entrance has been relocated to the northwest corner.
▼P58院落改造示意图,P58 Courtyard Renovation © 众建筑
▼P58院落剖透视图,P58 Courtyard section perspective © 众建筑
▼P58院落插件家模块,P58 courtyard plug-in module © 众建筑
▼P58院落平面图,P58 courtyard plan © 众建筑
▼P58院落剖面图,P58 courtyard section© 众建筑
P58院落设计为3位艺术家共享,居住建筑外部设计为公共的展厅空间,坯房东侧为公共的厨房和餐厅空间,有一个插件家厨房模块,坯房西侧为三组给艺术家使用的办公与卧室组合的插件家模块,一层为办公,二层夹层为卧室,两个模块高低错开,办公模块上方的平台可作为茶室使用。
Designed for three artists, the residential building is transformed into a public exhibition space. The eastern part of the workshop contains a public kitchen and dining area with one Plugin kitchen module, while the western part houses three combined office-bedroom Plugin modules for the artists. Each has a ground-floor office and a mezzanine sleeping loft, staggered in height, with the platform above the office module usable as a tea area.
▼P58院落,P58 courtyard© 朱雨蒙
院落切出一部分作为主入口及展厅的公共区使用,剩下的部分通过锯齿状的划分均分给三位艺术家。
Part of the courtyard is allocated for the main entrance and public exhibition area, while the remainder is divided equally among the three artists in a zigzag layout.
▼P58院落,P58 courtyard© 朱雨蒙
杨华弄院落
Yanghua Lane Courtyard
杨华弄院落由三个坯房和一个L形住宅建筑组成,中间围合的是新建的烟筒咖啡厅,坯房院落与烟筒广场有着一层的高差。
Yanghua Lane Courtyard consists of three workshops and an L-shaped residential building, surrounding a newly built Chimney Café. The workshop courtyard and the café plaza are separated by a one-level height difference.
▼杨华弄院落改造示意图,Yanghua Lane Courtyard renovation© 众建筑
▼杨华弄院落插件家模块,Yanghua Lane Courtyard plugin module© 众建筑
▼杨华弄院落平面图,Yanghua Lane Courtyard plan© 众建筑
▼杨华弄院落剖面图,Yanghua Lane Courtyard section© 众建筑
每个建筑为一个独立的使用单元,三个坯房建筑各有两个卧室模块放置于夹层之上,以及在一层的办公、卫生间和厨房模块。居住建筑较为特殊,因为建筑高度较高,放置了6个居住模块在夹层,以应对类似于游学所需要更多居住功能的需求。
Each building serves as an independent unit. The three workshops each contain two bedroom modules placed on mezzanines, along with ground-floor office, bathroom, and kitchen modules. The residential building, with its greater height, accommodates six living modules on mezzanines to support functions such as study tours requiring more lodging capacity.
▼杨华弄院落坯房内部,Yanghua Lane Courtyard interior© 众建筑
小结
Summary
景德镇陶阳里历史街区正面临整体更新规划下的新功能迭代,新的使用群体和新的业态正慢慢进入。“插件家”提供了一种可以应对新的使用方式的改造方法,可以在原有坯房保护的基础上局部置入多种功能模块,提升使用舒适性的同时灵活应对不同的功能业态。
The Taoyangli Historic District in Jingdezhen is undergoing functional evolution under overall renewal planning, with new user groups and programs gradually emerging. The “Plugin” system offers an adaptive reuse strategy that can integrate various functional modules into existing workshops while preserving their heritage value. It enhances comfort and flexibility, supporting diverse programs within the historic fabric.
▼P58院落夜览,P58 Courtyard night view © 朱雨蒙
客 户:景德镇陶文旅集团
地 点:景德镇御窑厂片区
设计公司:众建筑+刘克成设计工作室
设计主持(众建筑):何哲,沈海恩(James Shen),臧峰
设计主持(刘克成设计工作室):刘克成,肖莉
项目负责:袁樱子,张萌
项目团队:杨全越,杨茜,黄俐颖,张梦媛,周时敏,刘一新,王赫,温皓,刘伊丰,张慧欣
结构设计:于风波
设备设计:西安新会众建筑工程设计咨询有限公司
摄 影:朱雨蒙,众建筑
图纸绘制:张萌,蒋颖
Client: Jingdezhen Cultural Tourism Group
Location: Imperial Kiln District, Jingdezhen
Design Firms: People’s Architecture Office + Liu Kecheng Design Studio
Design Leads (PAO): He Zhe, James Shen, Zang Feng
Design Leads (LKC Studio): Liu Kecheng, Xiao Li
Project Managers: Yuan Yingzi, Zhang Meng
Team Members: Yang Quanyue, Yang Qian, Huang Liying, Zhang Mengyuan, Zhou Shimin, Liu Yixin, Wang He, Wen Hao, Liu Yifeng,Zhang huixin
Structural Design: Yu Fengbo
MEP Design: Xi’an Xinhui People’s Architecture Engineering Design Consulting Co., Ltd.
Photography: Zhu Yumeng, People’s Architecture Office
Drawings: Zhang Meng, Jiang Ying
客服
消息
收藏
下载
最近













































































