查看完整案例

收藏

下载
本项目是设计方与Sergi Serrat合作的获奖方案,建设位于加泰罗尼亚小村庄Ripoll的体育中心的新更衣室及多功能空间。该村庄被群山环绕。原有场地已具有鲜明的特色,由足球场周围的建筑物构成,如看台、酒吧及另外两栋建筑。我们的意图并非创造一个与现有格局格格不入的元素,而是引入一个新的“邻居”,使其自然融入整体环境。
Winning proposal in collaboration with Sergi Serrat for the construction of the new changing rooms and multi-use space for a sports centre in Ripoll, a small village in Catalonia surrounded by mountains. The complex already had a distinctive character, shaped by the buildings around the football field, such as the stands, the bar, and two other structures. Our intention was not to create an element that stood apart from this existing configuration, but rather to incorporate a new neighbor that felt part of the ensemble.
▼外观概览,Overall view © Pol Masip
▼建筑立面,Facade © Pol Masip
方案的关键之一在于优化设计。这一策略起初源于预算限制,随后又受到疫情后资源和价格危机的挑战,促使我们设计出基于重复性、材料高效利用和可靠施工技术的建筑,以减少浪费。
▼轴测图,axo © MH.AP
One of the key aspects of the proposal is its optimisation. This strategy, driven by initial budget constraints and further challenged by the post-pandemic crisis in resources and prices, drove us to design a building based on repetition, material efficiency, and trustworthy construction techniques to reduce waste.
▼附近看向建筑,View of the building from nearby © Pol Masip
▼入口处,Entrance © Pol Masip
▼屋檐,Eaves © Pol Masip
▼屋檐近景,Eaves close view © Pol Masip
▼内部空间概览,Interior view © Pol Masip
▼中间的通道,Central passage © Pol Masip
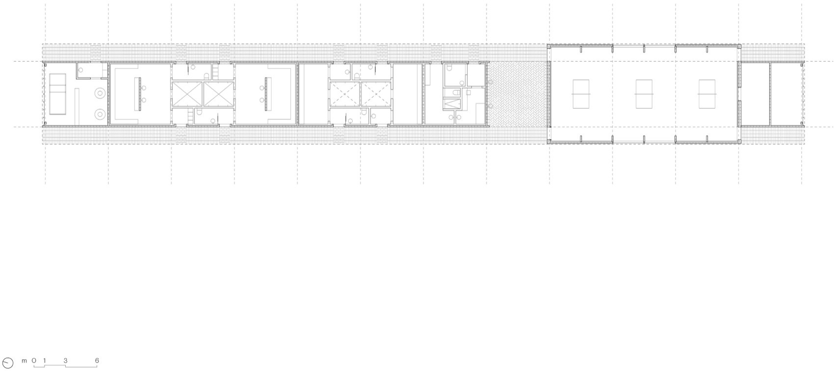
遵循场地对面低矮砖砌建筑的水平比例,我们设计了一条长形平面,由两个体量构成。带坡屋顶容纳更衣室和教练室,入口设置在两侧。屋顶随后升高,过渡为单坡形式,以创造更大的空间以容纳多功能厅。双外廊提供屋檐下的周边通行。
Following the horizontal proportion of the low brick building on the opposite side of the field, we designed a long floor plan divided into two volumes. The gabled roof houses the locker rooms and coaches’ rooms, with entrances on both sides. This roof then rises in height, transitioning to a single slope to create a larger space that accommodates the multipurpose room. Double exterior corridors allow for perimeter circulation under an overhang.
▼室内木构架,Wooden framework © Pol Masip
▼木构架近景,Wooden framework close view © Pol Masip
▼洗手池,Washbasin © Pol Masip
▼墙体细部,Wall details © Pol Masip
更衣室的屋顶由模块化木桁架系统支撑,桁架置于砖墙之上。多功能厅内,我们通过在门式框架系统中加入钢拉杆来缓解风荷载,这使得柱截面得以缩小,降低了施工成本。更衣室与多功能厅之间的半覆盖区域则作为通往足球场的遮蔽通道。
The roof of the locker rooms is supported by a modular system of wooden trusses resting on brick walls. In the multipurpose room, we mitigated wind loads by incorporating steel tension rods into a portal frame system, which allowed us to reduce the column sections and lower construction costs. The semi-covered area between the locker rooms and the multipurpose room serves as a shaded access to the football field.
▼平面图,plan © MH.AP
▼剖面图,section © MH.AP
Project: Ripoll
Location: Ripoll, Girona, Spain
Year: 2023
Programme: Sports centre
Area: 492 sqm
Team: Marina Huguet, Andrés Peñuela and Sergi Serrat (architects), Construccions 360 (construction)
Photographer: Pol Masip
客服
消息
收藏
下载
最近


























