查看完整案例

收藏

下载

翻译
Architects:Design Work Group
Area:3125m²
Year:2025
Photographs:Vinay Panjwani
Lead Architects:Jitendra Sabalpara, Bharat Patel, Dinesh Suthar
Category:Houses,Extension
Design Team:Prabhuti Sorthiya
Technical Team:VArun Sojitra, Chirag Katrodiya
Engineering & Consulting > Structural:Mr Tirbhuvan Gedia
General Constructing:Mr. Hitesh Vasani
City:Surat
Country:India
Text description provided by the architects. This project is an expansion of one already dear to both the client and our team. The client approached us with an elongated site that housed the existing 'Jetvan' residence, crafted a few years ago. The intent was to accommodate another home for the extended joint family within the same plot.
As the project evolved, an additional stretch of land adjacent to the original site was acquired. This new parcel allowed for the inclusion of a clubhouse, play area, gaushala, farmland, and a home office. The master planning of the entire property unfolded gradually—designed in bits and pieces—eventually coming together as a unified whole.
The entrance pathway of the site follows a "contracting and expanding" spatial sequence, starting from a narrow path. The contraction and expansion of space guide visitors to slow their pace. As one walks, the view gradually opens up, elongating the pathway and creating a turn—simultaneously achieving a shift in mindset.
The sounds of chirping birds and humming bees, along with the touch of leaves and trees, create the perfect entrance transition and draw you into the courtyard at the heart of the space. The lotus pond ahead draws you in further with its tranquil aura.
The front courtyard of the house adopts a minimalist approach, with ample open space and two trees. The stone walls add a natural texture to the space, echoing the expansive stone floor and allowing the surrounding landscape to breathe. Tall rain trees are chosen, their forms exhibiting a strong skeletal structure—reaching skyward to create clear structural lines that convey the power of nature, adding a clean and crisp character to the space.
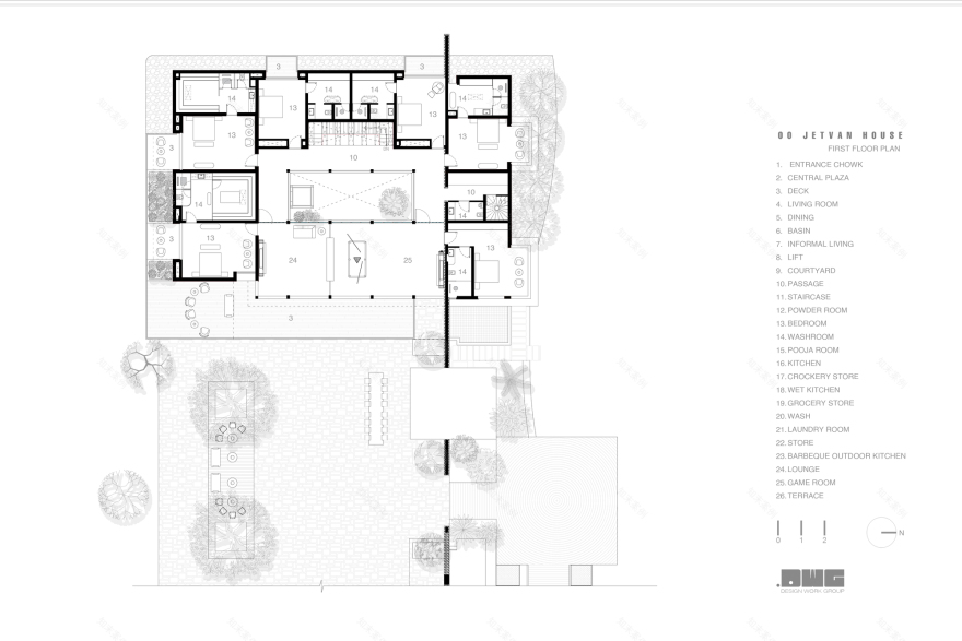
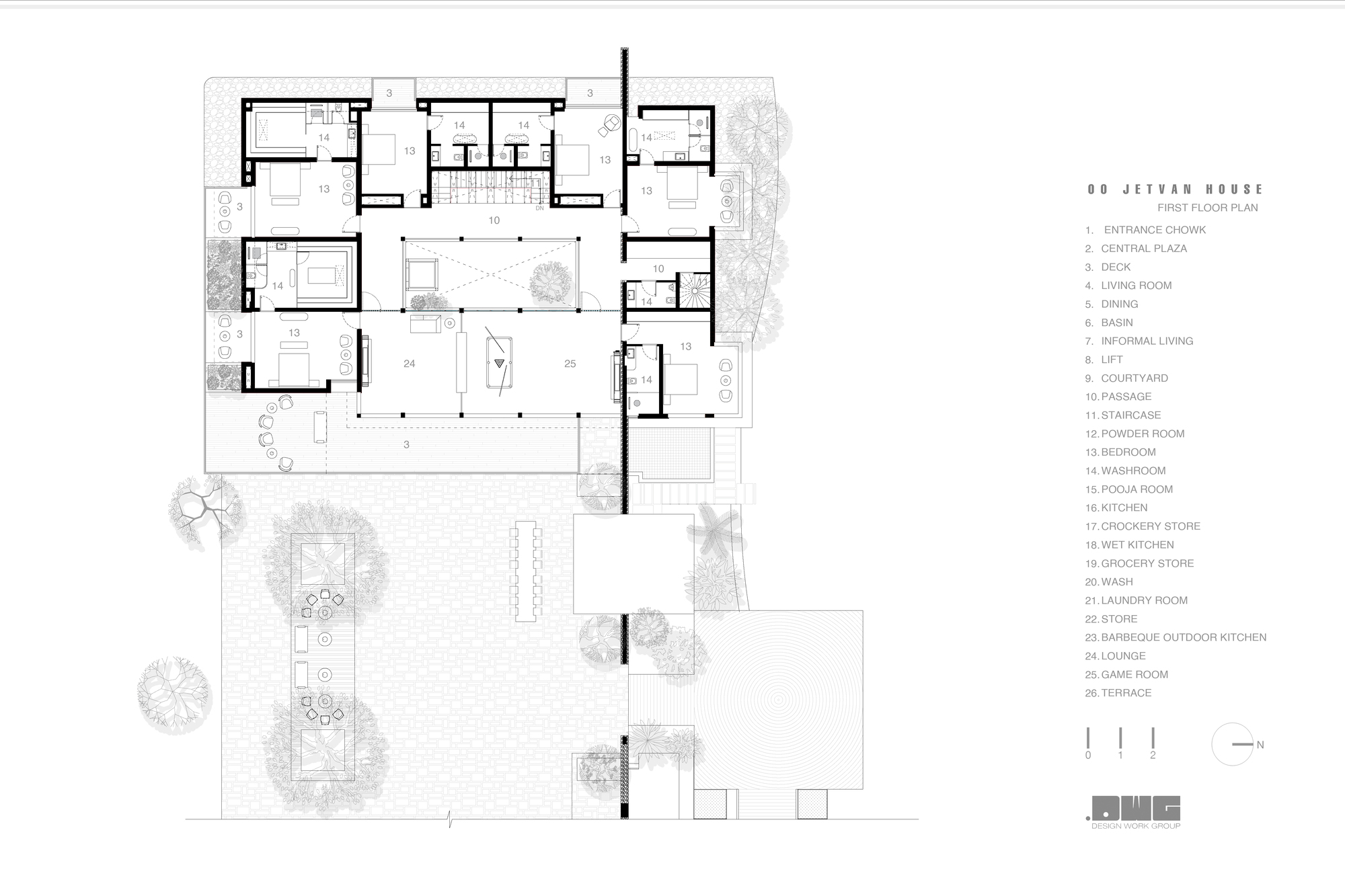
The house is spread over two stories and accommodates 10 bedrooms along with a TV room, dining area, living room, kitchen, courtyard, and a playroom—designed to support the needs of a large, joint family. A defining feature of the layout is a rough stone-clad wall that runs through the home, acting as both a visual and functional divider. It separates the service and public zones from the more private, intimate areas of the house.
The bathrooms are kept minimal, featuring seamless IPS (Indian Patent Stone) floors and walls that offer both durability and a clean aesthetic. Throughout the house, both exterior and interior elements embrace a raw, honest material palette. Exposed brick walls and concrete ceilings create a sense of warmth and openness, while terrazzo flooring adds subtle texture and timeless appeal. This minimal approach allows the natural materials to stand out and connects the house to its landscape in an understated, elegant way.
The landscape is thoughtfully designed to offer a sense of openness, freedom, and tranquility. It showcases a diverse collection of native trees carefully selected to reflect the local ecosystem, allowing visitors to fully immerse themselves in the region's botanical heritage. At the heart of this natural setting lies a large lotus pond, its calm waters serving as a focal point for relaxation and contemplation. Overlooking the pond is a swimming pool, seamlessly integrated to enhance the connection between water and greenery. Together, these elements create a harmonious and restorative outdoor environment that invites people to unwind, connect deeply with nature, and enjoy peaceful moments surrounded by the serene beauty of the landscape.
Project gallery
客服
消息
收藏
下载
最近






























