查看完整案例

收藏

下载
三代人的记忆容器,自然生长的280㎡治愈系空间
项目背景 | 老房子的新生
在合肥绿苑这片植被茂密的静谧社区里,我们为一对年轻夫妇和他们四岁的男孩改造了一栋承载着两代人记忆的280㎡老宅。有趣的是,二楼儿童房正是男主人儿时的卧室,如今将续写新的童年故事。
设计理念 | 自然系家居哲学
以"温馨简洁的自然系"为基调,我们让空间成为连接自然与生活的媒介。保留原有建筑与环境的对话关系,通过材质、光影和动线的重塑,打造一个会呼吸的治愈系容器。
家,是人与光的容器,亦是自然与生活的联结。一楼朝南区域用天然木饰面围合,结合大面落地窗+百叶帘的设计,将室外绿植引入视野,模糊室内外界限。
黑色百叶帘切割出的光影,白色茶几上的半杯余温,深色沙发旁的落地灯…每一处细节都在诉说:生活不必喧哗,宁静自有力量。
客厅以微弧形组合沙发为原点,向外延伸出与地台休闲区、露台景观角、餐厅与吧台的互动脉络。
家的温度,就藏在曲线与功能的每一次对话里。
开放式布局串联餐厅与厨房、客厅,通过吧台实现空间互动,促进家庭社交。
胡桃木餐桌与白陶花瓶碰撞出静谧质感,落地窗将四季之景纳入日常,当吊灯亮起,光线洒落于果盘与书页之间,餐桌便不再是孤立的家具,而成为情感与记忆的载体。
当夜幕降临,餐厅便成为家中最温暖的叙事场。低悬吊灯圈定温馨光域,深木桌、白陶罐、蓬莱松勾勒出自然质感,窗外绿林在夜色中化为朦胧背景。
保留南向的露台,让树影成为客厅的动态背景,打造四季皆宜的户外休闲区。
将厨房入口改至餐厅侧,形成餐厨一体化互动空间,既解决门对门问题,又增强家庭社交氛围。厨房缩小后仍完全够用,并通过开放式布局改善采光,视觉更通透。而正对入户门处结合储物柜设计端景台,提升进门第一眼美感,同时满足收纳需求。通过空间重组与功能整合,将原本尴尬的入户格局转化为兼具美观与实用的生活场景。
拆除笨重楼梯,以白色旋转楼梯替代,通过曲线形态打破呆板格局,成为空间中的艺术焦点。
踏步延伸至休闲区,兼具坐榻与展示功能;楼梯下方则是嵌入镂空书架,既解决储物需求(书籍、绿植、日常物品),又通过镂空结构保持视线穿透,避免压抑感,另外错层踏步作为坐榻,结合书架亦可形成小型阅读角;而书架与旋转楼梯的造型呼应,形成「与功能共生」的艺术装置。
将后方书房墙体改为玻璃隔断,为楼梯平台区域引入充足光线,解决原结构昏暗的问题。光线透过玻璃与镂空书架形成光影层次,增强空间灵动性。
通过原石踏步连接工作区与东侧露台,为大脑提供自然的呼吸空间。
我们在二楼客房与楼梯间的隔墙开设玻璃视窗,通过「借景引光」的设计思维,实现功能与美学的双重提升,让空间在分隔中仍保持对话。既是对功能问题的回应,亦是对生活场景的诗意表达。
原本的主卧被墙体割裂,收纳零散、动线迂回。而我们以「床为核心」重塑格局——洄游动线激活空间:床体居中形成环形通道,串联整排衣柜与卫生间入口,动线缩短,收纳翻倍;
卫浴三分离+功能延伸:衣柜延伸至卫浴区,黑色口袋门藏于护墙,开启关闭皆无形;卫生间三分离,长桌兼顾洗漱梳妆,高效且私密;人性化细节:开放式衣架收纳隔夜衣,口袋门后嵌穿衣镜,更衣梳洗一气呵成——设计终需回归生活本真。
儿童房以地台的形式实现了休息与阅读娱乐的多样功能;墙面嵌入一组开放式box书架,绘本、手办触手可及,培养阅读与整理习惯;儿童房南边本是露台,设计时考虑封闭起来方便偶尔晒被和休闲。
设计后记 | 时间的容器
在这个改造项目中,我们不仅重塑了物理空间,更搭建了记忆传承的桥梁。当小男孩在父亲曾经的卧室里安睡,当一家人在保留的老槐树下喝茶,建筑真正成为了装载时光的容器。用设计语言书写着过去与未来的对话,或许这就是私宅设计最动人的部分。我们相信,好的私宅设计应该是"看得见生长的痕迹,留得住时光的温度"。每个家庭都值得拥有独一无二的生活剧本,而我们,只是帮您把理想的生活场景具象化。
项 目 地 址 : 安徽合肥 · 绿苑
项 目 面 积 : 280 ㎡
设 计 团 队 : 合肥 壹研设计
项 目 类 型 : 复式 老房改造
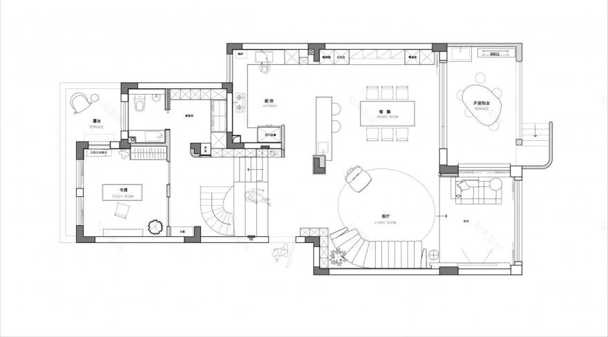
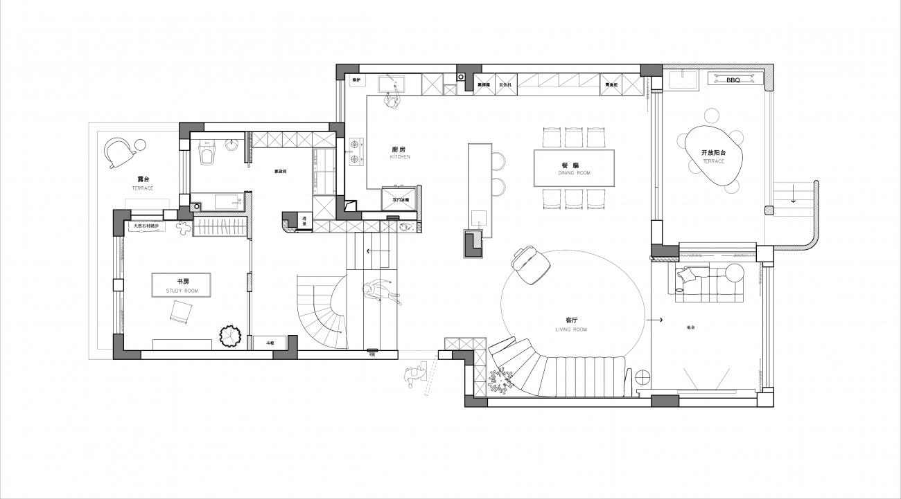
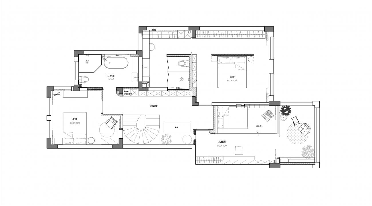
平 面 布 置 图 | Floor plan
关 于 我 们 | About us
[ 壹研设计 ] 位于安徽合肥,成立于2020年,由2位主理人共同创立,是一间专注于实景落地的小众设计工作室。我们以「居住本质」为核心,践行三大设计哲学「空间重构与功能进化-自然材质与光影叙事-情感化场景营造」;坚守「同频共创」原则,选择理念契合的屋主,一起把家打造成为能够承载独特生命力的精神容器!
客服
消息
收藏
下载
最近





































































