查看完整案例

收藏

下载

翻译
Architects:Atelier d'More
Area:208m²
Year:2025
Photographs:Langxing Zhou
Category:Retail Interiors
Design Team:Le Sheng,Wei Wang,Yixuan Zuo
Cd Collaborator:Xuanji Design
City:Nanjing
Country:China
Text description provided by the architects. Suspended high above in an office tower in Nanjing's Xinjiekou district, a spiritual vessel engages in quiet dialogue with the city. The moment you push open the glass door, the city's roar is instantly stripped away, revealing an organic system woven from birch wood, fabric, and light. Atelier d'More reconstructs the learning space of the contemporary urbanite through an architectural lens, composing a symphony of spatial narrative and bodily perception in the sky, over a hundred meters above ground.
A floating lantern-like installation serves as a spiritual totem of the space, hovering quietly overhead. Digitally designed and crafted from birch plywood, it features finely detailed mortise and tenon joints. Its wooden framework is hidden behind fabric, faintly visible, breathing with rhythm as light passes through. During the day, sunlight gently filters through the gaps in the wood and fabric, casting richly layered shadows across the desks—agile and poetic. At night, warm light seeps through semi-transparent curtains, tinting the ceiling with a soft glow, like a floating dream. This suspended lighting fixture is not just a functional illumination system but a spiritual symbol of the space. Its shadow projection transforms gradually from solid to ethereal over a 12-hour solar cycle.
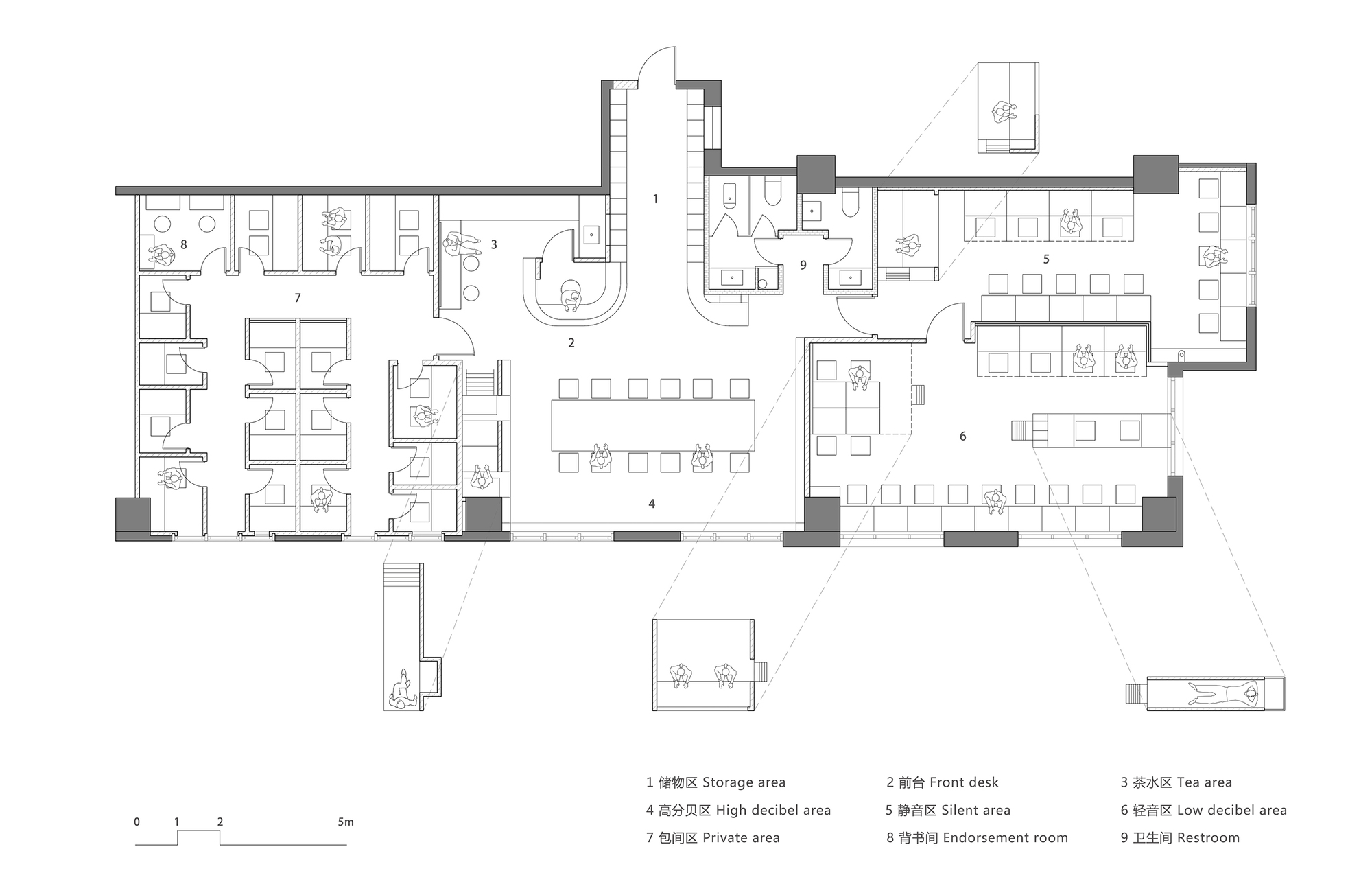
Vertically, we designed an engaging climbing path, placing stacked functional zones in areas with minimal overhead obstructions. Multiple three-dimensional boxes are interspersed within the study zone, increasing usable space while enriching the spatial experience. Climbing the ladder leads one to a spiritual realm—the meditation pod. This capsule-like space accommodates both lying and sitting, and features a transparent retractable desk at the far end, allowing users to gaze over the city's veins from high above, experiencing a profound sense of detachment and perspective.
To minimize cost and preserve ceiling height, we installed partial drop ceilings only in areas with HVAC and ventilation ducts, integrating most of the hidden infrastructure into these sections. This ensured a clean, exposed look for the remaining ceiling surfaces. Carefully composed wooden ceiling modules establish new visual relationships with interior elements. Their deliberate separation from the original ceiling enhances the sense of levitating lightness.
Constraints often spark the most evocative designs. To diminish the visual impact of the horizontal fire sprinkler pipes, we custom-designed wooden light fixtures that attach directly to the pipes. Arranged in arrays, these fixtures transform the intrusive piping into structural rods that link the lights—turning functionality into an aesthetic statement. For the 12-seat table in the high-decibel zone, we designed a square central column that handles wiring needs while also supporting cantilevered lighting troughs. Each cantilever features a detachable screen mechanism; a slit runs through each side's center to hang screens, offering the possibility to open or close visual lines between opposite seats.
The space is more than a functional container—it is an emotional amplifier. The most touching part of the project lies in its construction: the fixing of fabric to the wooden frames was completed by the owner's family themselves. This "participatory construction" endows the non-standard details with warmth, transcending cold mechanization and becoming vessels of memory. Over time, the fabric gradually absorbs traces of its users, and the space evolves from a designed object into a living entity.
Project gallery
客服
消息
收藏
下载
最近































