查看完整案例

收藏

下载
信通展厅设计解构了传统展示功能的单一叙事维度,让空间成为能传递企业实力、愿景,精神和价值的复合型媒介。设计的落笔从企业属性出发,藉由视觉的表达,架构起空间与价值赋能的关联性传达,层层加深观者对品牌的深度了解。
基于信通电子“国际知名的行业物联网解决方案提供商”的品牌属性,设计提炼科技、人文、价值等系列关键词,以形体和符号串联起一场流动的品牌传达叙事,由功能出发,升华为对品牌立体辨识的多面赋能。
01FLUID DYNAMICS
流 动
展厅以冷峻克制的极简美学,构建起科技场域的沉浸叙事。金属光感界面与流线型光带设计的双重视觉叙事,生长出极具未来感的先锋张力,加持着信通电子的科技与智慧属性。一路的延展到达廊道尽头,视觉的脉络聚焦于品牌logo的终极落点,瞬间建立起空间体验与品牌型格的关联。品牌辨识度的锚定,初见的记忆点烙印,皆由此完成。
P. 01
P. 02
科技与美学,流动与沉浸,彼此交融,如影随形。
曲线的有机生命,导向空间的无界开放与流动之美,以恢宏格局暗语大气磅礴的企业实力和型格。弧线与蜿蜒几何界面既是形塑,也是心理的潜在指引,在光的点化下,蕴生无限延展的空灵深邃,唤醒探索的好奇,牵引进一步的行走动线。
P. 03
P. 04
随着移步易境,企业的型格一一铺展开来。
空间的形体后退,只做幕后铺垫,在光线聚焦的加持下,内容的传达成为视觉关注的主体。品牌简介,文化基因,发展轨迹,辉煌荣誉等随着流动的曲线,自然而然被观者一路见证。时间里的脉络,与当下的势能共生于此间,品牌的立体烙刻愈加清晰。
P. 05
P. 06
P. 07 02
SPATIAL ORDER
秩 序
“序”是开篇,以大面积的高级感留白,让企业使命的书写,有了更具直击人心的力量。
“序”亦是空间的秩序建构者,担纲着内容逻辑的梳理与行走的分区,将核心技术展区隐于其后,生成欲扬先抑的秩序,消解了直白,得曲径通幽之意境。
P. 08
P. 09
核心技术展区被形塑为一座巨大的能量站,顶部环形装置与两座对称的展台与形成天地互语,将视觉引向中央展台的聚焦。极具宏大科技感的先锋概念,瞬间抓取了观者吸引力,引发超现实的空间体验。无论从体量或是视觉叙事,都在昭示着这一区块的核心地位,品牌的能量以此为原点,呈现出层层裂变的向外辐射。
P. 10
P. 11
P. 12
形体是功能展示,亦是品牌隐喻。以核心技术展区为中心,不同的几何体块与色块环绕周边,或聚焦,或延展,各自承担起不同的传播内容。数据蓝传递着智能运维的脉搏,更昭示着万物互联的品牌理念,在纯粹中传递未来智慧生活的愿景。
P. 13
P. 14
材质的对比,色彩的差异,是设计依据板块展示,赋予空间的逻辑秩序。在空间架构的极简留白之上,展陈、灯光、数字、多媒体等多元形式,为展示注入丰盈的内容。
物联世界与智慧生活的企业内核转化为可感知的空间叙事,冰冷的科技被注入有机的生命力,信通电子“物联网解决方案专家”的专业化形象,以更具近人性的表达被完美演绎。
P. 15
P. 16
P. 17
• 03
VALUE
价 值
宏大与精微的双线叙事,共同诠释品牌作为行业专家的格局与资源整合力。
沙盘成为勾勒未来蓝图的宏观策略,见证着智慧物联的深远规划,联动LED巨幕成为对外传播的科技窗口,实时演绎前沿创新的数字力量。
P. 18
客户展示墙以模块化矩阵,呈现全球合作伙伴网络,直观和立体的方式,彰显着品牌物联世界的强劲实力。
WELCOME的艺术化字母排列穿插其间,如在严谨的科技感中融入人文意趣,更以欢迎的姿态去准备迎接更多伙伴的加入,生动地诠释着品牌强烈的生态链接愿景。
P. 19
P. 20
科技的价值,不止于对未来想象的仰望,更是最终落脚于社会责任、服务于人的应用。
设计藉由空间的策划,对于品牌文化给与了更深层的赋能,将看起来抽象晦涩的科技与智慧,转译为可视、可触的具象,于展示区达成品牌与现实生活的真实链接,恰恰是信通电子的文化基因与精神信仰。
P. 21
P. 22
P. 23
• 04
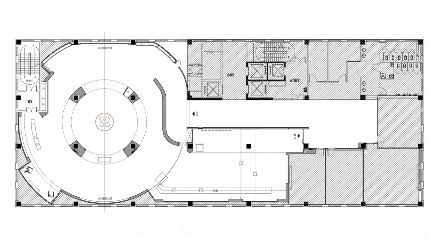
ANALYSIS DIAGRAM 分析图
平面图 P. 24
INFO
- 项目名称 - 信通电子展厅
- 设计机构 - 春秋筑设计
- 主创设计 - 梅玉保 胡雪
- 内容策划 - 清歌传媒
- 项目面积 - 800m²
- 项目地址 - 山东 淄博
- 项目摄影 - 瑞光摄影 王晨光
DESIGNER
梅玉保 春秋筑设计创始人 - 设计总监
春秋筑设计工作室成立与2021年,是一家新晋的设计公司。工作室根植与地产、商业、办公、住宅等领域。致力于以“时间·空间”为设计主张,坚持认为四维空间设计是社会价值观的折射,更是感性与理性的结合。精益求精的专业追求,独具匠心又充满趣味,为客户打造独一无二的品质空间,为每一项设计注入不一样的灵魂。
客服
消息
收藏
下载
最近






























