查看完整案例

收藏

下载
偲所设计:本项目位于浙江泽雅的一个小山村,一个隐于群山之中的村庄,村里就剩下些许老人和那些石头垒砌的房子。这些石头历经百年的风雨冲刷,长满了青苔和野草,它们饱含风霜像是与子孙们诉说着百年的寂寥。
Thinking Design: This project is located in a small mountain village in Zeya, Zhejiang Province — a village hidden among the mountains, where only a few elderly residents and houses built with stacked stones remain. Having withstood the wind and rain for a hundred years, these stones are covered with moss and weeds. They bear the marks of time, as if whispering tales of a century-long solitude to their descendants.
▽一个让建筑和自然环境有机的融合,远离喧嚣、隐于自然的静谧之所
该建筑群位于一个朝南的斜坡上,项目的外形完全由地形决定,建筑体块错落有致的与山体结合,外墙采用当地的石头垒砌,和景观挡墙形成材质统一,在视觉上得到更大程度的延展,让建筑和自然环境有机的融合,打造远离喧嚣、隐于自然的静谧之所。
The building complex sits on a south-facing slope, and its overall shape is entirely determined by the terrain. The building volumes are arranged in a scattered yet orderly manner, integrating with the mountain. The exterior walls are constructed using local stones, achieving material consistency with the landscape retaining walls. This creates a greater visual extension, enabling the buildings to blend organically with the natural environment and creating a quiet retreat that is far from the hustle and bustle and hidden in nature.
▽斜坡上的、错落有致的建筑群
在亲水平台处,由上、往下可以去往不同的空间,充满趣味和未知。同时这里也是去往客房、泳池、咖啡厅空间的一个交汇处和停留点。
From the waterfront platform, one can go down to different spaces from above, which is full of fun and a sense of uncertainty. Meanwhile, it also serves as a junction and resting spot leading to the guest rooms, swimming pool, and café.
▽平静放松的度假感氛围
微光在线条与缝隙间随意穿梭,色彩交替中投下一片影子。穿过拱形隧道,沿着曲折的阶梯拾级而上,去感受大自然的魅力,让人对未来充满期待。
Faint light shuttles freely between lines and gaps, casting shadows amid alternating colors. Walk through the arched tunnel and climb up the winding stairs step by step to feel the charm of nature, filling people with expectations for the future.
▽阳光穿过拱形隧道,沿着曲折的阶梯拾级而上,去感受大自然的魅力,让人对未来充满期待
几颗大树包围的接待大厅,屋顶长满了野草,石头墙上光影投射的平行线。建筑由石墙与老木料搭建,室内保留了石墙,和建筑形成呼应,同时保留了最佳视线。
The reception hall is surrounded by several big trees, with weeds growing on its roof and parallel light-and-shadow projections on the stone walls. The building is constructed with stone walls and old timber; the stone walls are preserved indoors to echo the exterior of the building, while also maintaining the best viewing angles.
▽接待大厅屋顶长满了野草,石头墙上光影投射的平行线
咖啡厅和无边泳池面对着山谷,鸟语、溪流、对面的山林一览无余。咖啡厅墙面保留了质朴的清水混凝土,搭配中古家具,让整个空间呈现出质朴松弛的氛围感。大面积玻璃门,将面前的竹林引入室内,让绿意沾满双眸,品茗也好、阅读也罢,总归是平静、祥和。
The café and the infinity pool face the valley, offering an unobstructed view of birdsong, streams, and the forested mountains opposite. The café retains the plain fair-faced concrete walls, matched with mid-century furniture, creating a simple and relaxed atmosphere in the entire space. Large-area glass doors bring the bamboo forest in front into the room, filling the eyes with greenery. Whether you are sipping tea or reading, the space always exudes tranquility and harmony.
▽咖啡厅墙面保留了质朴的清水混凝土,搭配中古家具,让整个空间呈现出质朴松弛的氛围感
我们保留了原有的石头墙,缝隙里长满了自然生长的野草。通过空中廊道,进入客房,走到廊道的尽头,山谷与远处的景色尽收眼底。
We have preserved the original stone walls, with naturally growing weeds filling the gaps. Enter the guest rooms via the sky corridor; when you reach the end of the corridor, you can take in a panoramic view of the valley and the distant scenery.
▽山谷与远景的融合呼应
客房的墙面选用微水泥,屋顶采用当地回收的老木梁,还有那些百年的老家具及工艺品,现代与传统相融,追溯自然,回归本质,在质朴与现代之间寻求平衡。
For the guest room walls, micro-cement is used, and the roofs are built with locally recycled old wooden beams. Additionally, there are century-old furniture pieces and handicrafts. Blending modern and traditional elements, the design traces back to nature and returns to the essence, seeking a balance between simplicity and modernity.
▽客房的墙面选用微水泥,屋顶采用当地回收的老木梁
▽追溯自然,回归本质,在质朴与现代之间寻求平衡
床背面是一个室内的泳池,墙地一体的材质,串联了不同的空间,给整个房间增加了些许浪漫。大面积的落地窗,提供了最佳的观景面。
Behind the bed is an indoor pool. The integrated material of the walls and floor connects different spaces, adding a touch of romance to the entire room. Large-area floor-to-ceiling windows provide the best view of the scenery.
▽墙地一体的材质,串联了不同的空间,给整个房间增加了些许浪漫
建筑采用粗野主义风格,以泥土覆盖,仿佛从土中生长,与自然完美融合。客房沿溪而建,每个房间配备独立庭院和天桥,需经溪上天桥进入,庭院植被茂盛,让人真切感受四季与温度变化。
The building adopts a brutalist style and is covered with soil, as if growing out of the earth, blending perfectly with nature. The guest rooms are built along the stream; each room is equipped with an independent courtyard and an overhead bridge, which must be used to enter the room (crossing over the stream). The courtyards are lush with vegetation, allowing people to truly feel the changes of seasons and temperatures.
▽粗野主义风格的建筑以泥土覆盖,仿佛从土中生长,与自然完美融合
室内保留清水混凝土墙面,通过天井采光,营造宁静自然氛围。光线变化使空间色调、肌理、表皮、感知随之改变,植物色调的运用诠释了“自然之色”。
The indoor space retains fair-faced concrete walls and uses light wells for daylighting, creating a quiet and natural atmosphere. Changes in light cause corresponding changes in the space’s color tone, texture, surface, and people’s perception. The use of plant tones interprets the “color of nature”.
▽室内保留清水混凝土墙面,通过天井采光,营造宁静自然氛围
室内结合当地岩石、回收老木材等天然材质,搭配亚麻床品和中古家具,融合光与空气,既朴素又不失品质。房间内设采光井,增加采光与通风,大面积落地玻璃将山谷景色引入室内,打造远离城市的静谧避世之所。
The interior combines local natural materials such as rocks and recycled old wood, paired with linen bedding and mid-century furniture, integrating light and air. It is simple yet does not lack quality. Each room is equipped with a light well to enhance daylighting and ventilation, and large-area floor-to-ceiling glass brings the valley scenery into the room, creating a quiet retreat far away from the city.
▽室内结合当地岩石、回收老木材等天然材质,搭配亚麻床品和中古家具,融合光与空气,既朴素又不失品质
▽静谧的酒店夜景氛围
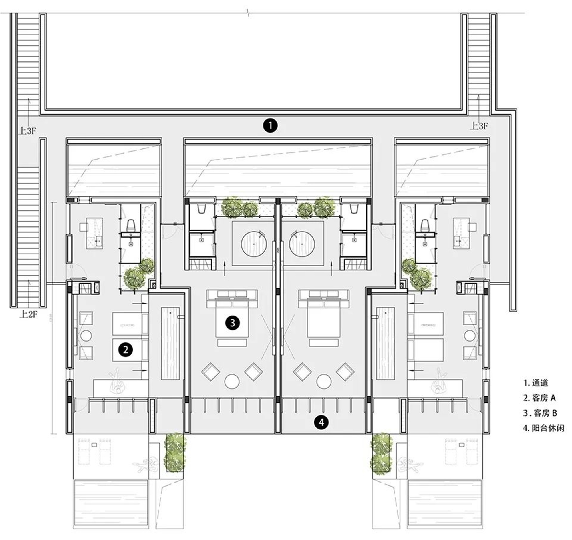
▽设计图纸
项目名称:秘伽度假酒店
项目地址:中国·温州泽雅
设计团队:杭州偲所设计
主案设计:吴小勇
摄影:無介视觉
业主:秘伽度假酒店(温州)有限公司
竣工日期:2024年06月
占地面积:13850m²
建筑面积:1000m²
主要材料:石头、老木板、清水混凝土
Project Name: Murka Hotel
Project Address: Zeya, Wenzhou, China
Design team: Thinking Design
Main project design: Xiaoyong WU
Photography: Wujie Vision
Owner: Mijia Resort Hotel (Wenzhou) Co., LTD
Completion date: June 2024
Land area: 13,850 square meters
Building area: 1,000 square meters
Main materials: stone, old wooden boards, fair - faced concrete
一座依山而建,远离喧嚣、隐于自然的静谧之所。
客服
消息
收藏
下载
最近





















































