查看完整案例

收藏

下载

翻译
Architects:Sau Taller d'Arquitectura
Area:184m²
Manufacturers:Fusteria Vivet Vidrà, SL,Iron Banyoles, SL
Lead Architects:Lluis Jordà + Pol Jordà
Category:Houses
Creative Area:Blai Cabrero Bosch, Octavi Fontané Juanhuix, Viktoriya Bobotsko, Anna Ribera Tor, Alex Prats Corbalan
Construction Management:Carme Bassaganya Ferres, Santi Rodríguez Fernández
Landscape Architect:Marc Fabrés Massip
Design And Interior Design:Mariona Coll
Technical Architecture:Marc Busquets
área Administrativa:Isabel Ortega Flores, Nuria Jordà Sala, Marta Vélez
City:Besalú
Country:Spain
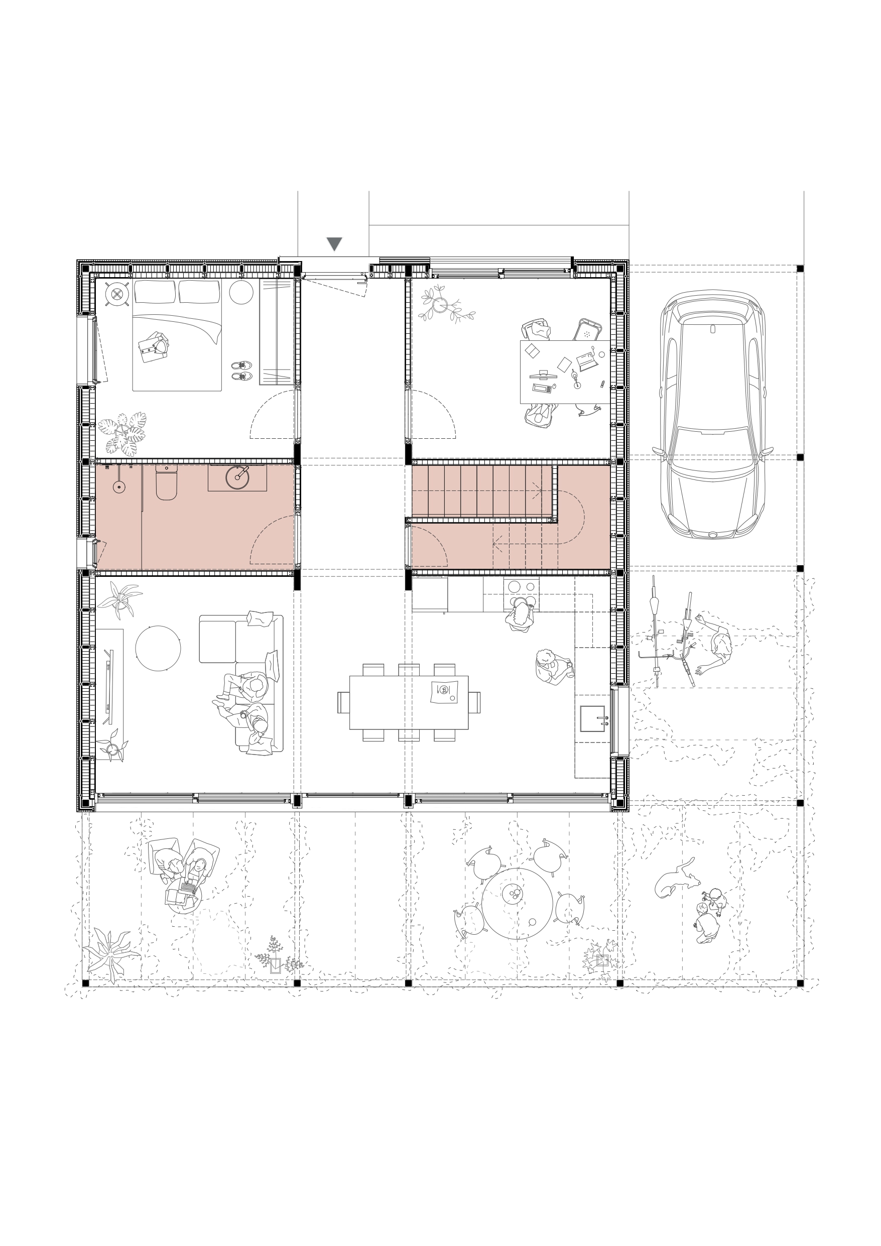
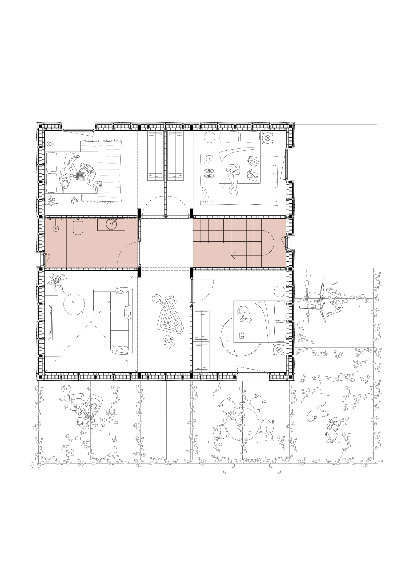
Text description provided by the architects. The LC house is positioned at the northern edge of the plot, adjacent to the access road, in order to free up as much garden space as possible to the south and open up the views. To ensure the largest possible south-facing façade and fully utilize the ground-floor footprint, a square plan is proposed (9.3 x 9.3 meters). The structure consists of a perimeter balloon frame and four central columns that define four 15 m² spaces, one in each corner of the house. These spaces are separated by two service cores, resulting in a cruciform floor layout.
From a climatic perspective, the design decisions have been made with a high degree of rigor. The form factor has been optimized, referencing the archetypal house to achieve maximum volume with minimal envelope surface.
Regarding construction materials, a modular timber structure has been chosen to ensure a low environmental impact. The entire project is conceived to maximize the building’s operational efficiency, primarily through passive design strategies: ventilated crawlspace, underfloor heating, cross ventilation in all rooms, enhanced southern openings, ventilated façades and roof... thus achieving healthier architecture.
The use of timber and dry construction systems substantially reduces construction waste. Not only is the environmental impact minimized during recycling, but most components are reusable. In this way, the environmental footprint is minimized even at the end of the building’s life cycle.
Project gallery
客服
消息
收藏
下载
最近




















