查看完整案例

收藏

下载

翻译
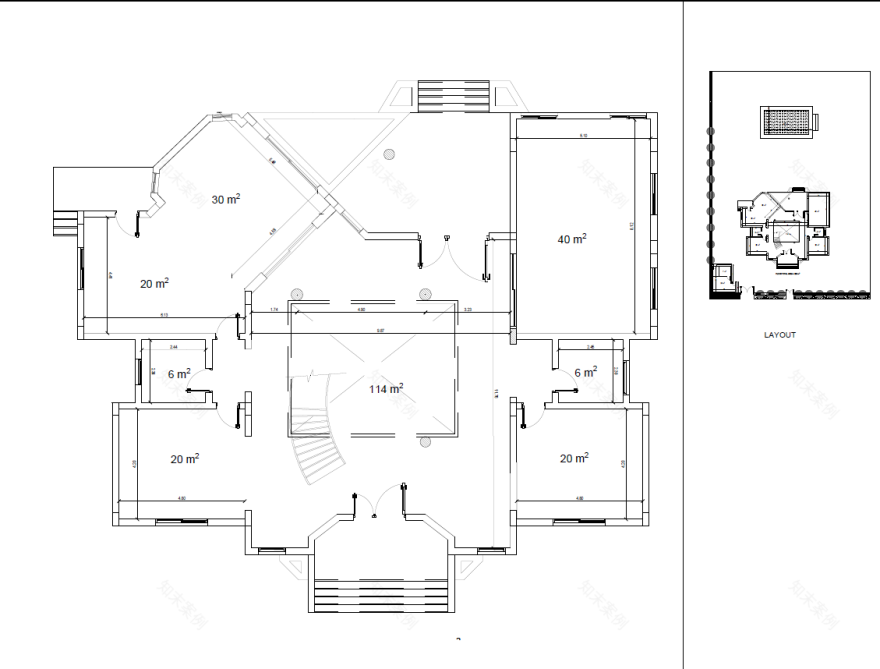
ground floor asbuilt
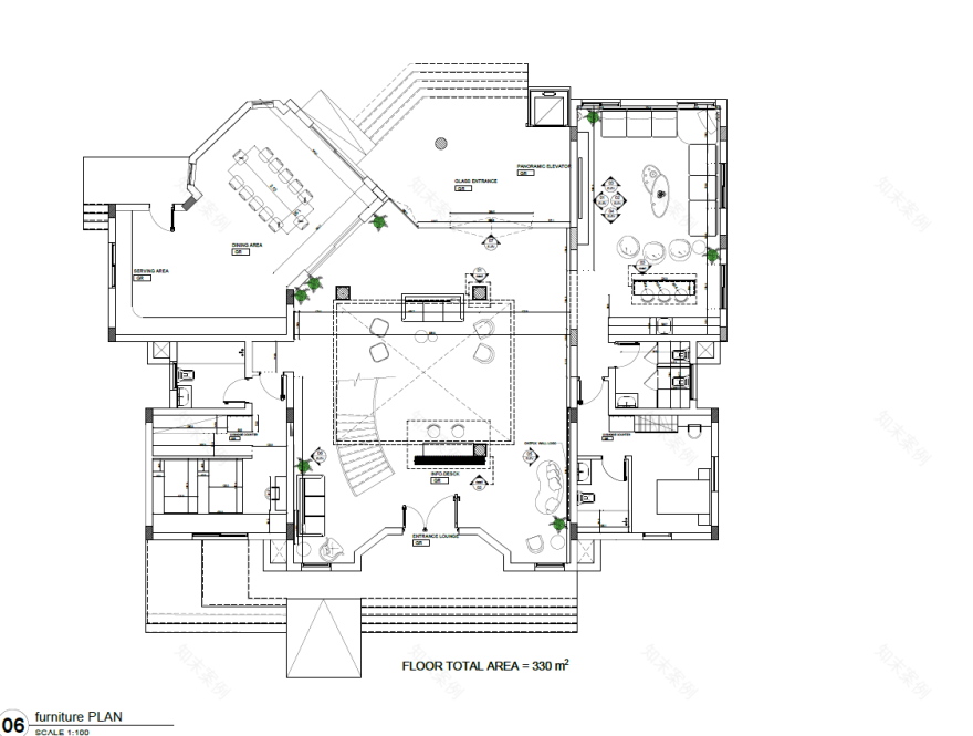
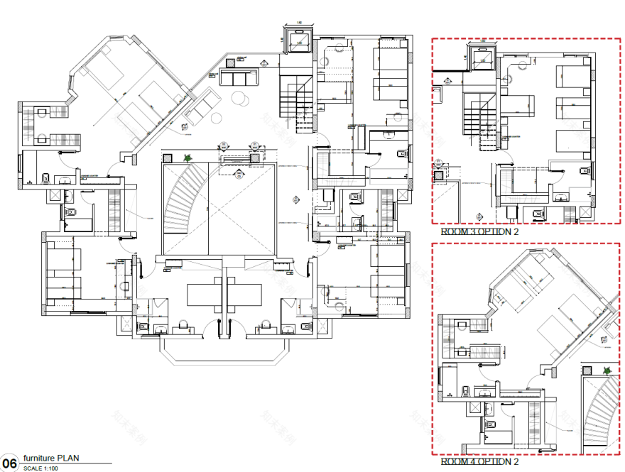
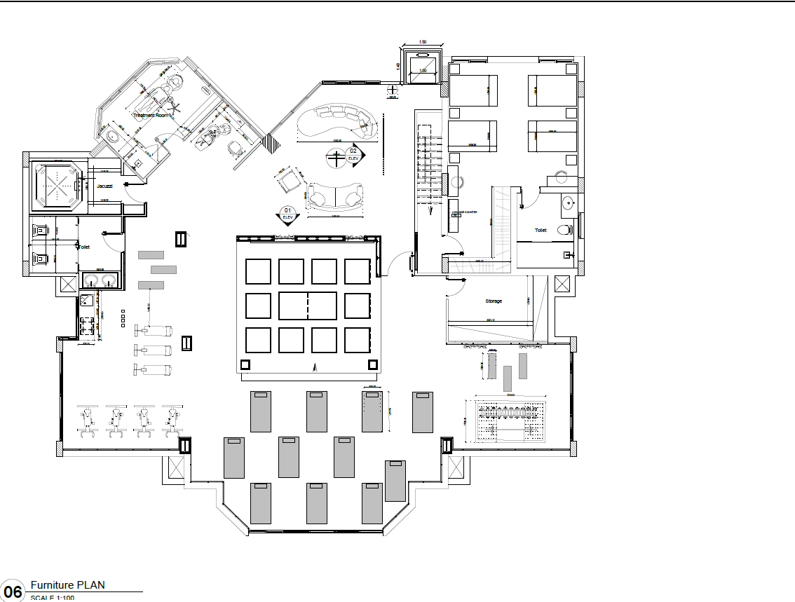
ground floor redesigned
This project focuses on the architectural redesign of a camp hotel dedicated to weight loss and wellness. Using AutoCAD, I developed detailed technical drawings that reimagine the space as a supportive environment for health-focused retreats.
The design integrates:
Functional zoning – clear separation of living, dining, fitness, and relaxation areas.
Wellness-oriented circulation – walking paths, open-air exercise zones, and active routes woven into the layout.
Minimalist, sustainable concepts – simple yet purposeful spaces that encourage movement and reduce distractions.
Community and privacy balance – group activity zones paired with private rest areas for reflection and recovery.
The goal of the redesign is to create an architectural solution that not only provides accommodation but also encourages healthier lifestyles, physical activity, and mental well-being.
客服
消息
收藏
下载
最近








