查看完整案例

收藏

下载

翻译
NEPAL SCHOOL PROJECT
designing for resilence
semi-finalists in an international competition
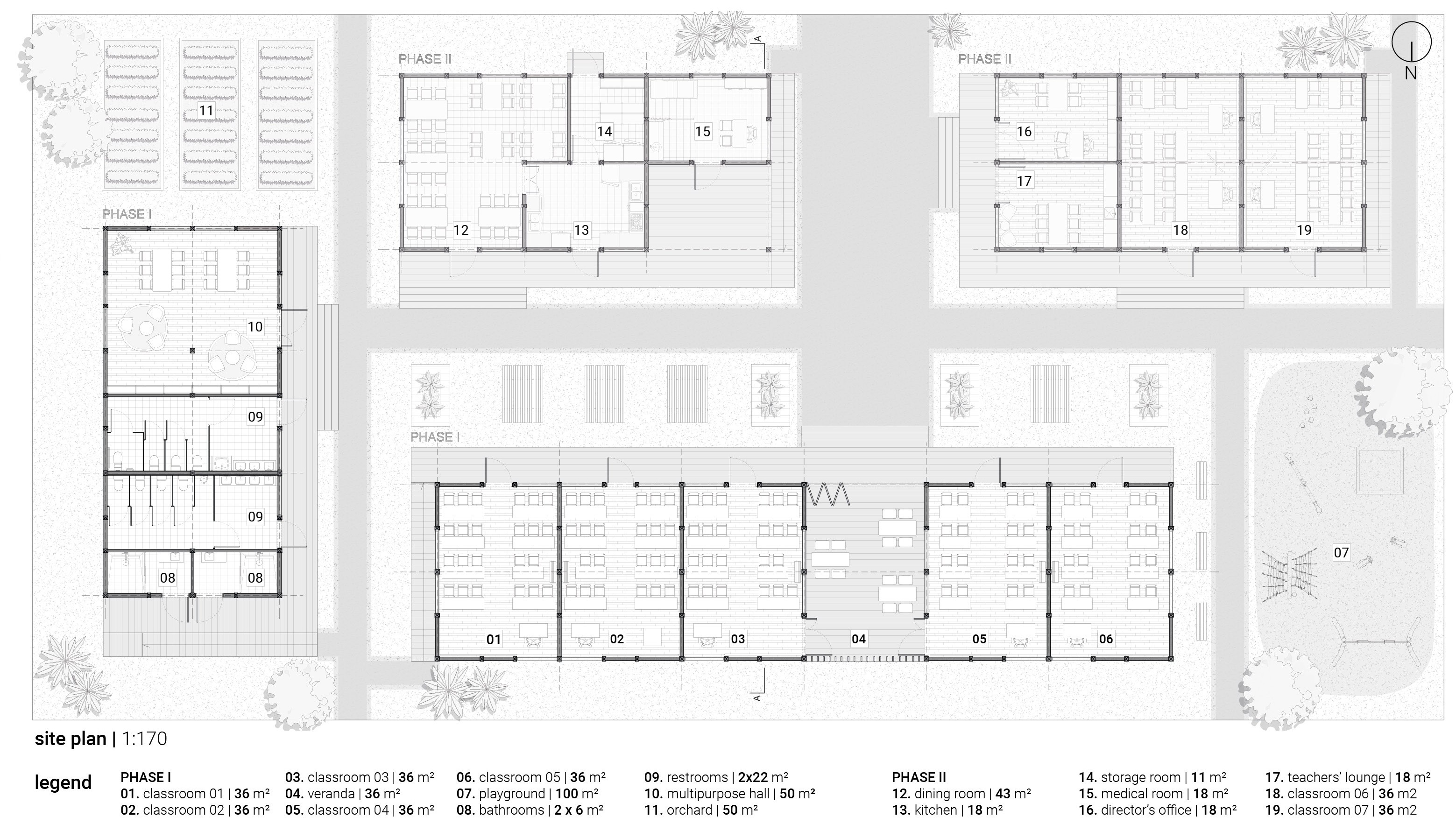
The Nepal School Project uses a modular system for phased construction and adaptability to varied terrains. It uses locally sourced materials—bamboo, straw, clay, and timber - to support the regional economy and craftsmanship. The building is elevated 60 cm on steel pillars to guard against flooding. X-shaped metal bracing reinforces the symmetrical, rectangular structure against earthquakes. Operable louvered windows with timber and translucent polycarbonate shutters allow cross-ventilation and soft daylight. Rainwater is collected via chain downspouts and stored for orchard irrigation and school use. Gravel trenches improve drainage and absorption, offering added flood protection. The design fosters a safe, climate-responsive, community-driven learning environment rooted in local culture and resilience.
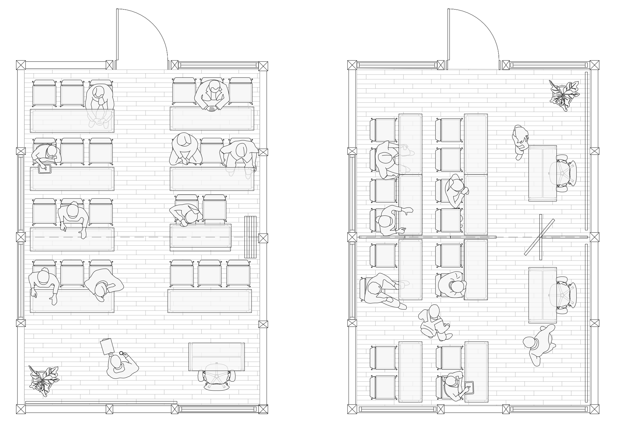
modular layout diagrams
site plan
exploded diagram showing structural elements
客服
消息
收藏
下载
最近













