查看完整案例

收藏

下载
在海天学校的设计中,我们将校园视作城市环境的一部分:它既是承载教学活动的“使用空间外表”,也是城市视角下“街区空间的内壁”。作为深处城市核心区的一处校园,它并不单以内向型空间规划为主导,而是主动整合、融入城市空间。
At Haitan School, we envisioned the campus as an integral part of the urban fabric: on the one hand, it is the “outer surface of learning spaces,” and on the other, the “inner façade of the city block.” Located in the heart of the city, the campus is not designed as an introverted enclave, but as an active extension of its urban surroundings.
▼学校鸟瞰,Aerial view of the campus©白羽
▼学校概览,Overview of the campus©白羽
1从城市到校园
From City to Campus
基地位于宝安中心区,邻近滨海文化公园。这里的城市肌理由弧形海岸线向外扩展的网格构成,项目用地正是其中一环,距离标志性的湾区摩天轮不到500米,人们可在摩天轮上一览校园全景。因此,校园的规划需要同时回应两端:一方面是学校内部的功能系统与流线组织,另一方面是所处滨海都市区的整体定位与环境气质,包括沿新圳河的重要城市界面,以及屋顶“第五立面”与周边肌理的协调。
The site lies next to Binhai Cultural Park, along the Xinzheng River, with the landmark Bay Glory Ferries Wheel visible less than 500 meters away. The campus needed to address two scales at once: the internal organization of educational programs and the external identity within the waterfront metropolis:including the important urban frontage along the Xinzheng River, as well as the coordination of the rooftop ‘fifth façade’ with the surrounding fabric.
▼学校入口,Entrance of the campus©袁小宜
最大的限制来自场地:一条地铁线斜穿基地,压缩了可建用地面积并制造了与周边不协调的斜向红线边界;在实际容积率高达3.5 的前提下,如何在高密度条件下保持清晰的组织与良好的城市关系,成为首要命题。
The greatest constraint came from the site itself: a subway line cut diagonally across the plot, reducing buildable area and imposing a skewed boundary misaligned with its surroundings. With an effective floor area ratio as high as 3.5, the foremost challenge was how to maintain clear organization and a strong urban relationship under such high-density conditions.
▼街道界面,Street interface©白羽
▼保持良好的城市关系,maintain clear organization and a strong urban relationship©白羽
对此,我们从“延续网格”入手:以城市网格向内导入校园,教学楼采用院落围合式布局,并将地铁控制线造成的斜边化解为正交的锯齿界面,从总体上降低几何冲突。功能上,将运动场置于东侧,把更完整的西侧留给教学楼;运动场整体抬升一层,以下与地下一层合用为室内球馆,实现土地的复合利用。
▼剖透视,perspective section©深圳市建筑设计研究总院有限公司
Our approach was to extend the city grid into the campus. Teaching blocks are arranged in courtyard clusters, while the irregular boundary is resolved into a jagged but orthogonal edge, reducing geometric contextconflicts. The sports field is elevated to the second level, with the space below integrated into the indoor gymnasium, making more efficient use of land.
▼抬升的运动场,the elevated field©白羽
抬升的运动场在新圳河一侧形成一块长直而厚重的“大板”界面,与街道关系过于生硬。与其在立面上“做加法”贴饰,我们转而从空间上寻找突破。突破口在于正交网格与斜向红线之间的夹角:当操场长轴顺网格方向布置,两者之间自然生成一条狭长的三角形空地。沿着这条三角带,建筑表皮完成了两次翻转——由立面转为屋面、再由屋面落回立面——在街角掀起一处向城市展开的空间,并与下方文体场馆衔接,成为学校公共文体教学与社区交流的过渡界面。这一轻盈的翻转体,既回应了滨海开放的城市气质,也成为项目的标志性形象——“云之翼”。
On the riverfront, this elevated field formed a heavy, planar “slab” facing the city. Instead of adding decoration to the façade, we searched for a spatial breakthrough. The key was the residual wedge-shaped zone between the orthogonal grid and the angled boundary. Along this strip, the building surface undergoes two flips—from façade to roof, and roof back to façade—unfolding a dramatic gesture towards the city. This light, soaring form, named the “Cloud Wing,” captures the open spirit of the waterfront and has become the school’s defining image.
▼抬升的运动场,the elevated field©白羽
▼屋顶花园,roof garden©白羽
2从校园到空间
From Campus to Learning Spaces
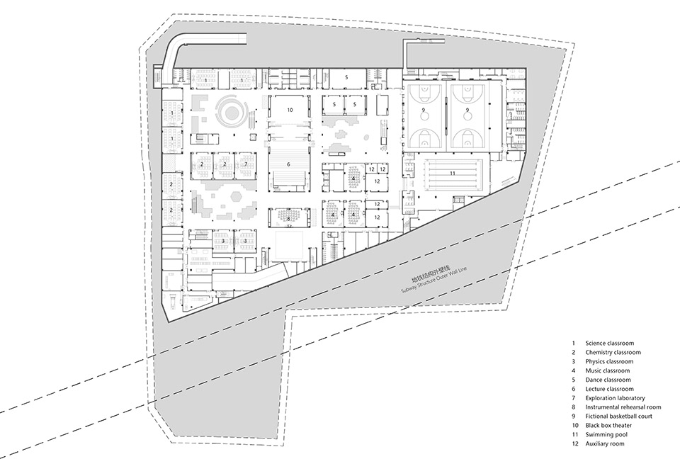
教学空间层面,我们将传统的“走廊—教室”行列式,转化为灵活的学习社区。普通教室按“三室一组团”组织,卫生间与教师办公就近布置,动线清晰高效;走廊前设置可停留的共享平台,满足课间十分钟的就近活动与临场讨论,缓解高密度校园的拥堵。小学、初中与共享学习中心共同构成完整的教学体系。
▼标准层轴测图,Standard floor axonometric©深圳市建筑设计研究总院有限公司
At the scale of teaching space, we moved beyond the conventional “corridor-and-classroom” model to create flexible learning communities. Standard classrooms are grouped in threes, with nearby offices and washrooms for efficiency. Shared platforms extend from corridors, offering places for informal discussion and easing congestion during breaks.
▼灵活的学习社区,flexible learning communities©白羽
▼灵活的学习社区,flexible learning communities©袁小宜
▼清晰的动线,clear circulation©白羽
▼中庭空间,atrium space©袁小宜
共享学习中心以“兴趣组团”替代刻板分区:不同学科的专用教室围绕小尺度中庭错动排布,在教室之间生成一系列非正式学习角落;顶部天窗引入柔和天光,木质立面营造温暖尺度,鼓励自发的选择、交流与展示。
▼学习中心细部,learning center detail©深圳市建筑设计研究总院有限公司
The shared learning center replaces rigid zoning with “clusters of interest.” Specialized classrooms are arranged around small courtyards, creating pockets for spontaneous interaction. Skylights bring in diffuse daylight, while warm timber finishes foster a welcoming environment.
▼立面局部,partial facade©袁小宜
▼立面局部,partial facade©白羽
▼屋顶空间,roof space©白羽
交通组织上,围绕校园中轴设置一条连续的环形立体回廊,开放的直跑楼梯纵向串联各层,形成一条从入口的“海浪花园”,经平台与架空活动区、学习中心中庭、图书馆台阶,到二层看台与抬升运动场、再上至屋顶观星台与花园的公共路径。通行即游逛,流线即场景。
▼连续的公共空间路径,Continuous public space pathways©深圳市建筑设计研究总院有限公司
A continuous ring-shaped gallery and open staircases weave the campus into a single public promenade—starting at the “Wave Garden” by the entrance, passing through courtyards, libraries, and viewing terraces, and finally leading up to the raised sports field, rooftop garden, and stargazing deck. Here, circulation itself becomes a sequence of experiences.
▼连续的环形立体回廊,a continuous ring-shaped gallery ©白羽
亲自然策略贯穿各层面:深进深空间以天窗补光,光线经梁格柔化;“云之翼”大台阶嵌入一方树院,成为可围坐的自然焦点;教学楼外廊连续种植池实现立体绿化,地面与下沉庭院设置不同主题的“绿洲”,屋顶整合植物认知、户外课堂与社团活动,与科普、健身等功能一起,将自然嵌入日常学习。
Biophilic strategies are embedded throughout: skylights soften light in deep spaces; a tree court anchors the grand stepped plaza of the “Cloud Wing”; green planters animate outdoor corridors; themed “oases” enliven courtyards and sunken gardens; and rooftops integrate botanical learning, outdoor classrooms, and fitness activities.
▼可围坐的自然焦点,a tree court anchors©白羽
我们从城市到校园,亦从教育到空间,以一次空间“翻转”联结校园与城市,同时构建开放、可达、亲自然的学习社区。
Through this dual movement—from city to campus, and from education to space—the design achieves both urban integration and the creation of an open, accessible, and nature-oriented learning community.
▼夜景,night view©白羽
▼夜景,night view©袁小宜
▼负一层平面图,basement plan©深圳市建筑设计研究总院有限公司
▼一层平面图,ground floor plan©深圳市建筑设计研究总院有限公司
▼二层平面图,first floor plan©深圳市建筑设计研究总院有限公司
▼三层平面图,third floor plan©深圳市建筑设计研究总院有限公司
▼四层平面图,fourth floor plan©深圳市建筑设计研究总院有限公司
▼立面图,elevation©深圳市建筑设计研究总院有限公司
▼剖面图,section©深圳市建筑设计研究总院有限公司
▼细部图,detail©深圳市建筑设计研究总院有限公司
项目名称:从城市到校园——深圳(宝中集团)海天学校
项目类型:教育建筑
设计方:深圳市建筑设计研究总院有限公司-城市建筑与环境设计研究院
项目设计:2021-2023年
完成年份:2024年
设计团队:主创建筑师:王思文,吴超;李永燚、朱靖丹、洪波、杨祎晖(方案);杨帆、陈晓云(建筑);卢斌、王丽(结构);张华、陈军、何远雄(机电);奚庆创、钟常盛(室内)
项目地址:深圳市宝安区海天路1号
建筑面积:74959㎡
摄影版权:白羽、袁小宜
合作方:景观设计:HILL 希尔景观
客户:深圳市宝安区建筑工务署
材料:UHPC/水刷石/铁锈板/涂料/金属铝拉网
Project name:From City to Campus — Shenzhen (Baozhong Group)Haitan School
Project type: Education Architecture design
Design:Shenzhen General Institute of Architectural Design and Research Co.,LTD-Shenzhen Institute of Metropolitan Architecture and Environment Design
Design year:2021-2023
Completion Year:2024
Leader designer & Team:Leader designer: Siwen Wang,Chao Wu,; Design Team: Yongyi Li, Jingdan Zhu, Bo Hong, Yihui Yang (Conceptual Design); Fan Yang, Xiaoyun Chen (Architecture); Bin Lu, Li Wang (Structure); Hua Zhang, Jun Chen, Yuanxiong He (MEP); Qingchuang Xi, Changsheng Zhong (Interior).
Project location:NO.1 Haitian Road, Bao’an District, Shenzhen
Gross built area: 74959㎡
Photo credit: Yu Bai, Xiaoyi Yuan
Partner:Landscape Design: HILL Design
Clients:Bao’an District Construction Works Bureau of Shenzhen
Materials:UHPC/Washed Stone Finish/Corten Steel Panel/Coating/Aluminum Expanded Metal Mesh
客服
消息
收藏
下载
最近













































