查看完整案例

收藏

下载
衡水垂直农场是van Bergen Kolpa建筑事务所设计的一座针对大都市农业的创新中心。项目位于中国衡水市桃城区。
With Vertical Farm Hengshui, van Bergen Kolpa Architects has delivered a center for innovation in metropolitan food production for the city of Hengshui, China.
▼建筑概览,Overall view© Weiqi Jin
折叠状的玻璃立面,具有仪式感的入口大厅,以及层层叠加的不同功能,衡水垂直农场通过各式建筑语言展现了都市农业的形象。于此同时,建筑采用了水循环,被动集热以及自然通风降温等多种手段,以展示都市农业生产的可持续性。
With its faceted glass façade, monumental entrance hall, and stacking of functions, Vertical Farm Hengshui offers a striking architectural face to horticulture in the metropolis. With its reuse of water, passive heat recovery, and natural cooling, the building demonstrates how food can be produced sustainably in the metropolis.
▼折叠状的玻璃立面,The faceted glass façade© Weiqi Jin
垂直农场位于衡水市的国际设施园艺产业园内。该园区集育苗种植,创新示范,科普教育等多功能为一体的综合现代农业创新园区。建筑共四层,包含着培训教育以及部分生产功能。垂直农场作为标志性的主入口建筑,以其瞩目的体量以及通透的外观俯瞰着园区内其他温室种植设施。
The Vertical Farm is built at the International Horticultural Park in Hengshui, which serves as the innovation center for fruit and vegetable cultivation in Hebei Province and China. The transparent, four-story building is the main entrance to the production and educational facilities and offers views of the greenhouse horticultural park for food production.
▼夜览鸟瞰,Bird’s eye night view© Weiqi Jin
针对创新和教育的建筑 Building for innovation and education
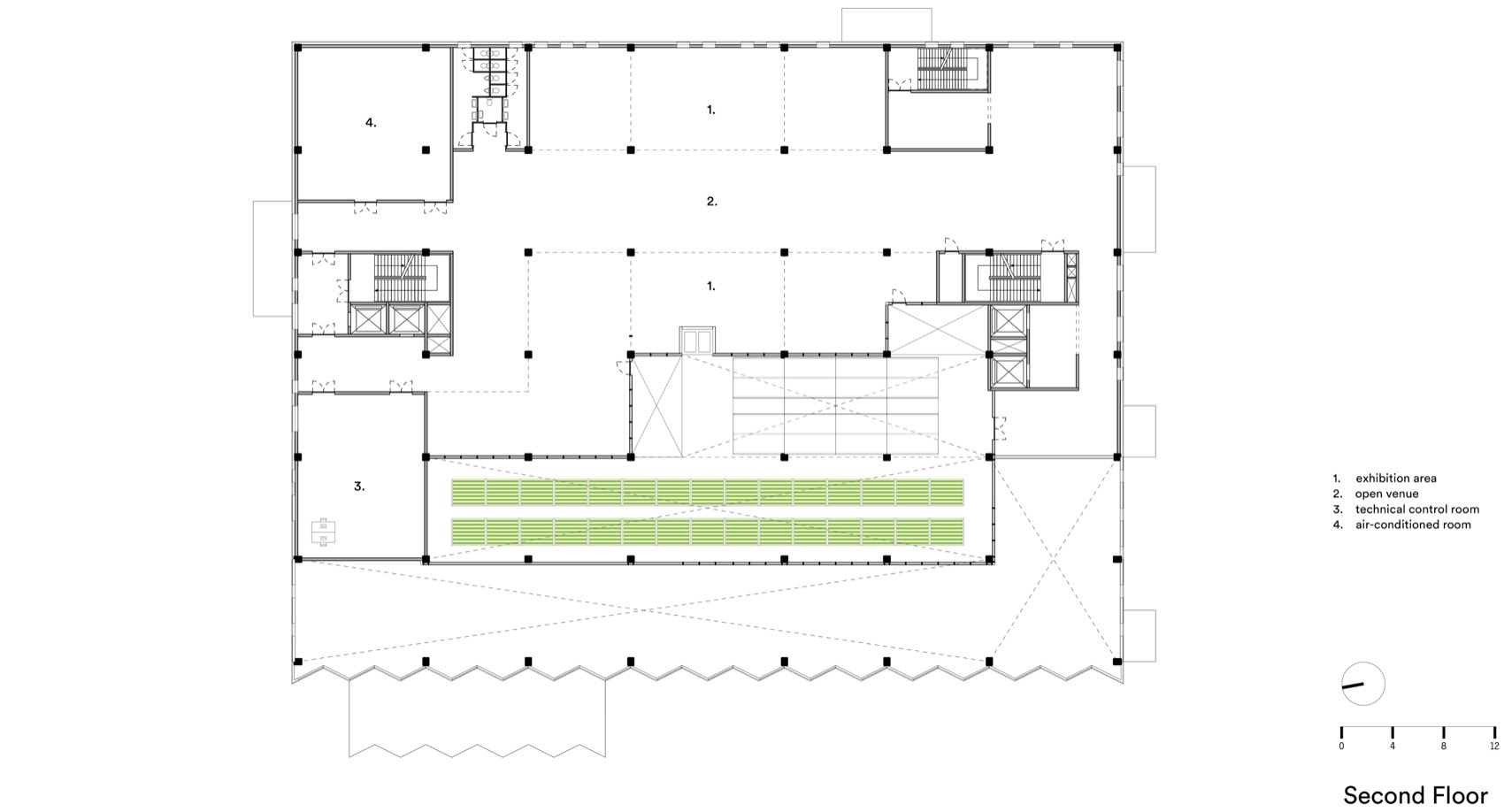
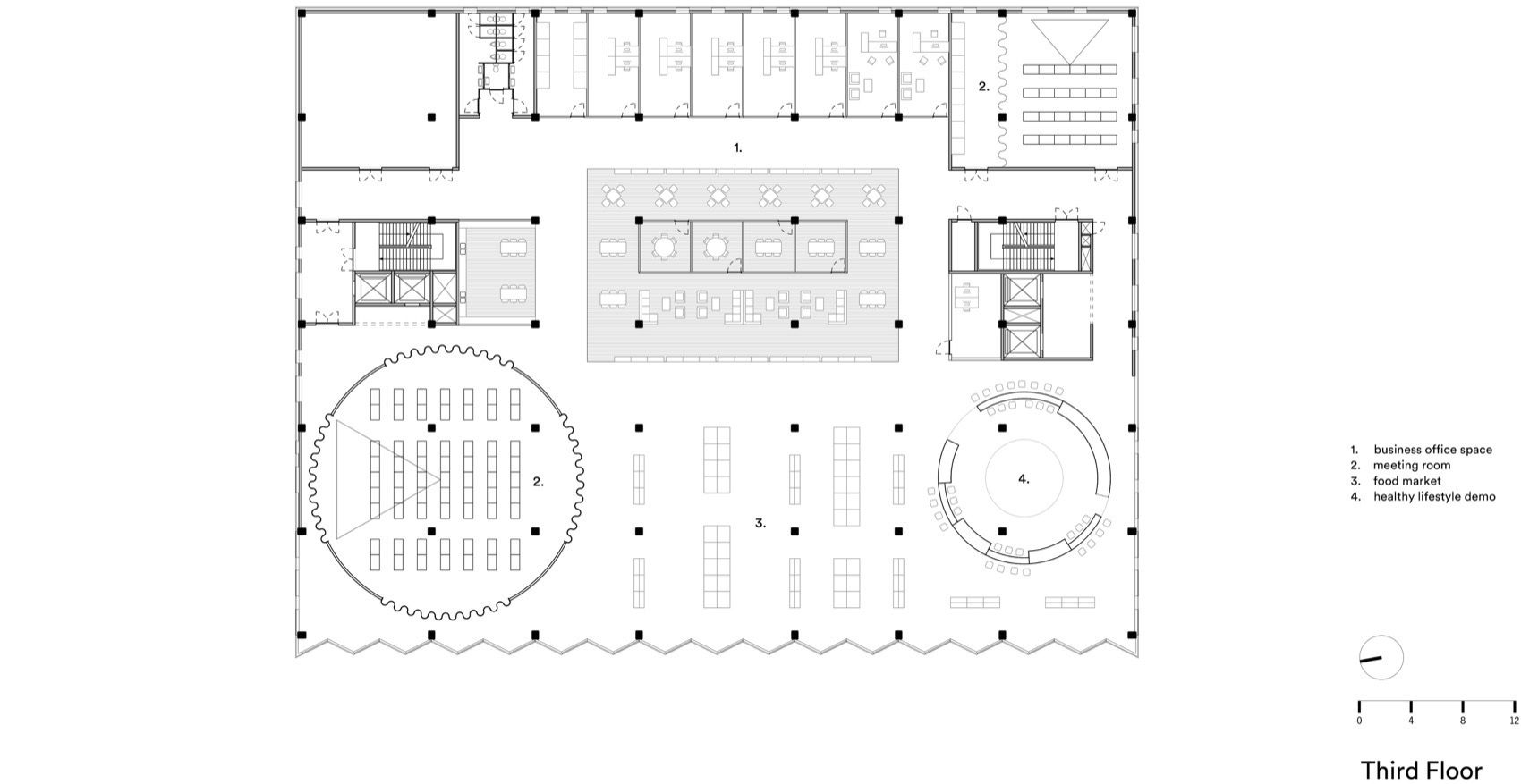
这座总计12800平米的垂直农场共有四层。在透明的首层入口大厅之上是一系列创新性垂直种植设施。游客可以跟随一条科普展示路线穿过自动化的LED灯下垂直果蔬种植设施,最终来到屋顶日光下的水果蔬菜种植区和果树庭院。在建筑的首层和二层中心的无日光区域是LED灯下的自动化垂直农场,以及配套的实验室和辅助空间。部分垂直种植设施透过玻璃墙面直接面向入口大厅展示。在建筑三层是食品健康以及创新园艺设施的展示空间。建筑四层的屋顶温室被分为两个区域,其中一个是以科普教育功能为主的室内庭院,另一个是以果蔬种植为主的日光车间。
The 12,800 m² building, spread over four floors, features various innovative vertical farming methods stacked above a transparent entrance hall. An educational route through the building guides visitors through the automated vertical cultivation of leafy vegetables and fruits under LED lighting, as well as a rooftop greenhouse where fruity vegetables and fruit trees are grown under daylight. At the heart of the building, on the lower two floors, are the automated vertical cultivation areas without daylight, under LED lighting, with laboratories and processing rooms. Some of these facilities have glass walls and are visible from the entrance hall on the ground floor. The third floor houses the demonstration center for healthy food and horticultural suppliers. The fourth floor is home to the rooftop greenhouse, which offers spaces for educational activities and compartments for the horizontal cultivation of fruit vegetables and fruit trees under daylight.
▼具有辨识度的玻璃立面,Recognizable glass facade © Weiqi Jin
“设计的挑战之一是通过空间的堆叠累加而分别满足种植作物,教育展示,办公等不同功能空间的用光需求。” Jago van Bergen, van Bergen Kolpa Architects
One of the challenges was to combine and stack the light conditions for the various types of cultivation and the work and educational spaces in a single four-story building. Jago van Bergen, van Bergen Kolpa Architects
▼分析图,analysis diagram© van Bergen Kolpa Architects
大都市圈农业与乡村振兴
Metropolitan horticulture and rural revitalization
为了向中国数千万的城市居民供给绿色健康的果蔬食品,食物生产必将采取最为可持续的方式,并且尽可能地与都市圈在资源循环及用地上相结合。河北省的乡村地区作为京津冀地区的主要果蔬产区,更是需要不断解决人口老龄化,气候变化以及水资源匮乏等各类问题。因此加强传统温室农业的可持续性,缩短食物供应链,吸引并教育新一代高技术园艺从业者,以及推广健康的生活方式是保障当地居民生产及生活质量的重要条件,同时也是当地乡村振兴的基石。
In order to provide millions of people in China’s growing metropolises with green and healthy food, it is necessary to make production as sustainable as possible and to integrate it into and around the metropolis. The province of Hebei, located around Beijing, Tianjin, and Hengshui, was originally the fruit and vegetable basket of these metropolises, but it is also facing aging, climate change, and water shortages. Promoting increased Sustainability through greenhouse horticulture, shortening food chains, attracting a younger generation of horticulturalists, and promoting a healthy lifestyle are the foundations for rural revitalization.
▼立面细部,Facade details© Weiqi Jin
衡水垂直农场展示了一种面向未来的发展模式,即将种植园艺,商业以及教育等不同功能的叠加为同一体量。这种新型的专业综合设施既可以提供种植生产空间,又可以面向大都市圈中更广大的居民群体开放,使得食物生产这个原本在城市环境中隐身的重要环节重新进入大众的视野。
Vertical Farm Hengshui offers an innovative and versatile solution for the future, with stacked horticulture, entrepreneurship, and education on a compact scale. It is a new type of building for professional cultivation that is accessible to a wide audience celebrating the important role of food in metropolitan areas.
▼立面入口处,Entrance© Weiqi Jin
“垂直农业为大都市如何既生产又消费食物的问题提供了解决方案。通过这种方式,供应链中的物流成本得以节省,居民可以获得真正新鲜的蔬菜。”“这座园艺综合体是与中国与荷兰在高技术园艺产业领域合作伙伴与供应商合作建立的一个进步。”
“Vertical horticulture offers a solution to the question of how metropolises can both produce and consume food. This saves on logistics costs and allows residents to actually receive fresh vegetables.” “This horticultural complex is an important step in the development of the high-tech horticultural sector, together with international knowledge partners and suppliers from the Netherlands in China.”
▼项目模型,model©van Bergen Kolpa Architects
可持续的水资源与能源使用
Sustainable use of water and energy
这座垂直农场尽可能珍惜每一滴水资源。灌溉作物用的水会被收集起来循环使用。建筑的室内气候控制采用自然通风和蒸发降温等多种方式。来自太阳辐射的被动热能以及LED灯的预热被用于供暖。
▼轴测分析图,axo diagram©van Bergen Kolpa Architects
Not a single drop of water is wasted in the building. When irrigating the plants, excess water is collected and reused. Natural ventilation and evaporation-based cooling are used to manage the climate in the building. Passive heat from the sun and residual heat from the LED lighting are used for heating.
▼入口大厅,Entrance hall© Weiqi Jin
“垂直农场使植物能够在富含营养的水中可持续生长,所需的自然光线通过人工光源进行补充。一些在城市中被视为无用的资源可以在垂直园艺中得到再利用,例如污水中的营养物质和空气中的二氧化碳。”
Vertical Farm Hengshui offers the possibility to grow plants in a sustainable way in nutrient-rich water, with artificial sources supplementing the daylight they need. Certain resources that are considered unusable in the metropolis can be reused in vertical horticulture, such as nutrients from sewage water and carbon dioxide in the air.
▼种植现场,Planting site © Weiqi Jin
▼温室花园,Greenhouse garden © Weiqi Jin
通透的雕塑
A transparent sculpture
垂直农场衡水是一座以钢与玻璃为材料的宏伟建筑,通透的外观彰显了其中农业与教育等多种功能。该建筑的钢结构外立面使其在衡水天际线中脱颖而出,其一系列透明的落地窗更添现代感。主入口富有表现力的折叠多面玻璃立面呈现出独特外观。
▼城市动线,urban flow©van Bergen Kolpa Architects
Vertical Farm Hengshui is a proud sculpture of steel and glass that emphasizes its role in horticulture and education. The building is constructed from an industrial steel structure that stands out against the Hengshui skyline with a series of transparent bay windows. The entrance is striking thanks to its expressive, faceted glass façade.
▼种植车间,Planting workshop © Weiqi Jin
▼人们在参观,People are visiting © Weiqi Jin
▼AI农场,AI farm© Weiqi Jin
玻璃落地窗全天候提供无反光的内外视野。在独特的LED灯光照射下,建筑物在夜晚如园艺产业园中的宝盒般熠熠生辉。
The glass bay windows offer constant, reflection-free views throughout the day, both from the inside and outside. In the evening, the building glows like the Treasure Box of the Horticultural Park, thanks to its characteristic ultraviolet light.
▼夜览,Night view© Weiqi Jin
“对于衡水垂直农场项目,我们进一步优化了标准的Venlo屋顶温室设计,并将其搭建在钢结构底座上,从而实现了垂直农业所需的高效无柱跨度。”
For Vertical Farm Hengshui, we further improved the usual Venlo roof greenhouse and stacked it on a steel substructure, enabling an efficient and column-free span for Vertical Farming.
▼项目区位,site plan©van Bergen Kolpa Architects
▼首层平面图,first floor plan©van Bergen Kolpa Architects
▼二层平面图,secondfloor plan©van Bergen Kolpa Architects
▼三层平面图,thirdfloor plan©van Bergen Kolpa Architects
▼四层平面图,fourthfloor plan©van Bergen Kolpa Architects
▼西立面图,west facade©van Bergen Kolpa Architects
▼南立面图,southfacade©van Bergen Kolpa Architects
▼东立面图,eastfacade©van Bergen Kolpa Architects
▼北立面图,northfacade©van Bergen Kolpa Architects
▼剖面图,section©van Bergen Kolpa Architects
▼细节大样图,urban flow©van Bergen Kolpa Architects
项目信息
委托方:AgriGarden
地址:衡水国际设施园艺产业园
建筑面积:12800平方米
建筑方案设计:van Bergen Kolpa建筑事务所
室内设计:AgriGarden
种植技术:AgriGarden,Logiqs,Viscon
项目设计:2019 - 2020
项目施工:2021 - 2024
建筑摄影:金伟琦
Client: AgriGarden
Location: Hengshui International Horticultural Park, China
Surface area: 12,800 m²
Architecture: van Bergen Kolpa Architects
Interior design: AgriGarden
Cultivation techniques: AgriGarden, Logiqs, Viscon
Planning: design 2019 - 20, implementation 2021 - 2024
Photography: Weiqi Jin, Beijing
客服
消息
收藏
下载
最近






































