查看完整案例

收藏

下载
PROJECT DETAILS
Location:
成都保利时光里北里1F-1021
Chief Designer & Team:
Mojo Wang I 濮昊 I 陈铭源
CAD Designer:
王欢
Photography:
形在建筑空间摄影-贺川
Area:
240㎡
Year:
2024
PROJECT OVERVIEW
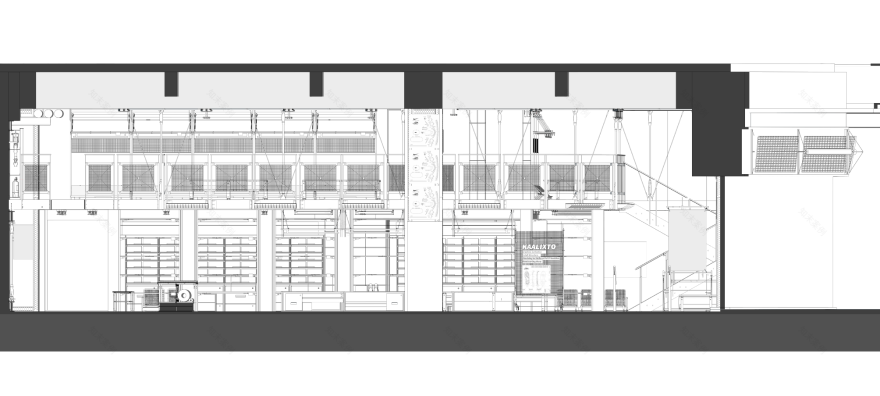
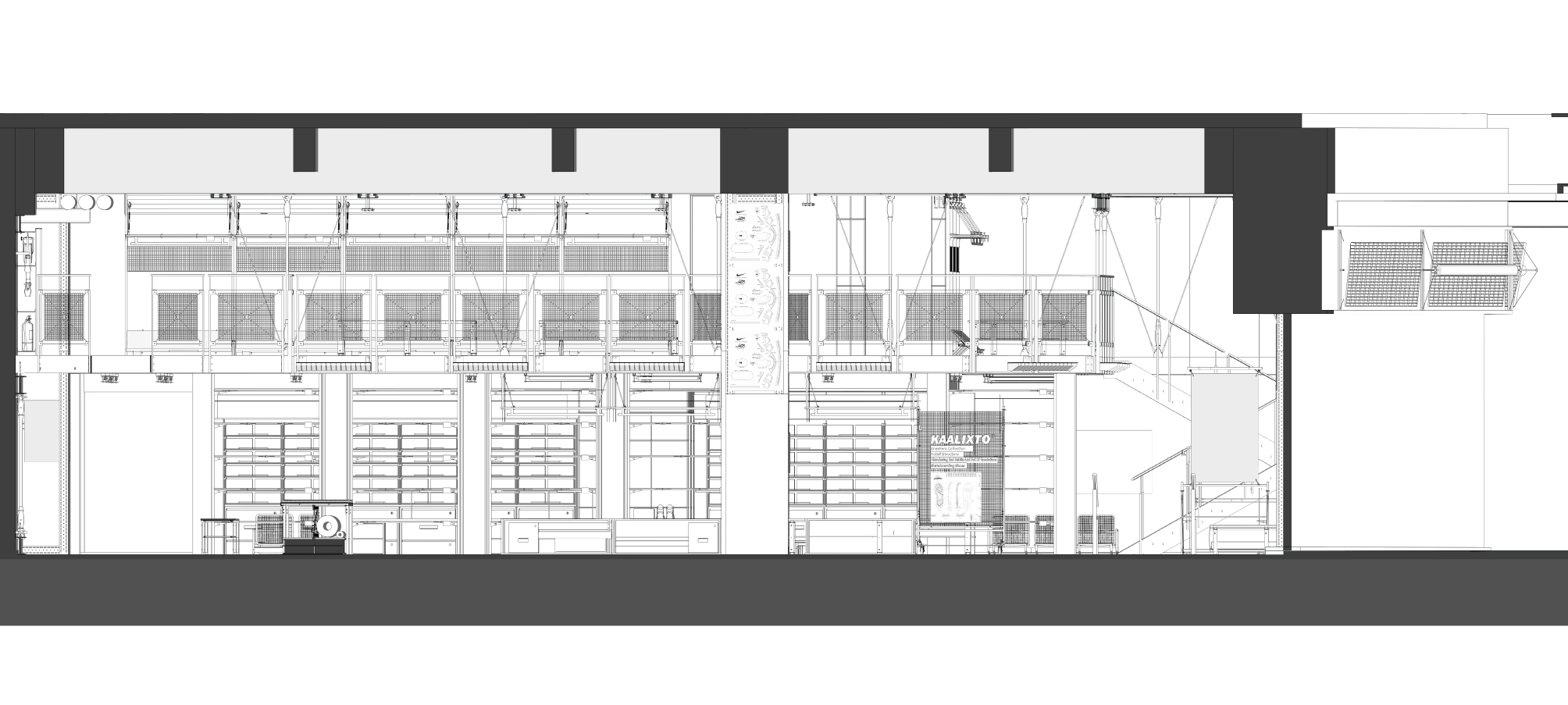
KAALIXTO保利店延续了工厂与实验室的概念,
设计团队在项目中对结构、节点与空间关系系进行了一定的实验与探索。
INTERIOR CONCEPT
KAALIXTO保利店采用钢结构设计将空间划分为上下两层,并通过两座钢板悬挑楼梯相连接。
空间中整个搭建结构与原建筑混凝土结构均裸露出来,利用暴露的建筑肌理强化空间的结构特征。
空间中存在多种不同的高度层次;
不同标高的销售区功能区形成富有节奏的阶梯式分布,
配合钢结构梁架的叠合走势,在纵向空间内形成具有引导性的视觉动线。
一楼下沉空间通过功能分区形成递进式布局:
入口过渡区铺设白色地砖构成视觉缓冲带,向内延伸的DIY区则采用工业化实验台配置,
结合大面积方格灯膜,模拟出工厂研发实验室的空间形态。
金属节点与型材在视觉上突出了结构的精密理性,
木质海洋板则为冷硬的材质注入温度与自然感,共同打造出一个理性、秩序轻盈并存的空间。
客服
消息
收藏
下载
最近





























