查看完整案例

收藏

下载
[color=rgba(0, 0, 0, 0.9)]
岁月悄悄地从身边滑过,不知不觉间,年华一度又一度,我似乎已经忘记了如今是几个年头。流年里荡漾的过往,随着时间的暗换,慢慢远去,消失得无迹可寻。而我依旧执着于昨日的繁华里,追逐着故事里的灿漫。---三毛
保亿·御景润府,坐落于城市繁华与自然的交汇点,匠心独运地打造了一片集居住、休闲、娱乐于一体的高品质生活空间。项目地理位置优越,周边配套设施完善,户型设计与空间布局更是精益求精,旨在为每位业主带来尊贵而舒适的生活体验。
轻奢雅致,诠释生活美学新高度。
设计之初,团队便秉持“轻奢雅致”的核心理念,力求实现空间功能性与美观性的完美融合。通过精心挑选的材质、色彩与装饰品,营造出现代而不失温馨的生活氛围,充分考量居住者的生活习惯与心理需求,每一处细节都蕴含着对美好生活的无尽追求。
光影趣觅 美好旖旎
阳光轻抚空间,温暖如春的气息在每一寸空间中悠然弥漫。在这宁静而雅致的客厅里,美好旖旎仿佛触手可及。请暂时放慢脚步,细细品味这个空间所蕴含的情绪价值。
时光轻抚,繁华静谧交织。自然之神以奢石为幕,绿植为伴,两者交融激发无限生机,将空间高级感推向新高。
金属元素不仅增添了空间的现代奢华感,更在光影的折射下,映射出居住者的选择、品味与感知。时光的镜子记录着生活的每一个瞬间,慢煮生活,聚合空间场域。
解构新时代人的生活需求
在平面布局进行了重新的构思并调整,增强空间的开放性,获得更大的开放式社交空间
餐厅,作为家的心脏地带,是汇聚味蕾盛宴与亲情温馨的焦点所在。这里,不仅是美食的汇聚之所,更是情感细腻交流的温馨殿堂。
精选的桌椅,在细节中彰显匠心,不仅确保了用餐的舒适体验,更将空间的质感提升至全新的高度,营造出一种既优雅又温馨的用餐氛围。
绿植的巧妙穿插,与各式器皿的艺术摆放,共同编织着空间的故事篇章,让每一次聚餐都成为一场视觉与味觉的双重盛宴,让家的温暖与美好,在每一寸空间中悄然流淌,松弛惬意。四代露台
四代住宅,巧妙利用精致的露台空间,匠心独运地构建出一个崭新的家庭场域。在这里,自然与人的距离被无限拉近,无需远行寻觅,松弛的惬意与满眼的绿意就静静地环绕在身旁,触手可及。
朝揽清风,暮赏余晖
打破了建筑与自然的界限,延伸生活无限美好可能
私享人生
轻倚流年
愿所见皆温情,所触皆光明
在独处的天地间,拥抱内心的孩童
阅读、休憩、冥想、深思……
万家灯火,点亮心中期盼
生活因期待而充满意义与色彩
极具考究的次卧空间,可做偶尔来访的老人房,也可作为客人房。每一处细节都经过了精心的设计与打磨,是居住者个性与品味的艺术殿堂。在这里,艺术与生活相互交融,共同演绎出一场高奢舒享的精致之旅。
童梦稚趣
童心成梦
随着二胎家庭的日益增多,双儿童房的设计成为了现代家居布局中的一个新颖而重要的选项。以色彩为笔,为孩子们的童年绘上斑斓的梦想。
深度考量不同年龄段孩子的独特需求,精心打造既满足大童成长独立性又兼顾小童温馨安全感的两类特色房型,在巧妙地将空间规划与日常生活场景相融合,力求每一寸空间都能发挥出最大的价值。
空间,不仅是物质的存在,更是心灵的栖息地。它以一种无形的力量,牵引着每一个踏入其中的灵魂,与周遭的环境建立起一种微妙的情感共鸣。在这里,人的行为与空间的韵律相互应和,仿佛每一举动都在诉说着对未来生活的无限憧憬与深刻理解,激发着想象力的翅膀,翱翔于未知的天际。
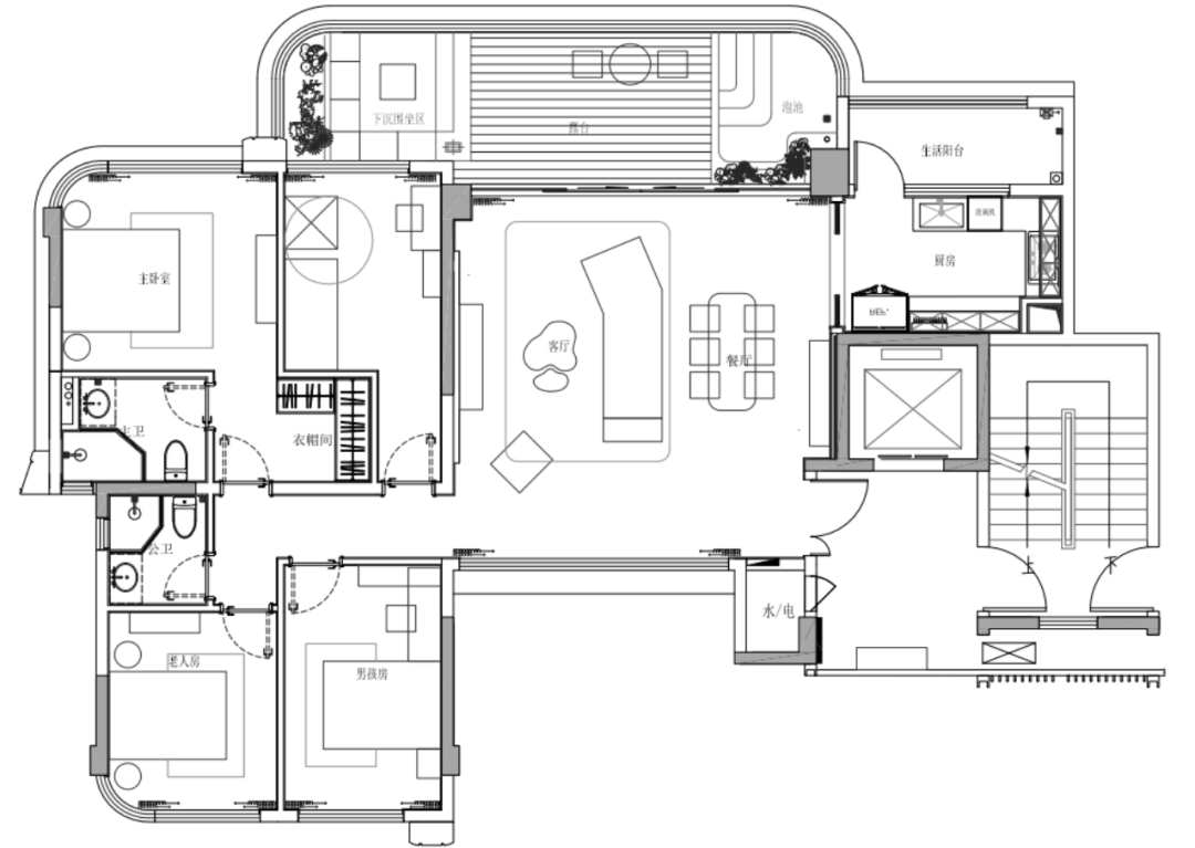
▽设计平面图
项目名称 | 保亿·御景润府
业主单位 | 重庆保亿地产
项目位置 | 重庆蔡家
项目类型 | 样板间
设计面积 | 约135㎡
完成时间 | 2024.11
设计公司 | 海力空间设计
设计范围 | 空间设计+软装设计
客服
消息
收藏
下载
最近



































