查看完整案例

收藏

下载
项目名称:德国SWR广播大楼
位置:德国
设计单位:Steimle Architekten
图片数量:27张
开放、透明与责任——这是当今媒体世界的期望,同时也反映在南西广播公司(Südwestrundfunk,新媒体中心)新媒体中心的设计与布局中。
▼外观概览 © Brigida González
位于曼海姆北城区尼卡河(Neckar)河口桥头的新SWR演播室建筑,以“开放与透明”的姿态呈现。在新的Schafweide街区开发中,这座自信的独栋建筑以醒目的高度成为序幕,同时在城市空间中调和其与周边邻居的关系。与此同时,SWR建筑凭借其显著的位置,在街区内的过往交通中也具有重要的视觉存在感。
▼隔岸远观 © Brigida González
▼建筑近景 © Brigida González
▼建筑立面 © Brigida González
▼立面近景 © Brigida González
街区前的城市广场不仅履行了城市规划功能——连接开放空间并将街区向以老树为特色的尼卡河河岸开放——更应被理解为一个互动平台,提供“制作广播”的观察空间。结合广场一侧的咖啡厅与户外露台,日常演播室生活与公共空间的界限变得模糊。四周采用玻璃幕墙,并以垂直铝制柱状饰条分割的立面,使人们能够无阻碍地观察广播站的昼夜活动,同时也将媒体工作者与其周边环境紧密相连。
▼铝制柱状饰条分割的立面 © Brigida González
▼广播工作室© Brigida González
▼办公空间 © Brigida González
整栋建筑共六层,约60名员工负责为听众提供全面报道与最新信息。建筑体量通过两层高的凸出与凹入部分塑造出雕塑感。在广场层,这些体量形成了主入口和咖啡厅的有顶前庭。由于建筑体量的偏移,第四层设有面向西北方向的城市阳台。根据建筑体量,可将功能划分为三大区域,对应三层体块:前两层为公共空间——大堂、咖啡厅、会议中心;中间两层为媒体建筑的核心——办公桌与演播室,占据整个平面;上方两层则为行政办公。办公区与工位在“开放空间”与单元办公室间灵活组织,以适应不同的布局需求。多处空中空间与开放式楼梯连接各楼层,并结合开放交流区,保证多媒体工作流程的顺畅。
▼办公空间中的螺旋楼梯 © Brigida González
▼窗边休闲空间 © Brigida González
▼窗边休闲空间© Brigida González
▼楼梯© Brigida González
无论从外观还是内部,SWR项目都散发出活力媒体建筑的特质,而这座独立建筑通过其城市设计在新街区中牢牢地扎根。
▼项目区位 © STEIMLE ARCHITEKTEN BDA
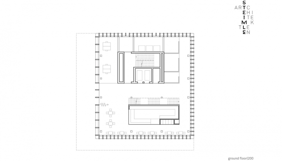
▼首层平面图 © STEIMLE ARCHITEKTEN BDA
▼2层平面图 © STEIMLE ARCHITEKTEN BDA
▼3层平面图 © STEIMLE ARCHITEKTEN BDA
▼4层平面图 © STEIMLE ARCHITEKTEN BDA
▼5层平面图 © STEIMLE ARCHITEKTEN BDA
▼6层平面图 © STEIMLE ARCHITEKTEN BDA
▼剖面图 © STEIMLE ARCHITEKTEN BDA
客服
消息
收藏
下载
最近
























