查看完整案例

收藏

下载
项目名称: 衡水垂直农场
位置:河北衡水
设计单位: van Bergen Kolpa Architects
图片数量:38张
衡水垂直农场是van Bergen Kolpa建筑事务所设计的一座针对大都市农业的创新中心。项目位于中国衡水市桃城区。
▼建筑概览 © Weiqi Jin
折叠状的玻璃立面,具有仪式感的入口大厅,以及层层叠加的不同功能,衡水垂直农场通过各式建筑语言展现了都市农业的形象。于此同时,建筑采用了水循环,被动集热以及自然通风降温等多种手段,以展示都市农业生产的可持续性。
▼折叠状的玻璃立面 © Weiqi Jin
垂直农场位于衡水市的国际设施园艺产业园内。该园区集育苗种植,创新示范,科普教育等多功能为一体的综合现代农业创新园区。建筑共四层,包含着培训教育以及部分生产功能。垂直农场作为标志性的主入口建筑,以其瞩目的体量以及通透的外观俯瞰着园区内其他温室种植设施。
▼夜览鸟瞰 © Weiqi Jin
针对创新和教育的建筑
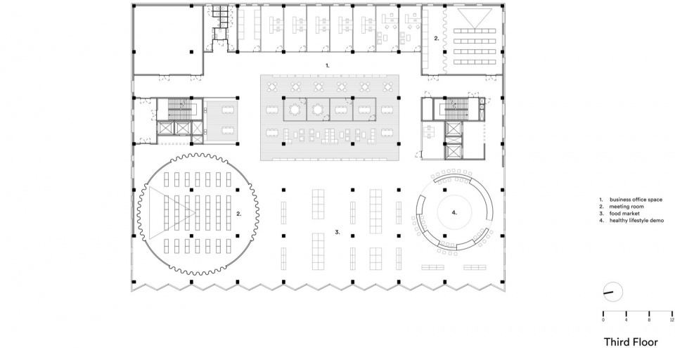
这座总计12800平米的垂直农场共有四层。在透明的首层入口大厅之上是一系列创新性垂直种植设施。游客可以跟随一条科普展示路线穿过自动化的LED灯下垂直果蔬种植设施,最终来到屋顶日光下的水果蔬菜种植区和果树庭院。在建筑的首层和二层中心的无日光区域是LED灯下的自动化垂直农场,以及配套的实验室和辅助空间。部分垂直种植设施透过玻璃墙面直接面向入口大厅展示。在建筑三层是食品健康以及创新园艺设施的展示空间。建筑四层的屋顶温室被分为两个区域,其中一个是以科普教育功能为主的室内庭院,另一个是以果蔬种植为主的日光车间。
▼具有辨识度的玻璃立面© Weiqi Jin
▼分析图© van Bergen Kolpa Architects
大都市圈农业与乡村振兴
为了向中国数千万的城市居民供给绿色健康的果蔬食品,食物生产必将采取最为可持续的方式,并且尽可能地与都市圈在资源循环及用地上相结合。河北省的乡村地区作为京津冀地区的主要果蔬产区,更是需要不断解决人口老龄化,气候变化以及水资源匮乏等各类问题。因此加强传统温室农业的可持续性,缩短食物供应链,吸引并教育新一代高技术园艺从业者,以及推广健康的生活方式是保障当地居民生产及生活质量的重要条件,同时也是当地乡村振兴的基石。
▼立面细部 © Weiqi Jin
衡水垂直农场展示了一种面向未来的发展模式,即将种植园艺,商业以及教育等不同功能的叠加为同一体量。这种新型的专业综合设施既可以提供种植生产空间,又可以面向大都市圈中更广大的居民群体开放,使得食物生产这个原本在城市环境中隐身的重要环节重新进入大众的视野。
▼立面入口处 © Weiqi Jin
▼项目模型 © van Bergen Kolpa Architects
可持续的水资源与能源使用
这座垂直农场尽可能珍惜每一滴水资源。灌溉作物用的水会被收集起来循环使用。建筑的室内气候控制采用自然通风和蒸发降温等多种方式。来自太阳辐射的被动热能以及LED灯的预热被用于供暖。
▼轴测分析图 © van Bergen Kolpa Architects
▼入口大厅 © Weiqi Jin
▼种植现场 © Weiqi Jin
▼温室花园 © Weiqi Jin
通透的雕塑
垂直农场衡水是一座以钢与玻璃为材料的宏伟建筑,通透的外观彰显了其中农业与教育等多种功能。该建筑的钢结构外立面使其在衡水天际线中脱颖而出,其一系列透明的落地窗更添现代感。主入口富有表现力的折叠多面玻璃立面呈现出独特外观。
▼城市动线 © van Bergen Kolpa Architects
▼种植车间 © Weiqi Jin
▼人们在参观 © Weiqi Jin
▼AI农场 © Weiqi Jin
玻璃落地窗全天候提供无反光的内外视野。在独特的LED灯光照射下,建筑物在夜晚如园艺产业园中的宝盒般熠熠生辉。
▼夜览 © Weiqi Jin
“对于衡水垂直农场项目,我们进一步优化了标准的Venlo屋顶温室设计,并将其搭建在钢结构底座上,从而实现了垂直农业所需的高效无柱跨度。”
▼项目区位 © van Bergen Kolpa Architects
▼首层平面图 © van Bergen Kolpa Architects
▼二层平面图 © van Bergen Kolpa Architects
▼三层平面图 © van Bergen Kolpa Architects
▼四层平面图 © van Bergen Kolpa Architects
▼西立面图 © van Bergen Kolpa Architects
▼南立面图© van Bergen Kolpa Architects
▼东立面图 © van Bergen Kolpa Architects
▼北立面图 © van Bergen Kolpa Architects
▼剖面图 © van Bergen Kolpa Architects
▼细节大样图 © van Bergen Kolpa Architects
项目信息委托方:AgriGarden地址:衡水国际设施园艺产业园建筑面积:12800平方米建筑方案设计:van Bergen Kolpa建筑事务所室内设计:AgriGarden种植技术:AgriGarden,Logiqs,Viscon项目设计:2019-20项目施工:2021-2024建筑摄影:金伟琦
客服
消息
收藏
下载
最近





































