查看完整案例

收藏

下载
对于想要逃离城市压力的人而言,回归自然的身心旅行就像体验另一种人生,生活褪去了浮华喧嚣的外壳,逐渐显露出它最真实、动人的面貌。
For those who wish to escape the pressures of the city, a journey of body and mind back to nature feels like experiencing another life. In this sanctuary, the glamorous and noisy shell of life gradually fades away, revealing its most genuine and touching face.
▼店铺外观,Exterior view© ACT Studio建筑空间摄影
入口处的户外空间让此拥有了自己的花园,独特的低饱和度植物和天然的火山石的堆叠出了一个属于“星星”的私密空间。树影在阳光下摇曳、微风温柔的吹过,柔软的纱帘在风中画着风的形状,带来无限的惬意。在这里人们如同置身法国南部,品一杯咖啡,共谈琐碎日常,让“等待”不再是浪费,而成为一段可分享的空白。
▼外立面分析图,facade analysis© 园舍空间设计
The outdoor space at the entrance gives it its own garden, where stacks of uniquely low-saturation plants and natural volcanic stones create a private space belonging to “Stars.” Tree shadows sway under the sunlight, a gentle breeze brushes by, and soft gauze curtains trace the shape of the wind, bringing endless comfort. Here, people feel as if they are in the south of France—sipping a cup of coffee, sharing bits of everyday life, letting “waiting” cease to be a waste and instead become a shareable interlude.
▼远观入口处的户外空间,Distant view of outdoor space© ACT Studio建筑空间摄影
▼入口处的户外空间,Outdoor space© ACT Studio建筑空间摄影
▼入口处,Entrance© ACT Studio建筑空间摄影
▼入口处细部,Entrance details© ACT Studio建筑空间摄影
业主是一位30岁的年轻女性,热爱普拉提并将之从爱好发展成了专业。「Star Pliates Hub」以“星”为名,希望每一位来此的会员都是自己的宇宙中最闪耀的星星。这个场馆也是她送给自己的30岁生日礼物,同时也打开了人生的新篇章。
▼空间分析图,space analysis© 园舍空间设计
The owner is a 30-year-old young woman who loves Pilates and has developed it from a hobby into a profession. Named “Star Pilates Hub” after “Stars,” she hopes every member here becomes the brightest star in their own universe. This venue is also a 30th birthday gift to herself, marking the opening of a new chapter in life.
▼主要空间概览,Overall view© ACT Studio建筑空间摄影
▼入口处,Entrance space© ACT Studio建筑空间摄影
设计师根据原建筑场风貌,置入3组屋顶形成序列感的门头造型,利用外摆区打造室内外的浪漫花园,为室内提供自然的窗景,为整体外立面营造轻松惬意的边界。室内空间,利用层高优势进行搭建,将配套空间置于二楼,完整地释放一层空间给到咖啡和普拉提区域,最大程度让客户可达可观经营区域,潜移默化地提高消费欲望。咖啡区和运动区通过书架移门弹性串联,满足多场景的使用需求。
Responding to the existing architecture, the designer inserted three rhythmic roof canopies to form a sculptural entrance; an outdoor terrace blurs the boundary between interior and exterior, framing natural window views and lending the façade a romantic, wild-luxury edge.Inside, the generous ceiling height was leveraged to insert a mezzanine—support functions are tucked above, freeing the entire ground floor for coffee and Pilates zones. This maximizes visibility and spontaneous engagement, subtly stimulating consumption. A sliding bookshelf door flexibly links the coffee and movement areas, enabling multiple scenarios.
▼前台与咖啡吧,Reception and cafe bar© ACT Studio建筑空间摄影
▼前台休息座椅,Relax seats© ACT Studio建筑空间摄影
▼书架移门,Thesliding bookshelf door© ACT Studio建筑空间摄影
入口区域左手边的展示柜陈列着店主在不同地方旅行中发现并精心挑选的物品。把店主的旅行记忆外化为可触摸的故事,学员在挑选或询问的瞬间完成情感交换。我们还为“星星”们专属定制了桌椅,让空间的运营具备更多的形式和可能性。
On the left-hand side of the entrance area, a display cabinet showcases items discovered and carefully chosen by the owner during her travels in different places. These externalize the owner’s travel memories into tangible stories, where emotional exchange happens in the moments when students select or inquire about items. We also custom-made tables and chairs exclusively for the “Stars,” giving the operation of the space more formats and possibilities.
▼主要普拉提区域,Main piltes area© ACT Studio建筑空间摄影
空间随着杂志移门的关闭逐渐转向私人化。声音、光线、视线被层层过滤,城市噪声逐渐淡出,柔和的灯光如同星空,亮度随着呼吸节奏明暗,时间被折叠,空间被软化,只剩下身体与重力的对话。
As the sliding magazine door closes, the space gradually turns more private. Sound, light, and sightlines are filtered layer by layer; city noise fades away; soft lighting resembles a starry sky, with brightness flowing with the rhythm of breathing. Time folds, space softens, leaving only a dialogue between body and gravity.
▼器械近景,Close-up of pilates equipment© ACT Studio建筑空间摄影
▼俯瞰镜子座椅区,Overlooking the mirror seating area© ACT Studio建筑空间摄影
场地本身就是最大的材料来源,经过人工处理之后,清水混凝土与温润的海洋板建筑形成对话,创造了一个能够赤脚行走的自然环境,承载着这片空间的动人故事,构建出一个空性疏朗,能够在沉浸其中,发现自然、平和状态的空间。
The site itself serves as the greatest source of materials. After human processing, fair-faced concrete and warm marine boards form a dialogue, creating a natural environment where one can walk barefoot. It carries the touching story of the space, constructing an open and airy realm where one can immerse themselves and discover nature and a peaceful state.
▼普拉提区看向二层,Looking at second floor© ACT Studio建筑空间摄影
▼窗帘遮挡二层,Curtains cover the second floor© ACT Studio建筑空间摄影
想象下肢,如同交缠有力的根系,从足底开始向下生长。当这些根系穿透地面、混凝土,便化作与自然联结的微型桥梁,而非障碍。在均匀而沉稳的呼吸中,深入大地。感受砂石与土壤的温度、质地和生命力量。
Imagine your lower limbs as strong, intertwined roots growing downward from the soles of your feet. When these roots penetrate the ground and concrete, they become micro-bridges connecting to nature rather than barriers. With steady, even breathing, sink deeply into the earth, sensing the temperature, texture, and life force of sand, gravel, and soil.
▼二层浴室与更衣间,Second floor bathroom and dressing room© ACT Studio建筑空间摄影
▼浴室与更衣间近景,Second floor bathroom and dressing room close view© ACT Studio建筑空间摄影
上到会员们专属的二楼,更衣动线被设计成“拾阶而上”的微型仪式:身体在空间中被看见,也被他人温和地接纳,同时也极限去利用空间,楼梯下方容纳了客人的物品收纳功能和Minibar功能以柜体为载体。沐浴更衣,精心挑选的每一样洗护用品,带着芬芳,冲洗着所有的疲惫,让锻炼形成一种享受。
▼桌子分析图,furniture analysis© 园舍空间设计
Ascending to the members-only second floor, the changing route is designed as a miniature ritual of “stepping upward”: the body is seen in the space and gently accepted by others. Space is maximized—the area under the stairs houses lockers for guests’ belongings and a minibar, all built into cabinetry. After showering and changing, every carefully chosen bath and body product carries a fragrance that washes away all fatigue, turning exercise into a form of enjoyment.
▼灯具与镜子,Lights and mirror© ACT Studio建筑空间摄影
夜色渐深,当“星星”推门离去,带着被改写过的“身体星图”——更低的肩线、更缓的呼吸、更轻的脚步,一次疗愈就此完成。
As night deepens, when the “Stars” push the door to leave, they carry a rewritten “Body Star Map”—lower shoulder lines, slower breathing, lighter steps—a round of healing thus comes to completion.
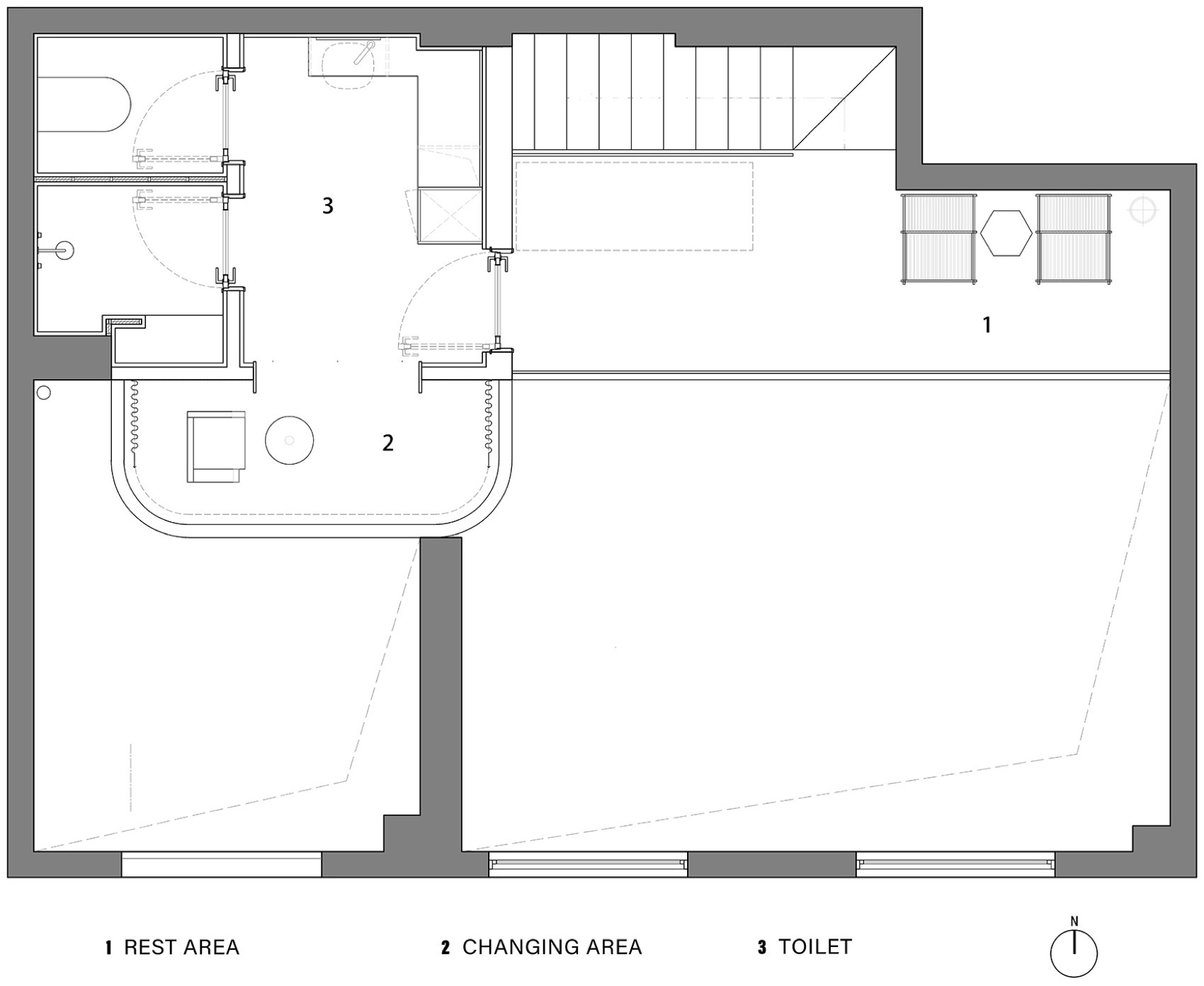
▼1F平面图,1F plan© 园舍空间设计
▼2F平面图,2F plan© 园舍空间设计
项目名称:Star Pliates Hub
项目城市:中国·无锡
项目面积:83㎡
设计团队:园舍空间设计
设计师: 黄艺星、李春艳
完成时间:2025
项目摄影:ACT Studio建筑空间摄影
Project Name: Star Pliates Hub
Area: WuXi,China
Design Team: YuanShe Design
Design in Charge: Yixing Huang 、Chunyan Li
Project Area: 83m²
Completion Year: 2025
Photographer: ACT Studio
客服
消息
收藏
下载
最近







































