查看完整案例

收藏

下载
风雨操场是塔里木大学新校区的重点建筑,西接图信中心(图信链接),东临运动场。场馆集网球、羽毛球、篮球、乒乓球及综合训练等功能于一体,设有活动教室和更衣淋浴房,可满足多样化校园活动需求。设计秉持开放共享理念,既服务师生日常教学运动,又通过灵活空间促进人际交流,打造了功能性与共享性兼具的公共空间。
The Indoor Sports Playground is a key building in the new campus of Tarim University, situated between the Information and Technology Building to the west and the sports field to the east. This versatile facility houses courts and spaces for tennis, badminton, basketball, table tennis, and comprehensive fitness training. It also includes multi-purpose activity rooms and locker rooms with showers, designed to meet the needs of a wide range of campus activities. Guided by a philosophy of openness and shared use, the design not only supports daily physical education and sports for students and staff but also encourages social interaction through its adaptable spaces. The result is a functional and inclusive public area that successfully merges utility with a communal spirit.
▼鸟瞰,Aerial View © 张锦影像工作室
▼主立面,Main Facade © 张锦影像工作室
▼主入口,Main Entrance © 张锦影像工作室
01.回应校园秩序
Responding to Campus Order
风雨操场的设计充分尊重校园规划,呼应校园秩序。空间布局上,建筑体量通过错动协调与两侧建筑的关系:东侧抬升运动区与看台对位,并以连廊衔接;西侧以体量错动衔接图信中心,融入校园肌理。
The design of the Indoor Sports Playground respectfully responds to the overall campus planning and reinforces its spatial order. In terms of massing, the building volume is strategically articulated through subtle offsets to mediate its relationship with adjacent structures: to the east, the elevated sports area aligns with the grandstand and is connected via a link bridge; to the west, the composition engages with the Information and Technology Building through volumetric shifts, integrating seamlessly into the campus fabric.
▼主入口,Main Entrance © 张锦影像工作室
建筑形态延续校区水平延伸的特征,运用流畅开阔的水平线条与沙漠黄主色调,既与南疆大地景观相融合,又强化了校园整体性,营造出具有地域认同感的活力空间。
Architecturally, the form continues the horizontal extension characteristic of the campus context. The use of fluid, expansive horizontal lines, combined with a dominant desert-yellow color palette, allows the building to blend harmoniously with the regional landscape of southern Xinjiang. This approach not only strengthens the visual coherence of the campus but also creates a vibrant spatial identity that fosters a sense of regional belonging.
▼西入口,Main Entrance © 张锦影像工作室
02.激发公共活力
Stimulating Public Vitality
风雨操场采用双入口广场实现人群分流,通过两套错位轴网体系形成控制斜线,由此设计出喇叭口梯形入口台阶,将人流立体引导至二层运动区,实现流线的高效组织。同时,设计团队反复推敲建筑入口形式,通过优化结构形态,使其兼顾遮阳避雨功能与造型美感,为建筑增添视觉张力。
▼模型推敲,Architectural Model Studies © 建筑计划工作室
The Indoor Sports Playground employs a dual-entry plaza strategy to facilitate crowd circulation. Two sets of staggered grid systems establish a controlling diagonal axis, which informs the design of a flared trapezoidal entrance staircase. This three-dimensional guiding element directs pedestrian flow efficiently upward to the second-floor sports area, achieving highly organized movement patterns. Meanwhile, the design team meticulously refined the form of the building entrance. Through structural optimization, the entrance not only provides shelter from sun and rain but also enhances aesthetic appeal, adding visual dynamism to the architecture.
▼主入口,Main Entrance © 张锦影像工作室
建筑通过体量错动形成开放式庭院,结合绿植与休闲座椅布置,不仅改善了两侧建筑的通风采光条件,还创造出一个开放、互动的公共空间。
By shifting and offsetting building volumes, the design creates an open courtyard. Integrated with greenery and leisure seating, this space not only improves ventilation and natural lighting conditions for the adjacent buildings but also fosters an open and interactive public environment.
▼主入口近景,Main Entrance © 张锦影像工作室
03.适应地域气候
Adapting to Regional Climate
建筑设计汲取新疆传统建筑的气候适应性智慧,顶部设置天窗,利用自然风力与热压实现自然通风,改善室内空气质量;同时引入自然光,减少对人工照明的需求。
The architectural design draws on the climate-adaptive wisdom of traditional Xinjiang architecture. Skylights are incorporated at the top, harnessing natural wind and thermal pressure to facilitate natural ventilation and improve indoor air quality. Simultaneously, the introduction of natural daylight reduces reliance on artificial lighting.
▼洞口细部,Opening Detail © 张锦影像工作室
▼室外庭院,Outdoor Courtyard © 张锦影像工作室
建筑立面延承大地景观的水平向特征,在传统民居透空墙的基础上融入现代设计手法,改变传统点状分布的特征,形成水平延伸的视觉效果;轴网控制斜线形成三角形洞口,凸显入口独特性,并在两侧嵌入蓝、绿、橙三色点缀,呼应校园的青春气息。
The building facade continues the horizontal extension characteristic of the surrounding landscape. Drawing inspiration from the perforated walls of traditional vernacular architecture yet reinterpreted through a contemporary lens, the design transforms the conventional punctured pattern into a continuous horizontal expression. Controlled by a diagonal grid system, triangular openings are created to emphasize the uniqueness of the entrance. Flanked by accents in blue, green, and orange, the composition echoes the vibrant energy of the campus.
▼立面侧窗,Peripheral Windows © 张锦影像工作室
▼洞口细部,Opening Detail © 张锦影像工作室
▼室内篮球场,Indoor Basketball Court © 张锦影像工作室
04.展现结构之美
Expressing Structural Integrity
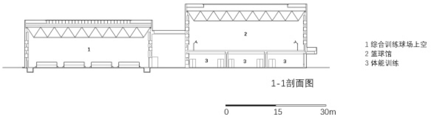
为实现风雨操场的大型无柱空间,同时兼顾低造价、低技术要求,建筑采用螺栓球网架结构作为屋顶形式,该结构具有施工便捷、造价经济、自重轻等优势。室内空间真实呈现网架结构特征,灯具布置于网架下方,通过局部特定几何形态的钢板拉伸网吊顶划分运动区域,既丰富了空间层次,又与立面色彩形成呼应。结构设计采用层间梁体系,通过结构一体化设计与施工,实现了建筑通长窗的透光效果,随着光线的变化,室内呈现出不同的空间氛围。风雨操场的设计,在经济条件、地方技术与建筑艺术之间寻求最佳平衡点,从而达到低成本建造的诗意。
To achieve a large-span column-free space in the Indoor Sports Playground while maintaining low construction costs and technical complexity, a bolted spherical space frame structure was adopted for the roof. This system offers advantages such as ease of construction, economic efficiency, and light self-weight. The interior space honestly expresses the structural logic of the space frame. Lighting fixtures are mounted below the grid, and stretched metal mesh ceilings with locally specific geometric configurations are used to demarcate different sports zones. This approach not only enriches the spatial hierarchy but also echoes the color accents on the façade. A layered beam system was integrated into the structural design, allowing for full-length windows that maximize natural lighting. The changing daylight throughout the day creates dynamic spatial atmospheres within. The design of the Indoor Sports Playground seeks an optimal balance among economic constraints, local technical capacity, and architectural artistry, achieving a form of poetic expression through low-cost construction.
▼总平面图,General plan © 中国建筑设计研究院有限公司
▼首层平面图,Ground floor plan © 中国建筑设计研究院有限公司
▼二层平面图,Second floor plan © 中国建筑设计研究院有限公司
▼剖面图,Section© 中国建筑设计研究院有限公司
项目名称:塔里木大学新校区风雨操场
设计团队:中国建筑设计研究院有限公司 建筑计划工作室 国际业务事业部
项目地点:新疆阿拉尔市
设计时间:2022年
竣工时间:2024年
建筑面积:12131㎡
设计主持:宋源 徐翔天 任中
项目经理:魏篙川
建筑专业:陈冠锦 韩翘楚 马荣森 胡铭 薛腾飞 陈雅青 张洁 金苑
结构专业:尹胜兰 刘文阳 陈文渊
给排水专业:郭壮 宗诚 斛信良 张晓霞 崔伟莎 祁薇
暖通专业:戴旭 葛家美 程亚美 刘畅 祝秀娟
电气专业:蒋佃刚 任重 高学文 孙铭伟 王笑笑
绿建咨询专业:王陈栋 林波
建筑摄影:张锦影像工作室
客服
消息
收藏
下载
最近
























