查看完整案例


收藏

下载

翻译
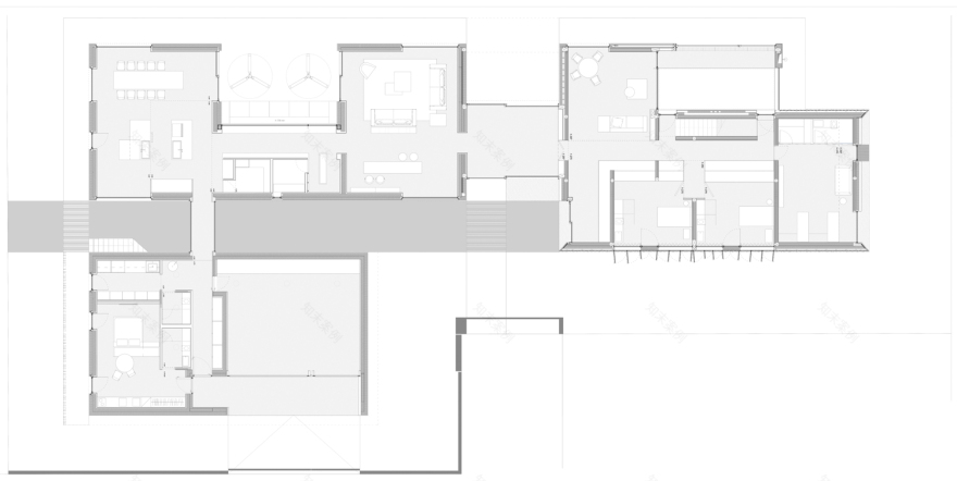
Dall'opera 'Il sogno dell'architetto' di Mats Bergquist nasce il concept del progetto, un 'archetipo di casa, su due piani, costruita in legno e di un'estrema pulizia formale. Ad accompagnarla due padiglioni in calcestruzzo, divisi da una lama d'acqua, il primo che ospita l'abitazione di rappresentanza, il secondo dedicato ad autorimessa e dependance.
Il contesto è pregevole, un'area collinare ai piedi delle prealpi Venete, lambito da un piccolo torrente, in cui il piano di lotizzazione consente la realizzazione di edifici prestigiosi, che esprimono i contemporanei valori di ecocompatibilità ed efficienza energetica.
Su un'area di 2.300 mq la superficie costruita ne occupa circa un terzo.
L'abitazione è stata concepita interamente con materiali eco-compatibili, dallea carpenterie in acciaio austenitico agli isolamenti in lana naturale e vetro cellulare, dai pannelli in legno degli arredi privi di formaldeide alle vernici prive di solventi.
La tecnologia costruttiva segue due strade distinte, ed esalta le peculiarità di due materiali da costruzione: il legno ed il calcestruzzo.
Il volume a due piani è costruito con pannelli in xlam a strati incrociati e assemblati con chiodi. La pelle in listelli di Accoya, un legno ad elevatissima durabilità e certificato FSC/PEFC, avvolge l'edificio e nasconde dei brise soleis che si aprono come branchie. I due lati corti sono vetrati, e le ampie aperture sono rivolte a nord verso i colli, a sud verso l'ampio terrazzo giardino.
I padiglioni ad un piano sono costruiti con setti e solette in calcestruzzo armato. Lo specchio d'acqua che li divide funge da accumulo termico. La copertura piana da una parte nasconde l'impianto fotovoltaico, dall'altra un grande orto giardino con ampio terrazzo coperto da una vela.
I serramenti sono in legno, con rivestimento in alluminio anodizzato sul lato esterno e doppia vetrocamera.
L'impianto meccanico con pompe di calore acqua-acqua sfrutta la geotermia, ed un impianto di ventilazione meccanica con recupero di calore garantisce un importante risparmio energetico. I pannelli radianti a soffitto sono dedicati sia a riscaldamento che al raffrescamento e assicurano grandi superfici di scambio termico.
L'impianto domotico KNX gestisce in maniera intergrata ogni singolo sistema della casa, dal controllo accessi all'impianto, dalla videosorveglianza all'illuminazione.
客服
消息
收藏
下载
最近




































