查看完整案例

收藏

下载
在福州凯宾斯基酒店23层的露台之上,一间独特的茶室悄然落成。它仿佛城市之巅的一枚黑珍珠,沉稳地镶嵌在开阔的天际线中。
推门而入,半是清波荡漾的水庭,半是氤氲茶香的雅室,水面时而薄雾轻笼,如梦似幻。
这“一半水色,一半茶香”的格局,成就了榕城上空独一无二的品茗之境。
构想生于初见
格局顺应天成
设计师初踏露台,灵感便如清风拂面。露台呈舒展的长向,三面风光旖旎,南望西眺是葱茏的湖光山色与低矮的城市界面,一派开阔;北面则是鳞次栉比的高楼。综合考量了视野层次,茶室选择坐北朝南的姿态,将最动人的城景揽入怀中。
设计并非凭空造物,而是与场地对话。原有的玻璃幕墙与格栅,本是遮风挡阳的实用骨架,设计师匠心独运,在其间悄然融入传统屋檐的意象、垂下雨链的韵律,于摩天楼顶勾勒出一幅“空中屋舍”的写意篇章,让现代建筑的筋骨之上,生长出东方的气韵。
巧思藏于细微
空间别有洞天
如何在有限的高空之地,营造丰富的层次与流动的视线?
地面的适度抬高,是妙笔之一。它既巧妙地消隐了原有建筑圈梁的痕迹,又如同一位无形的向导,自然而然地引导着视线的高度——或坐观水影,或立眺城廓,景随人移,步移景异。
抬高的地梁之上,层板架顺势延展。它既是雅致茶器的展台,更是设计的巧思所在,其形态流畅地包裹、隐匿了原建筑的安全护栏。
同时,层板向外轻盈地探出,“借”用幕墙与结构之间的缝隙空间,在视觉上将空间温柔地向外推送,顿觉开阔通透。辅以高低错落的柜体、视线可穿透的隔断,小小的茶室便拥有了丰富的节奏与纵深感,丝毫不显逼仄。
四时茶叙皆宜
心境随景流转
这方茶室最动人的匠心,在于为不同的心境与时光,精心描绘了四幅饮茶图景。
主茶室是茶事的核心,承载着商务会晤或静心品茗的庄重。紫檀茶桌背后,悬起一面半透的屏风,如同轻纱般柔和地滤过北向楼群的景象。屏风之外,开阔的南向城市风光成为绝对的主角,框出一幅流动的都市画卷,确保每一次饮茶,都伴随着最佳的视野。
沙发区日间可细品香茗,入夜可小酌怡情,这里是松弛的港湾。一抹跳跃的橙色皮革沙发,如同投入静水中的暖阳,搭配沉稳的黑色单人躺椅,让空间更加包容,也更具当代性。一旁定制的大漆茶几,朴拙而随性,共同织就一片静谧而放松的氛围。
悬挂的野口勇圆形纸灯,宛如悬浮的月亮,当高空的风穿过幕墙,纸灯随之轻轻摇曳,光影婆娑,整个空间仿佛也失去了重量,变得轻盈而灵动。
一张温润的金丝楠木小圆桌,悄然圈起一方私密天地。这里是闺蜜私语、共享精致下午茶的温馨角落,弥漫着安静宁和的气息,时间在此也仿佛放慢了脚步。
出茶室,踏入的是另一重诗意天地。设计师以丛丛青竹与疏朗的篱笆,温柔地柔化了建筑侧边高耸石墙的冷峻线条,围合出一处尺度宜人的空中小院。
下沉式的沙发区,结合连廊般的造型,环绕着一方澄澈的水景。水面时而升腾起袅袅雾气,如丝如缕,仙气弥漫,刹那间将人带入古典园林移步换景的意境之中。水光潋滟,映照着流云舒卷,也倒映着四季流转。
斜倚在屋檐下那张舒适的躺椅上,眼前是意境悠远的庭院。雨天尤佳,听雨滴敲打水面,品一杯暖茶,或捧书静读,或只是望着水雾出神,那份“偷得浮生半日闲”的悠然惬意,便成了最珍贵的馈赠。
这间悬浮于二十三层的茶室,远非仅仅一处饮茶之地。它以深邃的黑色为幕,托举起水光与茶烟交织的空间诗篇。设计师的智慧,在于尊重场地的基因,将现代的结构与传统的神韵巧妙相融,更在于用心雕琢了四时皆宜、心境各异的品茗场景。
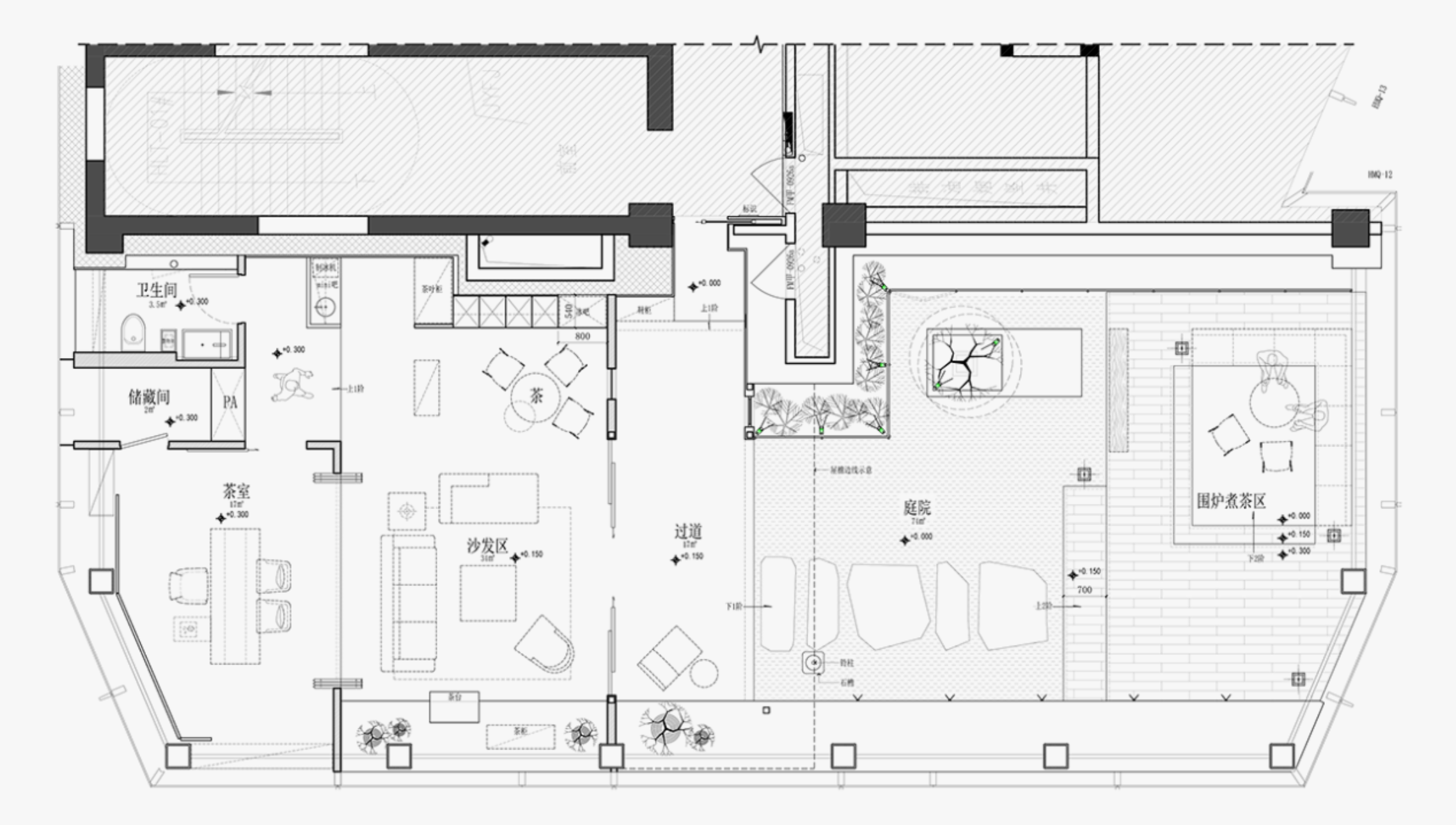
图纸呈现
项目信息
项⽬名称|凯宾斯基-天驿古茗茶室
项⽬地点|福建·福州
项⽬⾯积|150㎡
设计时间|2024年11月
完⼯时间|2025年03月
主案设计|朱寿耀、陈丽媛
参与团队|苏添财
主要材料|黑色木饰面、冰泊板、艺术漆、黑色艺术瓷砖、花岗岩、竹篱笆
家居软装|居合陈设
灯光设计|迈光照明
施工单位|城宇筑造
项目摄影|李迪
客服
消息
收藏
下载
最近






































