查看完整案例

收藏

下载
▼入口
空间生长:顺着生活需求“野蛮生长”
Space Growth: Growing Freely with Life’s Needs
电梯出口玄关的墙面,木纹凹凸肌理里挂着带回的画作,电梯门打开时,故事已在光影里流淌;往里走,室内花园用玻璃墙框住绿意,商务会谈时,绿植是沉默的调和剂,把紧绷的空气泡软;办公室的利落、吧台的烟火气,像白天与黄昏的自然衔接,没有刻意分界,需求到哪,空间就长到哪。▼木纹凹凸肌理里挂着带回的画作
▼室内花园用玻璃墙框住绿意
黑盒枢纽:空间的隐形引力场
Black Box Hub: The Space’s Invisible Gravitational Field
旋转门是整个场域的“隐形引力场”。从电梯踏入玄关,这扇藏在中心的黑门,像商务与私域的 “结界开关”—— 推开门,会所的全貌才真正展开。它是空间的交通枢纽,连接玄关、吧台、休闲区,却以 “黑色盒子” 的形态隐形:和玄关通道的深色调呼应,与吧台的砖石冷感同频,不抢镜却默默锚定秩序。▼旋转门连接玄关、吧台、休闲区
材质与光影:给空间“注入呼吸”
Material & Light: Breathing Life into the Space
吧台的手工砖石立面,被光影切出明暗,和木质地板的温暖碰撞,像商务洽谈里,理性与柔软的共生。▼吧台的手工砖石立面
拾级而上,台阶连接的卫生间,户外花园的绿意、天光毫无保留涌入。天花与立面三角区域衔接处,以镜子收尾,镜面顺延而下。
▼卫生间空间
墙面选用同属质朴肌理的微水泥,触感细腻如晨雾,与户外花园石材遥相呼应。沙发面料的绒感、地毯棉麻的温度,又把私宅的松弛拽了进来。
屋顶斜顶,光线顺着斜面游走,白色窗帘半遮半掩,滤过强光,留下柔和漫射,既维护商务洽谈的静谧专注,又为聚会营造松弛氛围。大地色系沙发、温润木色家具,与黑白灰基底交织,商业与住宅的边界悄然消融。保留原始屋顶结构,利用不同的高和低创造不同的功能空间。斜顶顺着原始结构天花生长,像为客厅搭起 “呼吸的穹顶”。▼屋顶斜顶
▼家具酒柜嵌在墙面里
什作原创家具酒柜嵌在墙面里,金属与木质碰撞,里面藏着业主从澳洲淘回的酒与故事。
将用餐区和休闲区分开的是空间的「软性边界」,用材质的呼应,把两个场域轻轻系在一起。底部用黑色手工砖打底,延续吧台的质朴肌理,向上过渡为同墙面和天花的乳胶漆,色调柔和得像把阳光揉进墙里。
▼空间的「软性边界」
餐厅一角——圆形餐桌以黑色沉稳打底,金属转盘暗含精致秩序,桌上花艺挣脱规整,用自然野趣调和商务宴请的严肃。
▼圆形餐桌以黑色沉稳打底
▼餐厅一角
茶室旁的门,连着室外花园,把澳洲带回的自然基因拽进室内。这里也是躺平观景台,让商的严谨与居的松弛,借一扇门、一处结构,完成跨界对话。▼茶室旁的门
茶室地面和室外花园石材肌理一致,让“室内外融合”从脚下开始。温润木质长桌,搭配米色编织壁纸墙面,像把澳洲带回的松弛感和东方茶室的禅意缝在一起。桌上器物是很好的空间注脚,模糊着功能边界——商洽时,是语境里的 “文化佐料”,独处时,是私享松弛的“生活配角”。▼让“室内外融合”从脚下开始
▼东方茶室的禅意
在“无界”里,装下所有生活切片
Within “Boundary-Less”: Holding All Snippets of Life
此项目不同于传统会所,也不属于常规私宅,是运用“无界”新的理念,在酒店顶层搭建的生活剧场——商业与住宅的边界无需刻意打破,因为空间本就该服务真实的人,这是设计最朴素的答案。
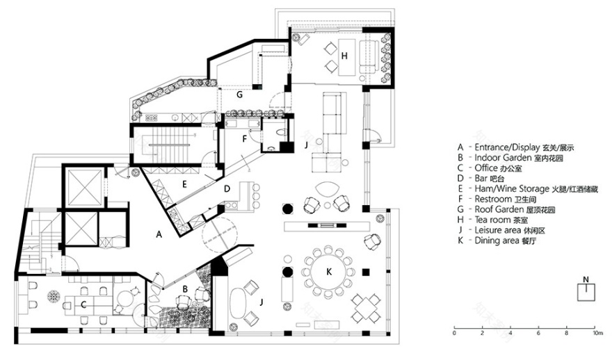
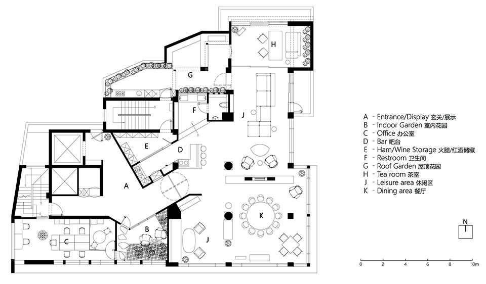
▼平面图
项目名称:会所空间 | 无界
项目类型:商业&住宅空间
设计方:什作设计 TEN DESIGN
公司网站:
项目设计:2023
完成年份:2025
设计团队:什作设计 TEN DESIGN
项目地址:江苏
建筑面积:285㎡
摄影版权:方立明
材料:亚麻、胡桃木、皮革、金属、微水泥、手工砖、大理石
售价: 1 金钱
[]
客服
消息
收藏
下载
最近










































