查看完整案例

收藏

下载
这是我们为屋主做的第二套房子,这次是精装修改造,不拆除原本的灰色亮面瓷砖,利用大量黑色、蓝色染色天然木皮的鲜明存在感,强势地覆盖掉原本的氛围,增添储物空间的同时,注入简洁、精致的现代感。
项目地址 | 芜湖北京路1号
设计团队 | 研己设计
设计主创 | 卜林
合作模式 | 设计+半包施工
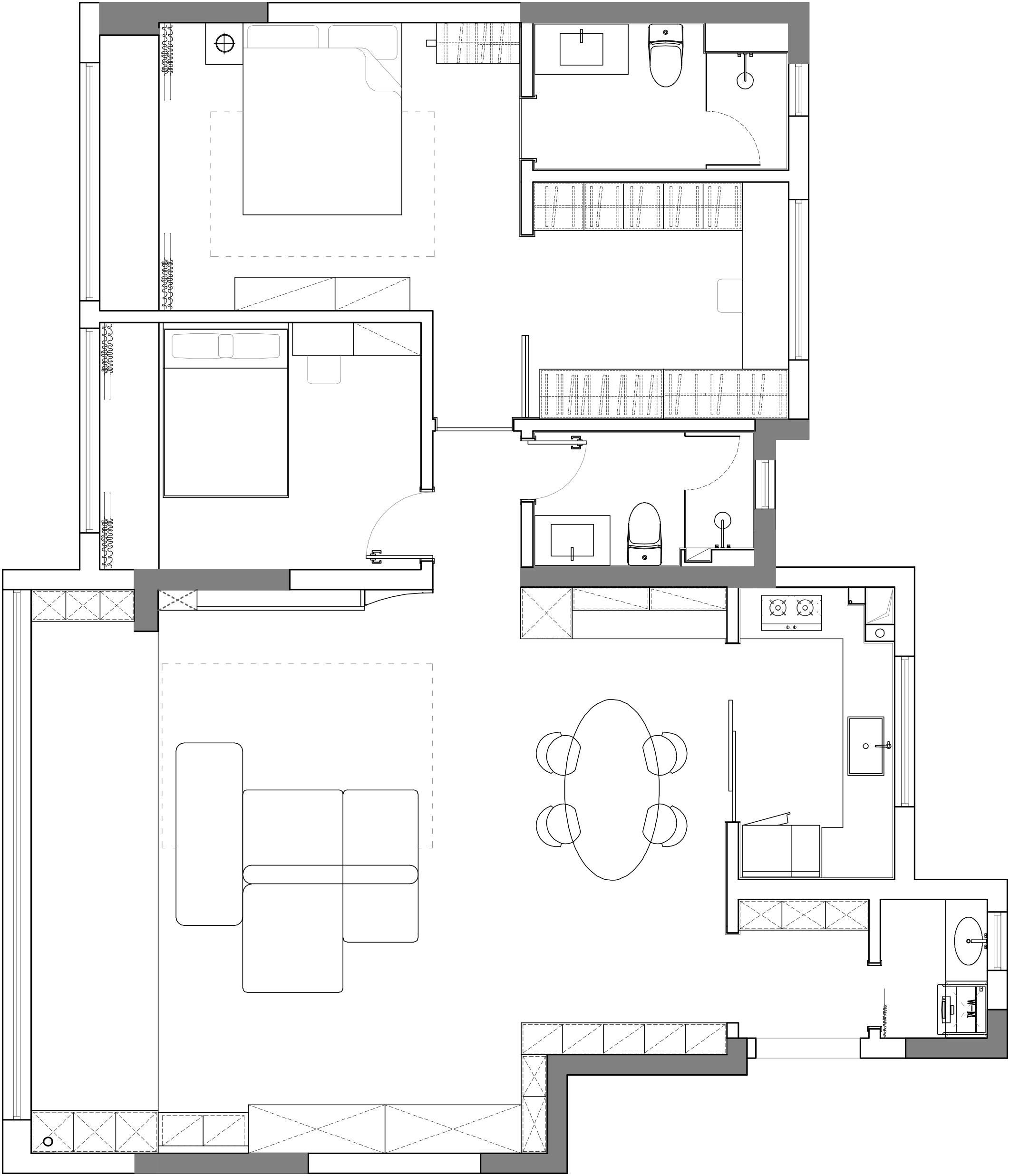
建筑面积 | 142㎡ 3室2厅
项目类型 | 平层
文案策划 | 刘璐璐
项目摄影 | 汤民逸
01.餐厅 黑木头与蓝水晶
黑色的天然木纹拥有极强的装饰感,从玄关的鞋柜到餐厅的储物柜、墙体饰面,连贯的黑色为家增添质感。在餐厅,为了避免过多柜体带来的呆板感,我们特意定制了曲面柜门,弯曲面上细微的光影深浅,带来家的灵动变化。
这一户厨房没有改动,为了与原始的灰色风格更和谐,我们选用椭圆形蓝水晶餐桌搭配不锈钢桌腿,一片从自然中裁来的清透蓝色足以抚平所有浮躁。
餐厅顶部有一根梁体,我们顺势在餐厅做了弧形造型,为方方正正的空间增添灵活感。餐边柜同样采用没有把手的柜门,水吧区用黄洞石包裹,旁边的高柜内嵌进了蒸烤箱。
02.客厅 反复晕染的蓝
阳台内包,囿于地面不做改动,阳台没有铺设地暖,考虑到脚感,我们铺设了黑色木地板,也与玄关、餐厅的材质呼应。
从餐厅到阳台均为柜体,用不同的形式去增添层次感。客厅这边首先是一组巴士门柜,宽为1.5米,然后是一组开放柜,连接到阳台的家政柜,内设插座,可以为洗地机等电器收纳。
电视背景墙与阳台利用染色木皮统一高度,立面上更为干净利落。木皮由设计师多次到工厂调色得来,形成与这个家最为适配的蓝调。
03.主卧 套房式卧室
将一间次卧改为衣帽间,合并进主卧,玻璃移门做隔断,让卧室有套房的开阔舒适感。吊顶部分的高差用户型造型消解,让卧室更整体、和谐。
衣帽间分区收纳,一面使用镜柜,增强空间通透感,一面用黑色木纹加强质感,设置挂衣区,可作为净衣区实用。
公区储物柜上方的红色洞石在这里再次出现,与深色染色木皮形成鲜明的对比。主卫不做改动,入口改为隐形门,床头设置挂衣区。
床尾的悬浮柜,浅色的纯净空间中,一副精心选择的装饰画带来灵动的轻盈感。
客服
消息
收藏
下载
最近
























