查看完整案例

收藏

下载

翻译
Architects:IGArchitects
Area:144m²
Year:2025
Photographs:Ooki Jingu
Lead Architects:Lead Architects
Category:Houses
Design Team:IGArchitects
Engineering:Structure: Yousuke Misaki EQSD
Construction:Kentaro Okata GALAS Inc.
City:Saitama
Country:Japan
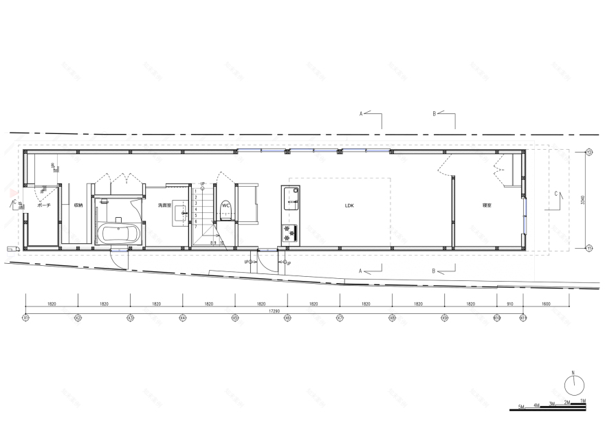
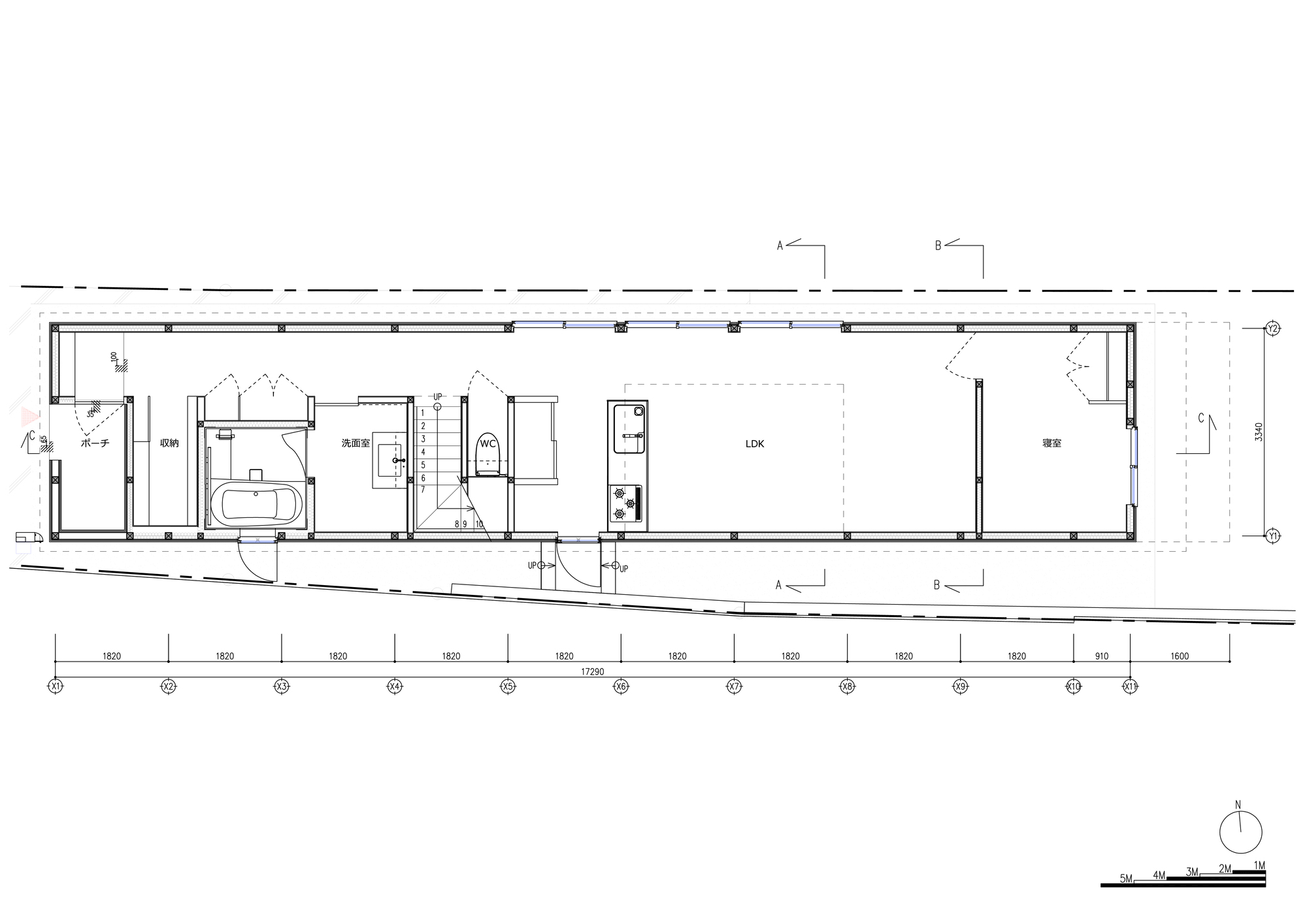
Text description provided by the architects. The client decided to build a new home for their family on a corner of the property where their parents' house stands. The site is a former private road, measuring 4 meters wide and 35 meters deep. To the north of the site is the client's parents' house, to the south lies a large vacant lot owned by the government, and to the east is a cliff with a 4-meter elevation difference.
The plan was to build the new house in close proximity to the parents' house. Observing the frequent interactions between the client and their grandmother and mother, we thought that a spatial relationship resembling a "hanare"—a traditional detached dwelling—would be suitable, offering a close but independent arrangement.
Strict zoning regulations and fixed requirements for room sizes and layout made it necessary to keep the building volume and plan as simple as possible. Therefore, we arranged the rooms and openings to respond to the surrounding environment. Specifically, we placed the circulation space along the north side adjacent to the parents' house and grouped the private rooms on the south side. A sliding glass door facing the parents' house creates a veranda-like space, while a terrace and balcony on the eastern side offer panoramic views of the town from atop the cliff. Since the southern environment is unlikely to change, we maximized the number of openings on that side.
At the center of the house, we created a large open space that connects the private rooms, the hanare, the main house, and the government-owned land beyond. This void runs vertically and longitudinally through the structure, serving as both a physical and symbolic connector. This house functions not only as a residence for the growing family but also as a hub connecting three generations. Its design is shaped by the intergenerational relationships and its dialogue with the surrounding environment.
The constraints imposed on this project became the clues that allowed the architecture to open itself to its surroundings. Rather than being overly ornate, this building aspires to be a modest, familiar presence—just slightly new—harmonizing with its environment while serving as a hanare to the main house.
Project gallery
客服
消息
收藏
下载
最近
































