查看完整案例

收藏

下载
深圳市相比很多城市而言是一座新城,但经过40余年的发展,市民的真实的需求,丰富着城市多样性与魅力。项目位于梅林,梅林最早因为漫山遍野的杨梅林而得名,位置在光鲜繁华深圳中轴线北侧,它是城市的“B”面,是中心区的“里子”——充满生活烟火气息与社区感,虽然建设密度很高,但仍身具深圳难得的悠然自在与松弛感。在这里“新”与“旧”并非对立,而是两种不同城市DNA的碰撞——老社区的“小尺度”(街巷、骑楼、街铺)与新深圳的“大尺度”(摩天楼、快速路、科技园区)之间,是否存在一种“新尺度”,能让两者共生?
©东西影工作室
Shenzhen is a relatively new city compared to many others, but after more than 40 years of development, the real needs of its residents have enriched the city’s diversity and charm. The project is located in Meilin, which was originally named after its mountains covered with red bayberry trees. Situated on the north side of Shenzhen’s glamorous central axis, it represents the city’s “B” side. Despite its high construction density, Meilin still maintains a rare sense of ease and relaxation in Shenzhen. Here, “new” and “old” are not opposites but rather the collision of two different urban DNAs – is there a “new scale” between the “small scale” (streets, arcades, shops) of old communities and the “large scale” (skyscrapers, expressways, tech parks) of new Shenzhen that can allow them to coexist?
▼项目外观,exterior of the project©方芳
▼项目外观,exterior of the project©张之杨
这座智能创科大厦的尝试,正是要创造一种“新尺度”的缝合体系——既不大到割裂社区,也不小到无法承载未来的使用。“深圳性”的实验在这里继续:它不是小,也不是大,而是“刚好能链接两者”的尺度;它不是怀旧,也不是未来,而是“让时间分层可见”的建造;最终,这座大厦或许会成为一种“深圳特有物种”:根扎在梅林的泥土里,但枝叶在云端更新。
The Intelligent Science and Technology Building attempts to create a stitching system of “new scale” – neither too large to fragment the community, nor too small to support future use. The “Shenzhenese” experiment continues here: it is neither small nor large, but a scale that “just connects the two”; it is neither nostalgic nor futuristic, but a construction that “makes time visible in layers”; it is neither technology nor everyday life, but an ecology where “algorithms and human feelings learn from each other.” Ultimately, this building may become a “Shenzhen-specific species”: rooted in Meilin’s soil, but with branches updated in the clouds.
▼智能创科大厦外观,exterior of the Intelligent Science and Technology Building©樊钊明
项目背景
Project Background
本项目位于深圳市梅林-彩田片区,凯丰路与梅华路交叉口西北侧,北接城市主干道梅林路,东接城市次干道凯丰路,南侧临近城市快速路北环大道。场地方正,东侧与社区公园及相邻,南侧远眺莲花山公园。但地铁的斜穿给建筑布局带来的很大的困难,若沿斜切线控制轮廓,将产生不好用的斜向建筑平面,而且地面以上的建筑布局并不因地铁的斜穿带来更好的机会,我们希望通过设计解决这个不必要的缺陷。
▼形体生成,massing generation©悉地国际东西影工作室
The project is situated in the Meilin-Caitian area of Shenzhen, on the northwest side of the intersection of Kaifeng Road and Meihua Road. It is connected to Meilin Road, a major urban arterial road, to the north, and to Kaifeng Road, a secondary urban arterial road, to the east. To the south, it is adjacent to the North Ring Expressway, a city expressway. The site is regular in shape, bordered by a community park to the east and offering a distant view of Lianhua Mountain Park to the south. However, the diagonal passage of the subway poses significant challenges for the architectural layout. If the contour is controlled along the diagonal tangent, it would result in impractical oblique building planes. Moreover, the above-ground architectural layout does not benefit from the subway’s diagonal passage in terms of creating better opportunities. We aim to address this unnecessary drawback through design.
▼深挑檐下的公共空间,the public space under deep eaves©樊钊明
一个多零层控制和容差共存的高密度动态系统
A high-density dynamic system with multi-zero-layer control and tolerance coexistence
定义一个建筑生成的模数,清晰界定服务空间与被服务,作为灵活使用的大平面适应办公生活的多样需求,控制服务空间的边界,并为其生长界定边界。垂直方向定义四个“零层”为高密度社区提供空间补偿。在这个基础之下,工作与生活将继续塑造建筑,与其说我们是在设计一座建筑,我们更愿意称之为在建造一个中性框架系统:水平南方的檐下空间正在参与与融入随机又秩序井然的梅林的社区环境,它忠于个体欲望,产生丰富的多样性,展现旺盛的生命力。
▼分析图,analysis diagram©悉地国际东西影工作室
Define a module for architectural generation that clearly delineates service spaces from served spaces, creating a flexible, open floor plan to accommodate the diverse needs of office and living environments. By controlling the boundaries of service spaces and defining their growth limits, the design establishes a structured yet adaptable framework. Vertically, four “zero levels” are defined to provide spatial compensation for high - density communities. Within this foundation, work and life continue to shape the architecture. Rather than designing a mere building, it can be described as constructing a neutral framework system: the eaves space on the southern side engages and integrates with the random yet orderly community environment of Meilin. It remains faithful to individual desires, fostering rich diversity and exhibiting vibrant vitality.
▼建造一个中性框架系统,constructing a neutral framework system©樊钊明
▼建造一个中性框架系统,constructing a neutral framework system©袁小宜
同一屋檐下的社群共同体
Community under the same roof
这是一栋由层板和挑台交错穿插,垂直分组而成的办公社区。建筑从外观上摒弃了传统高层办公封闭固定的轮廓,将自然和日常生活带回到每一个楼层,随时可达的檐下空间将引发人的情感,创造空间与时间的对话。工作之余,我们鼓励每一个人走出办公室,来到“社区阳台”,与人,与自然充分交流:当办公楼里的精英与老街坊共享一个垂直村落,这种生活不是精心设计的主题公园,不是乌托邦式的强制融合,而是一种有社群认同的共同体。
▼模型,model©悉地国际东西影工作室
This is an office community formed by the interweaving of floor slabs and cantilevered platforms, grouped vertically. The building breaks away from the enclosed, rigid silhouette of traditional high-rise offices, bringing nature and daily life back to every floor. The easily accessible eaves spaces evoke emotional responses, creating a dialogue between space and time. Beyond work, we encourage everyone to step out of their offices and onto the “community balconies” to fully engage with others and with nature. When professionals in the office building share a vertical village with longtime residents, this lifestyle is not a meticulously designed theme park nor a utopian forced integration—it is a community with a shared sense of identity.
▼“社区阳台”,the “community balconies”©樊钊明
▼“社区阳台”,the “community balconies”©张之杨
▼公共空间,the public space©袁小宜
▼深挑檐下的公共空间,the public space under deep eaves ©左:袁小宜;右:方芳
开放、轻盈、绿色,有阴影的南方性
Open, Lightweight, Green: The Shaded Southern Identity
低区,我们强调建筑的复合功能与开放性,并将绿化与深挑檐下的公共空间结合,平坦的檐口给人轻盈的视觉感受,南方的阴影是街头的微型气候站,是亚热带的社交催化剂,是市民的免费客厅。
▼生态图示,ecology diagram©悉地国际东西影工作室
In the lower section, we accentuate the building’s multifunctionality and openness by integrating greenery with public spaces beneath deep overhanging eaves. The flat eaves lend a sense of visual lightness, while the southern shadows serve as microclimate stations along the streets, subtropical social catalysts, and free communal living rooms for citizens.
▼绿化与深挑檐下的公共空间结合,integrating greenery with public spaces beneath deep overhanging eaves©方芳
▼夜景,night view©樊钊明
▼场地平面,site plan©悉地国际东西影工作室
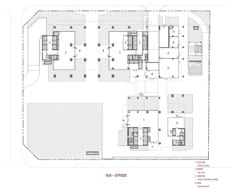
▼组合一层平面,ground floor plan©悉地国际东西影工作室
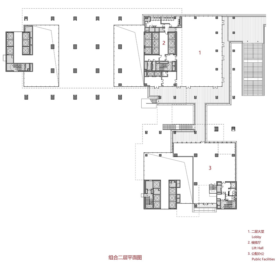
▼组合二层平面,first floor plan©悉地国际东西影工作室
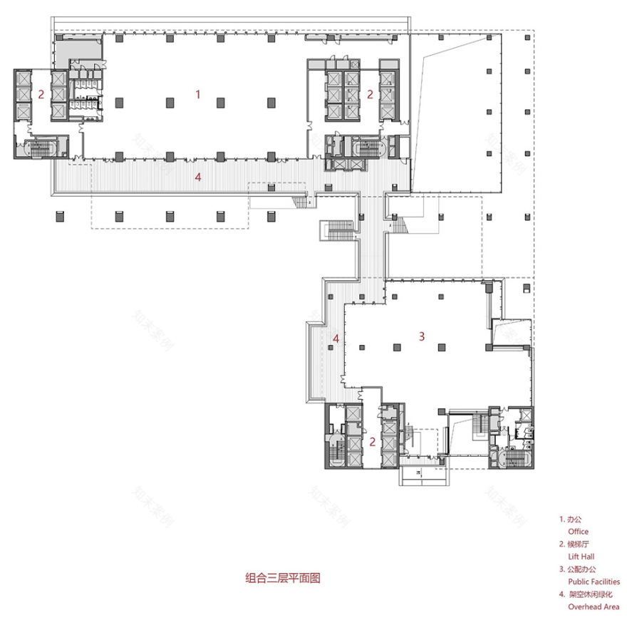
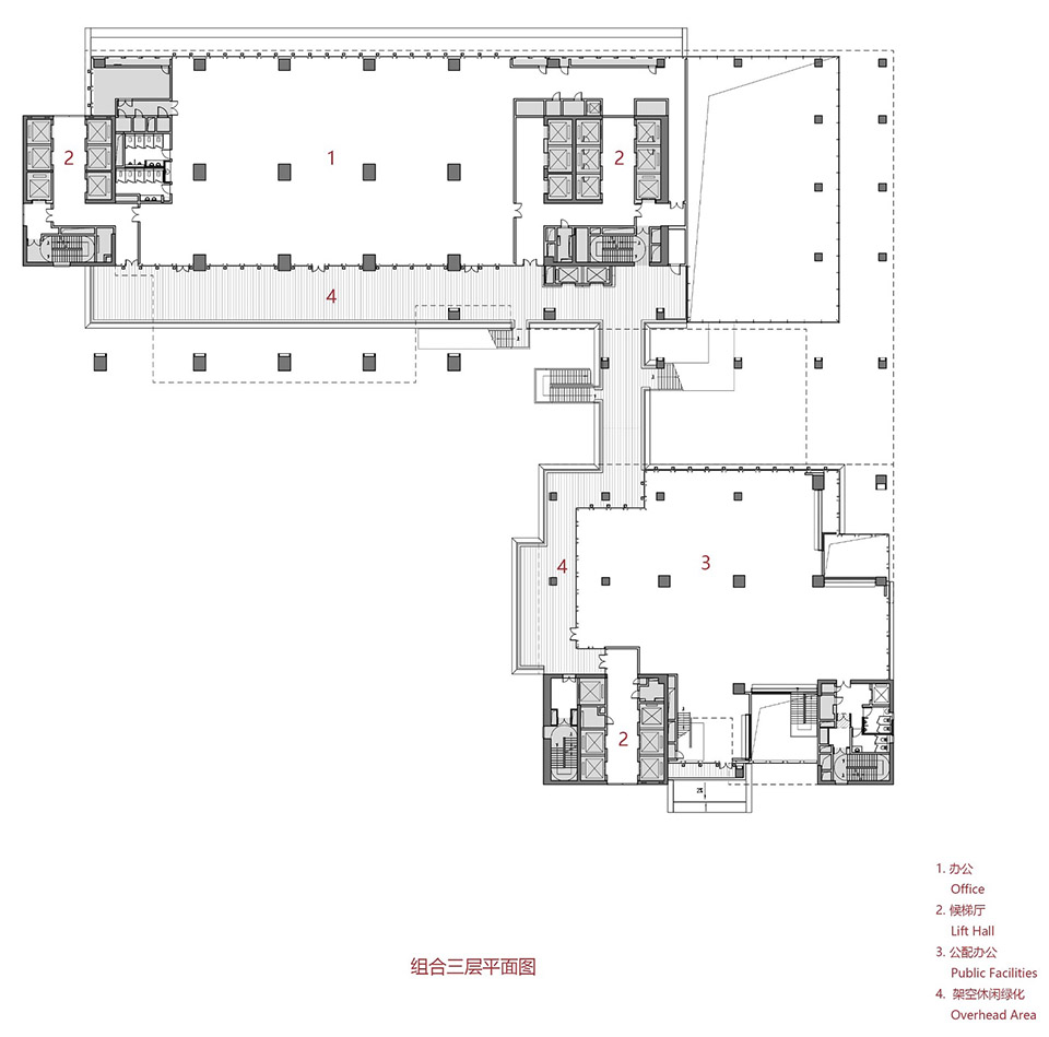
▼组合三层平面,third floor plan©悉地国际东西影工作室
▼组合四层平面,fourth floor plan©悉地国际东西影工作室
▼组合五层平面,fifth floor plan©悉地国际东西影工作室
▼组合二十一层平面,21th floor plan©悉地国际东西影工作室
▼A座十六层平面及B座标准层平面,Building A 16th floor plan and Building B typical floor plan©悉地国际东西影工作室
▼剖面,section©悉地国际东西影工作室
项目名称:智能创科大厦
项目类型:办公建筑
设计方:悉地国际东西影工作室
项目设计:2020年
完成年份:2023年
主创建筑师:朱雄毅,王照明
设计团队:杨益,邹力,朱俐茜,廖辅鸿,康祖贤,刘洋,叶毅喆,王亚斌,周密,卢青松
项目地址:深圳市福田区梅林凯丰路与梅华路交汇处西北侧
建筑面积:111710.58㎡
摄影版权:樊钊明、方芳、袁小宜、张之杨、朱雄毅
合作方:施工图设计:深圳市华阳国际工程设计股份有限公司
机电顾问:广州澳希机电工程设计顾问有限公司
幕墙顾问:深圳市朋格幕墙设计咨询有限公司
室内设计:上海慕雅建设工程有限公司
景观设计:BOX 盒子实践
泛光顾问:深圳大观联合照明设计有限公司
绿建、海绵顾问:深圳绿合环境科技有限公司
标识顾问:本质设计
客户:深圳市福科产业运营管理有限公司、深圳天源迪科信息技术股份有限公司、诺德投资股份有限公司、深圳市禾望电气股份有限公司、深圳市万禾天诺产业运营管理有限公司
Project name: Intelligent Innovation Technology Building
Project type: Offices
Design: CCDI DongXiYing Studio
Design year: 2020
Completion Year: 2023
Leader designer & Team: Leader Designer: Zhu Xiongyi, Wang Zhaoming Team: Yang Yi, Zou Li, Zhu Lixi, Liao Fuhong, Kang Zuxian, Liu Yang, Ye Yizhe, Wang Yabin, Zhou Mi, Lu Qingsong
Project location: Northwest Intersection of Kaifeng Road and Meihua Road, Meilin, Futian District, Shenzhen, China
Gross built area: 111710.58㎡
Photo credit: Fan Zhaoming, Fang Fang, Yuan Xiaoyi, Zhang Zhiyang, Zhu Xiongy
Partner: Construction Documents Design: Shenzhen CAPOL International & Associates Group Co., Ltd. M&E Consultant: Guangzhou Aoxi M&E Engineering Design & Consulting Co., Ltd. Façade Consultant: Shenzhen Pengge Façade Design & Consulting Co., Ltd. Interior Design: Shanghai Muya Construction Engineering Co., Ltd. Landscape Design: BOX STUDIO Lighting Consultant: Shenzhen Daguang United Lighting Design Co., Ltd. Green Building & Sponge City Consultant: Shenzhen Lühe Environmental Technology Co., Ltd Signage & Wayfinding Consultant: Benzhi Design
Clients: Shenzhen Fuke Industrial Operation Management Co., Ltd., Shenzhen Tianyuan Dic Information Technology Co., Ltd., Nord Investment Co., Ltd., Shenzhen Hope We Electrical Co., Ltd., Shenzhen Wanhe Tiannuo Industrial Operation Management Co., Ltd.
客服
消息
收藏
下载
最近




































