查看完整案例

收藏

下载
我们希望这里不是一个封闭的孤岛,而是一个积极介入城市网络,融入城市生活的有机体。
We hope this is not a closed-off island, but an organism that proactively engages with the urban network and integrates into the life of the city.
▼整体鸟瞰,Overall bird’s-eye view©UDG有关工作室
▼中央轴线,Central axis©刘国威
在数字经济浪潮席卷而来的时代,产业园区不再是传统意义上孤立的生产办公集群,而是演进为与城市深度交融、赋能创新活力的有机生命体。在杭州拱墅区北部的新兴发展区域,一座总建筑面积近22万㎡的数字经济新高地——国贸智慧网谷创新园,试图通过积极的空间策略,重新定义高密度环境下产业社区的形态与体验。项目以“AI智能+跨境电商”为产业双核,不仅致力于打造企业聚集的物理空间,更意在构筑一个功能多元、开放共享、生态互联的24小时活力创新社区。
In the era of the sweeping wave of the digital economy, industrial parks are no longer isolated production and office clusters in the traditional sense but have evolved into organic living entities that are deeply integrated with the city and empower innovation and vitality. In the emerging development area of northern Gongshu District, Hangzhou, a new digital economic hub—ZIB Wisdom Valley Innovation Park, with a total construction area of nearly 220,000㎡—seeks to redefine the form and experience of industrial communities in high-density environments through proactive spatial strategies. With “AI Intelligence + Cross-Border E-Commerce” as its dual industrial cores, the project is not only committed to creating a physical space for enterprise aggregation, but also aims to build a functionally diverse, open, shared, and ecologically interconnected 24-hour vibrant innovation community.
▼杭州日出,Sunrise in Hangzhou©UDG有关工作室
▼多层群落,The group of architectures©UDG有关工作室
1.高容积率下的复合社区
High-density mixed-use community
面对3.5的高容积率与多元功能需求的挑战,核心设计思考始于一个根本性问题:在现代产业环境中,工作与生活应如何被重新定义?▼肌理和路径,Texture and path©UDG联创设计
▼投标阶段模型,Model©UDG联创设计
Facing the challenge of a high floor area ratio of 3.5 and diverse functional requirements, the core design thinking begins with a fundamental question: In a modern industrial environment, how should work and life be redefined?
▼整体鸟瞰,Overall bird’s-eye view©刘国威
▼整体鸟瞰,Overall bird’s-eye view©UDG有关工作室
设计尝试的策略是构建一个多维混合的微型城市系统。五栋84m高层与四栋24m多层建筑通过规划层面的精准布局,将产业功能与服务配套多维叠加,融合了办公、研发、实验、展示、商业服务、人才公寓等多种功能,在有限用地内实现了空间效益与体验深度的最大化。更重要的是,这种混合业态催生了不少共享交流空间,甚至一个不经意的街角皆可成为思想碰撞的场所,从而在未来实现“8小时办公区”向“24小时活力社区”转变的设计初衷。我们希望随着功能边界的拓展,能够提高多种活动与事件在此发生的概率,使园区成为一个持续迸发创新力的核心场域。
▼总平面图,Masterplan©UDG联创设计
▼项目分析图,Analysis diagram©UDG联创设计
The designed strategy involves creating a micro-city system. Five 84m high-rise buildings and four 24m multi-story buildings are meticulously arranged, integrating industrial functions with service facilities. This blend combines offices, R&D, laboratories, exhibitions, commercial spaces, and apartments, maximizing space and experience within a limited area. More importantly, this mixed-use approach has given rise to numerous shared and interactive spaces, where even street corners can become venues for intellectual exchange. This will ultimately transform the area from an “8-hour office zone” into a “24-hour vibrant community” in the future. We hope that, with the expansion of functions, the probability of activities occurring here will increase, making the park a place of sustained innovation.
▼总平面鸟瞰,Overall bird’s-eye view©DONG建筑影像
▼整体鸟瞰,Overall bird’s-eye view©UDG有关工作室
▼整体鸟瞰,Overall bird’s-eye view©DONG建筑影像
▼园区和远山,Park and distant mountains©DONG建筑影像
2.街区式布局与城市网络
Block-style layout and urban network
产业社区的生命力根植于其与城市的互动关系。设计以标准网格系统为基本规划骨架,采用开放式街区布局,高低组合的建筑群体融入城市肌理,并通过多层次的公共空间衔接周边街道、广场、绿地与交通站点。高层建筑沿用地周边布置,用高大体量形成城市形象的崭新界面,提示人们区域环境的更新变化;多层建筑以标准单元之间的交错嵌合凸显聚落感,形成丰富连续的人性尺度街巷空间,二者在视觉上互为背景、互相渗透,为高密度场地提供高效、舒适、层次丰富的空间体验。
The vitality of an industrial community is rooted in its interactive relationship with the city. The design adopts a standardized grid system as the planning framework, utilizing a block layout where high- and low-rise building combinations integrate into the urban fabric. Public spaces connect streets, squares, green areas, and transportation hubs. High-rise buildings are arranged along the periphery of the site, forming an urban image interface that signals regional transitions. Multi-story buildings are composed of standardized units, highlighting a sense of settlement and creating human-scale streets and alleys. The two interpenetrate, providing an efficient, comfortable, and richly layered spatial experience for high-density sites.
▼建筑群落,The group of architecture©DONG建筑影像
▼光线透入,Light passes through the gap©DONG建筑影像
▼街景,The image on the street©DONG建筑影像
▼街道形象,The image on the street©DONG建筑影像
一条贯穿南北的中轴线使园区空间架构变得清晰有力,它也如同一条生态脉络,自然的串联起各个建筑群落和不同尺度氛围的院落,并通过次级街巷向四周不断发散延展。景观空间也以此展开——从地下层的下沉广场与叠水瀑布,到地面层的镜面水池与绿化庭院,再到屋顶花园与空中云廊,绿色以不同形态渗透至每一个标高。入口广场可供集会与展览,静谧庭院适合小憩与交谈,屋顶平台则成为远眺城市与内部交流的场所。这种“小中见大”的空间手法,既缓解了高密度带来的压迫感,也为使用者提供了漫游式的探索体验,呼应了“网谷”这一名称所蕴含的流动、互联之意。
A central axis clarifies the spatial structure of the campus, functioning like an ecological artery that naturally connects various building clusters and courtyards, while extending outward through secondary alleys. From the sunken plaza and waterfall at the underground level to the pools and courtyards on the ground level, and further up to the rooftop gardens and elevated cloud corridors, greenery permeates every elevation in diverse forms. The entrance plaza serves as a space for gatherings and exhibitions, the tranquil courtyards are ideal for short breaks and conversations, and the rooftop terraces become venues for overlooking views and social interactions. This approach not only alleviates the sense of oppression brought by high density but also offers a meandering exploration experience, echoing the notions of fluidity and interconnectedness implied in its name.
▼中央轴线,Central axis©DONG建筑影像
▼中央轴线,Central axis©刘国威
▼空间序列,Sequence©DONG建筑影像
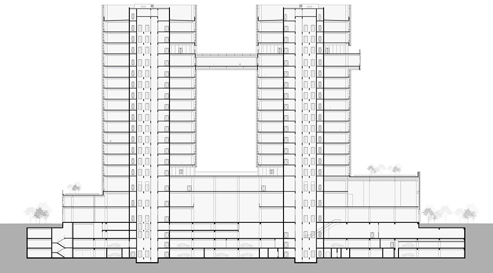
轴线尽端的总部双子塔,其主入口的共享通高大堂,横向展开达92米,以开阔恢弘的姿态欢迎来访者;天空中以跨度23米的空中云廊形成视觉焦点,成为区域的标志性记忆点。这座长达80米的空中连廊不仅是功能连接,更是一种空间宣言——象征着互联、开放与创新的园区精神。
At the terminus of the axis, the headquarters twin towers feature a shared, full-height main entrance lobby that spans 92 meters horizontally, welcoming visitors with an open and grand gesture. In the sky, a 23-meter-span aerial cloud corridor forms a visual focal point, becoming a landmark memory of the area. This 80-meter-long aerial bridge is not only a functional connection but also a spatial statement—symbolizing the interconnected, open, and innovative spirit of the campus.
▼中央双塔,Central twin towers ©刘国威
▼中央双塔,Central twin towers ©DONG建筑影像
▼仰望高层,Looking up©UDG有关工作室
3.模块化与数字编码
Modularity and Digital Encoding
面对快速发展的科技产业与多变的企业需求,园区以“动态可生长”为理念,采用了模块化设计体系。标准化的结构模块与空间单元为未来调整预留了充分灵活性,企业可根据自身规模与发展阶段选择或组合空间,真正实现了“空间适应企业而非企业适应空间”。
Facing the rapidly developing technology industry and ever-changing corporate demands, the park adopts a “dynamically growable” philosophy with a modular design. Standardized units预留 flexibility for future adjustments, allowing companies to choose or combine spaces based on their scale and development stage, truly achieving “spaces adapting to companies rather than companies adapting to spaces.”
▼内部街道,Internal street©DONG建筑影像
▼内部街道,Internal street©DONG建筑影像
▼内部街道,Internal street©DONG建筑影像
立面语言同样采用模块化单元,概念构思巧妙呼应“数字编码”的产业特征。虚实相间的格网矩阵与干净利落的几何线条,呈现出严谨而轻盈的立面风格。高低建筑群采用差异化的肌理组合,既协调统一又富有变化,展现出丰富的视觉层次与整体性,也呼应了入驻企业简洁高效的科技属性。
The facade design employs modular units, ingeniously conceived to echo the characteristics of “digital coding.” The interplay of solid and void within the grid matrix, combined with clean-cut geometric lines, presents a rigorous yet lightweight facade style. The varying heights of the building clusters are arranged through differentiated compositions, showcasing a rich visual hierarchy and overall coherence, while also reflecting the concise and efficient technological attributes of the enterprises housed within.
▼立面语言同样采用模块化单元,The facade design employs modular units©DONG建筑影像
设计注重在细节处理上的打磨——采用辊涂工艺的大块面蜂窝铝板最大限度减少拼缝,最大单块尺寸达5.5m*1.1m;铝板色彩经过多次现场比对,最终选用的青白色能在不同天光下呈现柔和反射质感;将泛光灯具隐藏于造型竖梃之内,并将其尺寸优化至65mm,在减小视野遮挡的同时,确保了立面在夜间获得均匀一致的照明效果。▼模块细部,Details©UDG联创设计
The design emphasizes attention to detail and refinement—large-panel aluminum sheets minimize joints to the greatest extent, with the maximum single panel size reaching 5.5m * 1.1m; the color of the aluminum sheets, a carefully selected bluish-white, undergoes multiple comparisons to present a soft texture under varying daylight conditions; concealed floodlights, optimized in size within the design, ensure uniform and consistent lighting effects during the night.
▼高层细部,Details ©DONG建筑影像
国贸智慧网谷创新园的实践,重新诠释了产业空间的存在形式:白天是充满活力的创新工场,夜晚则是灯火温馨的城市角落;在未来既是数字经济企业聚集的高地,也是市民可进入、可体验的城市公共空间。这种打破边界的空间生产模式,正是这个时代城市创新空间发展的重要方向所在。
The practice of ZIB Wisdom Valley Innovation Park, has redefined the existence form of industrial space: by day, it is a vibrant innovative workshop, while at night, it becomes a warmly lit urban corner; in the future, it will be both a hub for digital economy enterprises and an accessible, experiential public urban space for citizens. This boundary-blurring mode of space production represents a crucial direction for the development of urban innovative spaces in this era.
▼街区夜景,Night view©DONG建筑影像
▼夜景,The night view©刘国威
▼建筑与铁路,Architecture and railway©刘国威
▼整体鸟瞰,Overall bird’s-eye view©DONG建筑影像
▼总平面图,Masterplan©UDG联创设计
▼一层平面图,First floor plan©UDG联创设计
▼二层平面图,Second floor plan©UDG联创设计
▼高层平面图,High-rise floor plan©UDG联创设计
▼整体剖面图,Overall section©UDG联创设计
▼高层立面图,High-rise elevation©UDG联创设计
▼组合平面图,Combination plan©UDG联创设计
▼模块特色空间,Characteristic space©UDG联创设计
项目名称:国贸智慧网谷创新园
项目业主:浙江省国贸集团
项目地点:杭州市拱墅区储鑫路、长浜廊路
设计时间:2020-2022
建设时间:2022-2025
用地面积:37750 ㎡
建筑面积:216700 ㎡
全过程设计:UDG上海联创设计集团股份有限公司
方案团队:UDG有关工作室 + UDG大家建筑工作室
主创建筑师:钱强、王谦、陈伟鹏
方案团队:张倩、陆逸、司马志彦、朱厉、张文娜、吴岑、刘怡宁、李思言、林磊、孙佳格格、杨昊宇
施工图团队:张博杰、贾锡锋、熊小颖 、刘国山、肖丹、刘超、周瀚阳、王庆、王甦、尤菊萍、王宙平
幕墙、景观深化:浙江大学建筑设计研究院有限公司
照明设计:SLD胜乐照明、浙江工业大学设计集团
施工总包:浙江省三建建设集团有限公司
摄影师:刘国威、DONG建筑影像、UDG有关工作室
Project Information
Project name: ZIB Wisdom Valley Innovation Park,
Clients:Zhejiang International Business Group Ltd.
Project location:Chuxin Road, Changbanglang Road, Gongshu District, Hangzhou
Design year:2020-2022
Construction year:2022-2025
Land area:37750 ㎡
Gross built area: 216700㎡
Whole process design:Shanghai United Design Group Co.,Ltd.
Scheme design:UDG About Studio、UDG Master Architecture Studio
Website:
Principal architect:Qiang Qian、Qian Wang、Weipeng Chen
Scheme design team:Qian Zhang、Yi Lu、Zhiyan Sima、Li Zhu、Wenna Zhang、Cen Wu、Yining Liu、Siyan Li、Lei Lin、Jiagege Sun、Haoyu Yang
Detailed design team:Bojie Zhang、Xifeng Jia、Xiaoying Xiong、Guoshan Liu、Dan Xiao、Chao Liu、Hanyang Zhou、Qing Wang、Su Wang、Juping You、Zhouping Wang
Curtain wall & landscape design:The Architectural Design & Research Institute of Zhejiang University Co., Ltd.
Lighting design:SLD、Zhejiang University of Technology Engineering Design Group Co., Ltd.
General Contracting for Construction:Zhejiang Third Construction Group Co., Ltd.
Photo credit:Guowei Liu、DONG Image、UDG About Studio
客服
消息
收藏
下载
最近













































































