查看完整案例

收藏

下载
01VESTIBLUE
城市因光
迎宾序章
城市接待前厅,是空间序曲,亦启承城市印记,以儿何元素塑造空间,于西方艺术与东方都市间建立一种联系。现代与历史交织,以传承开启新的当代传承,开启精神共鸣,艺术共振的空间之旅。
P. 01
P. 02
P. 03 02
LEISURELY TIME
悠闲时光
雅致畅饮
水吧空间的设计,以自由、交互开放的设计理念,中央岛台式的方式,营造多元化的社交服务场景。悠闲的时光,与好友一起雅致畅饮,在味觉与视觉间得以休闲放松。
P. 04
P. 05
P. 06
P. 07
酒店式花艺导台,是空间美学与服务理念的精妙融合,承载着多维度的重要意义与实用功能,它巧妙填补空间的视觉空白,柔化建筑结构的硬朗线条,赋予空间柔和、优雅的气质。
P. 08 03
ART MELODY
鎏金旋律
会谈交流
洽谈室古典主义的装饰风格,注重对称与和谐,运用充满想象力的图案与精致的细节处理,传递出一种庄重与深邃的气息,使空间散发出永恒的魅力。
P. 09
P. 10
P. 11
P. 12
P. 13
P. 14
古典主义的绘画与雕塑,赋予空间细腻典雅的质感。光影变幻,明暗交织,为空间注入神秘深远的氛围。
P. 15
P. 16
P. 17
P. 18
P. 19
P. 20
P. 21
文字是传承文明,记载历史的工具。共享图书空间,打造文化策展人的会客厅。浓郁的艺术氛围和人文气息交织,记录着此间每一次的思想碰撞和灵感共鸣。
P. 22
P. 23
P. 24
P. 25
03ART CORRIDOR
人文觉醒
津渡新生
艺术是文明的交织,当天津的运河水流过佛罗伦萨的穹顶,我们终将在褶皱的阴影里触摸到人性觉醒的永恒温度。
用艺术打破边界,通过雕塑的剧场式陈列,构建一场沉浸式人文主义艺术仪式,从传统锚点到国际交融,再到自我突破,通过艺术风格的时空对话,将会所打造成天津文化自述的载体。
艺术长廊 P. 26
P. 27
P. 28 04
ENTERTAINMENT
休闲娱乐
品酒对弈
帷幕落下,空间的戏剧悄然开始从忙碌的工作中抽离,与朋友一起品鉴美酒,轻松对弈寻求生活上更多的灵感与自由。
悬挂的大漆艺术作品,宁静的伫立在那里,无息的展现张扬的生命力,彭博的《微尘220708》绘画把潮流文化带入传统艺术领域,焕发空间新光彩。
vip 洽谈室 P. 29
P. 30
P. 31
以音乐谱写空间,流动的旋律与艺术绘画相结合。打造充满艺术氛围的钢琴私教空间,跳动的音符和色彩给所有空隙填满了魅力。
钢琴私教室 P. 32
P. 33
当时空交错,一袭旗袍跨越百年芳华,以时间为尺,用文化着色,诉说绝世风雅。衣着是人的语言,设计师是空间的语言。
旗袍定制室 P. 34
P. 35
寻找心灵的静谧,探索身体,感受身心的和谐与优雅。空间以中式的设计手法,通过窗连接室内外的四季风景,模糊空间边界,虚实结合。使人在练瑜伽及运动的同时,感受四季的流动。
瑜伽健身室 P. 36
P. 37
这不是简单的自然搬运,而是生命感的艺术折射,水不再是物理介质,而是承载自然能量的艺术载体,将森林的原始生命力,解构为充满未来感的松弛意境。
游泳池 P. 38
P. 39 • 05
ANALYSIS DIAGRAM
分析图
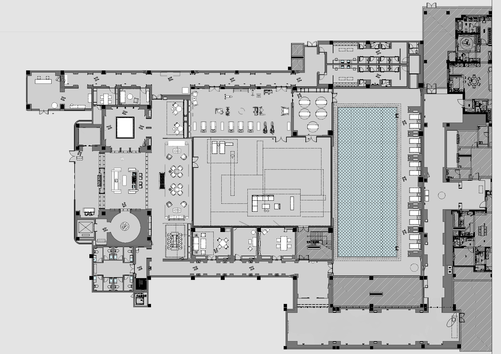
平面图 P. 40
INFO
- 项目名称 - 中海津崋玖章项目
- 业主单位 - 中海企业集团华北公司设计管理部
- 软装公司 - 北京山禾金缘艺术设计股份有限公司
- 软装团队 - 代晓晴 仲维娜 杨翠玲 黄海婷
- 硬装公司 - 水平线
- 项目地址 - 中国 天津
- 项目摄影 - 一千度
DESIGNER
仲维娜 主案设计师
北京山禾金缘艺术设计股份有限公司(SHD山禾设计) 2009年成立于北京。企业致力于追求回归生活本质的空间设计,为精英阶层定制独有的高端空间体验。SHD山禾设计集合了品牌、空间、艺术、媒体、陈设等优质资源,是一家以高质高效设计服务为核心竞争力,专注于高端设计定制服务的设计服务型企业。
SHD山禾设计为多种类型的项目提供优质的空间设计服务,包括地产项目,医疗项目,健康养老,特色小镇等。自创立至今,山禾金缘与中海地产,保利地产,绿城地产,华润地产,中国金茂,中铁建集团,中交地产,中建地产,世茂集团,龙湖地产,阳光城集团,珠江地产,华夏幸福等均建立了长期良好的合作关系,为客户创造了众多脍炙人口的经典作品。山禾设计亦是全国首家提出“返璞生活本质“设计理念的高端定制设计服务型企业。
客服
消息
收藏
下载
最近

















































