查看完整案例

收藏

下载
以博物馆般的沉静灰调为基调,悍高六角大楼艺术餐厅在功能与艺术之间寻找平衡。设计围绕螺旋主楼梯展开,通过结构、材质与光影的精密编排,打造出一个既实用又具艺术张力的场所。这里不止是就餐空间,更是一座以建筑语言叙事的“展览场”。
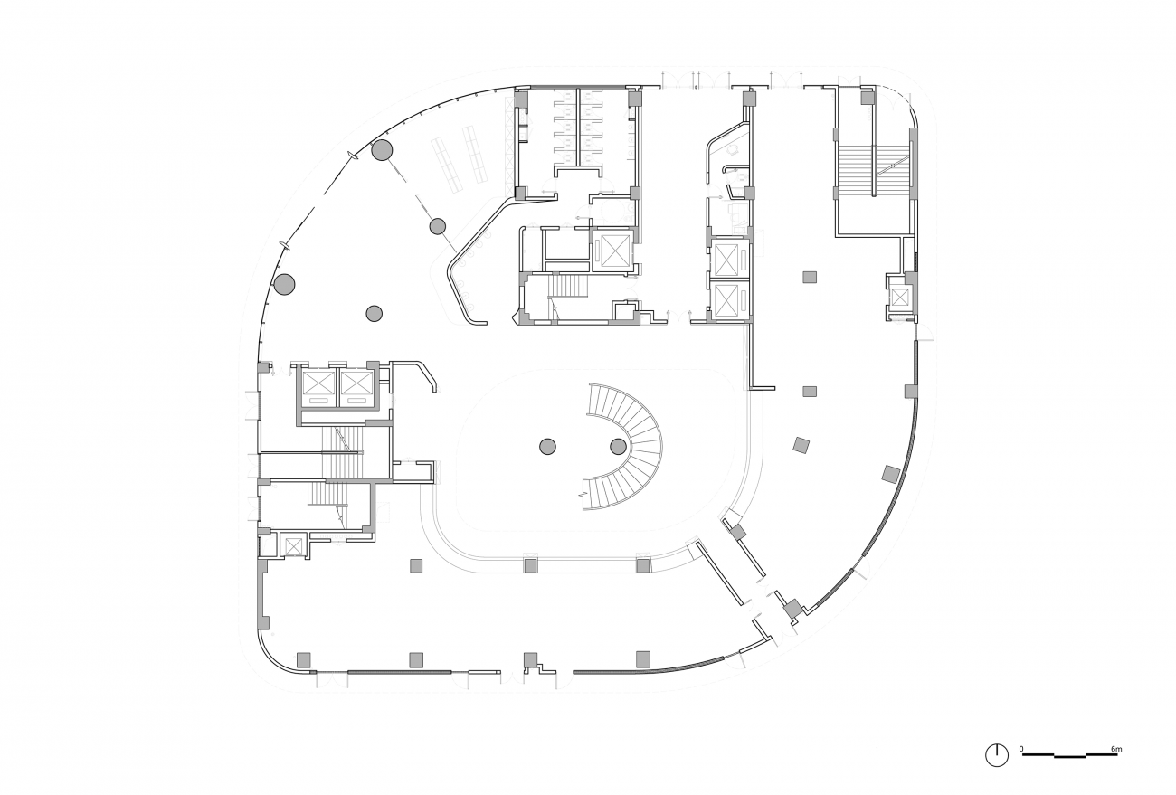
本案位于悍高六角大楼超级工厂内部,项目任务为会所、食堂区域的建筑与空间重构。设计以“灰调博物馆”作为气质参照,构建一个秩序清晰、结构开放,同时具备视觉张力与尺度平衡的多层空间。核心楼梯结构不仅解决了交通功能,更作为场域中主要视觉构成,组织并强化了整体空间体验。
空间整体延续了“灰调博物馆”的基调,大量使用混凝土柱体、抛光水泥地坪与木质天花结构。粗壮的柱子显露出建筑的结构之力,混凝土的肌理则近似石材,释放出一种克制却深刻的文化感。与之形成对比的,是楼梯曲面与木质栏杆带来的温润触感。
混凝土柱体未经额外包覆,保留原始纹理,通过局部打磨增强细节质感。其厚重体量与螺旋楼梯的流线轮廓形成视觉对比,呈现出“构造显性+形式柔性”的设计策略。
木质元素主要分布于楼梯内侧栏板、局部家具与踏步面层,采用自然色橡木,兼顾触感与声学表现。金属与混凝土提供结构强度与理性框架,木材则为空间引入局部温度与尺度感,构成一组典型的“工业—人文”材料对照体系。
顶部采用线性天窗引入自然光,增强空间中心区域的垂直通透性。光线随楼梯旋转路径向上扩散,与结构柱及栏杆构成有节奏的明暗关系。
照明系统的布置强调“结构勾勒”而非“情绪营造”,以精度控制实现空间阅读的清晰度。在不同时间与使用状态下,光影呈现出近似博物馆式的节奏性变化,回应了项目整体关于“沉静”与“理性”的空间目标。
艺术餐厅整体由三层组成,首层为集中打餐区;二层设有可灵活组合的长桌与休息区,适配团队交流与短暂休憩;三层平台则部分预留为会所包间区域和企业展示区。各层间通过楼梯环绕升降,弱化封闭分区,以开放结构维持视觉通透和空间连贯性。
设计不特别强调“社交”或“氛围营造”,而是聚焦于通过构造逻辑、通行效率与光线节奏形成一个“日常使用的建筑场所”,避免符号化的空间演绎,强调在长期使用中的舒适性、稳定性与辨识度。
悍高六角大楼艺术餐厅不是典型的工业配套空间,它更像是一座被精心策展过的“日常展馆”。灰调色系传达出一种稳定感与思考感,木材、灯光与细节打磨则赋予空间情绪与温度。在这里,就餐不仅是身体的补给,也是一种对空间美学与企业文化的静默体验。
项目名称|悍高六角大楼艺术餐厅
项目委托|HIGOLD
悍高项目地址|广东省佛山市
项目面积|5000㎡
落地时间|2025
空间设计|E Studio 壹所
主持设计师|范君健、周炫焯
设计团队|刘淑琦、刘莹、黄晨曦、房桂云、张洁莹、周婧
项目摄影|张超建筑摄影工作室、WM Studio
范君健|周炫焯E Studio壹所 联合创始人
E Studio壹所设计于2018年由范君健与周炫焯共同创立。 E Studio 致力于探索商业空间设计的多元化创意服务。团队坚持跨学科、跨文化的多元视野,具有敏锐的品牌洞察力及缜密高效的产品型思维。持续为不同行业的头部品牌提供前沿的室内、建筑、品牌的创意服务,囊括DJI、哈苏、腾讯、网易、戴可思、传音、联影、悍高、九毛九集团、KClighting等,至今E Studio作品已斩获数十项国际赛事殊荣
客服
消息
收藏
下载
最近





















































