查看完整案例

收藏

下载
和光璟樾营销中心坐落于四川绵阳,傲踞绵州大道中轴,纵横路网畅达全域。位属经开万达 CBD 生活圈,更有三江体育公园绿意环绕,出则繁华尽揽,入则静谧相拥,地段与配套优势凸出,尽显都市理想生活之姿。
伊派设计联结自然、城市、建筑与人文,构建“体验+场景”的设计主线,让城市艺术书吧对话涪城山水,时尚生活对话在地艺术。悦享书吧,徜徉书海;氛围水吧,咖享时光;沙盘区域,体块序列;深浅洽谈区,自然共生;儿童区域,真趣探游······打造出一个集日常、商务、艺术与休闲一体的多元体验空间。
01 接待前厅 Reception Front Desk
和光璟樾营销中心依流水而立,伴书香而生。“和光·阅里”门面的建筑外观设计颇具质感,顶部木质结构搭配温暖灯光,温馨雅致。以门为框,未尽其景,入口处书籍陈列,飞鸟吊灯与松树摆件如画如诗。
移步到接待前厅,金属色与静谧黑沉稳大气,满墙书架陈列着丰富的书籍。接待台如同静默不语的诗人,低调而不失品质,书法重构“和光”的立体浮雕金属字,闪烁着智慧之光与深厚的文化底蕴。
文创展示区具有观赏与售卖双重性质,木质洞洞板与桌面陈列着品类丰富的文创产品,代表现代科技的IP吉祥物涪宝与传统的拼布、羌绣挂画,更是一场跨千年时空场域的灵感对话。一枝造型别致的金色松树从高墙探出,展翅欲飞的白鸟群吊灯和立体书摆件为整个空间增添了灵动一笔。
02 水吧 Water Bar
新派茶饮,咖享时光。从接待台处继续深入,便能看到水吧区。水吧台面整洁大方,光滑的米白色台面搭配浅棕色粗粝基底,简约而不失优雅,台面上精心摆放着鲜花,增添了浪漫温馨的氛围,让每一位来访者都能够畅享静谧时光。
03 沙盘区 Sand table Area
沙盘区位于整体空间的核心区域,与周边环境自然地融为一体,为来访者打造社区市集般的沉浸式体验。
动线规划别出心裁,一侧是高耸的书架墙,营造出浓厚的文化氛围,让来访者在了解楼盘信息之余,也能沉浸于书香之中;另一侧则是舒适的洽谈休息区,宽大的落地窗让自然光充盈整个空间,通透明亮,适合稍作休憩、轻松洽谈。
04 洽谈区 Negotiation Area
洽谈区自入门处便开始沿窗蜿蜒而入,与自然艺术共生,与在地文化共鸣。
深度洽谈区米白色的弧形沙发柔软舒适,单人座椅在材质与色调上和沙发相呼应,丰富了空间层次感,圆形大理石茶几上的花艺自然灵动,为洽谈者提供惬意的坐感。
高耸的螺旋式多层书架、艺术感十足的大型金属字装置、刻字的发光墙体,造型多样的木质展示柜与落地绿植,不仅仅是装饰亮点,还保证了洽谈所需的私密与舒适,彰显出高雅的品味。
浅度洽谈区以圆桌和单椅为主,浅色系的座椅搭配柔软的抱枕,给人以温馨之感,自然与柔和的气息扑面而来 。大理石圆桌质感上乘,上面摆放苔藓花艺和精致的昆虫金属小摆件,为空间增添了生机与雅致
05 阶梯书吧 Staircase Book Bar
阶梯书吧是整个空间的灵魂,挑高的设计开阔大气,给人以通透、舒展的视觉感受。书架沿着阶梯与墙面延展,满墙陈列的书籍形成了强烈的视觉冲击,形成流畅的空间体验动线,自然地引导人们在整个营销中心穿梭、停留。
错落有致的阶梯不仅是空间的装饰元素,也可作为人们的阅读座位,充满趣味性与实用性。二层空间的懒人沙发与木系空间主打温馨舒适,独具特色的咖啡包墙面拼画艺术感十足,大型可爱科技IP摆件趣味十足,渐变蓝色的玻璃隔断让访客仿佛置身云端之上,静置时光,徜徉书海。
06 儿童区 Children's Area
儿童区色调清新明快,以云层探险屋为主题。绿色与灰色的趣味飞创造型桌椅、星球立体吊灯十分吸睛,为空间注入童真活力。阅读区设置木质书架与柔软的弧形坐垫,墙体黑板为孩子提供自由涂画空间,家具造型圆润,避免孩子磕碰,保障安全。
儿童区巧妙地将趣味性、安全性、教育性融为一体,为孩子们打造了一个可以尽情玩耍、阅读、探索的小天地。
【和光璟樾营销中心-1层平面布局图】
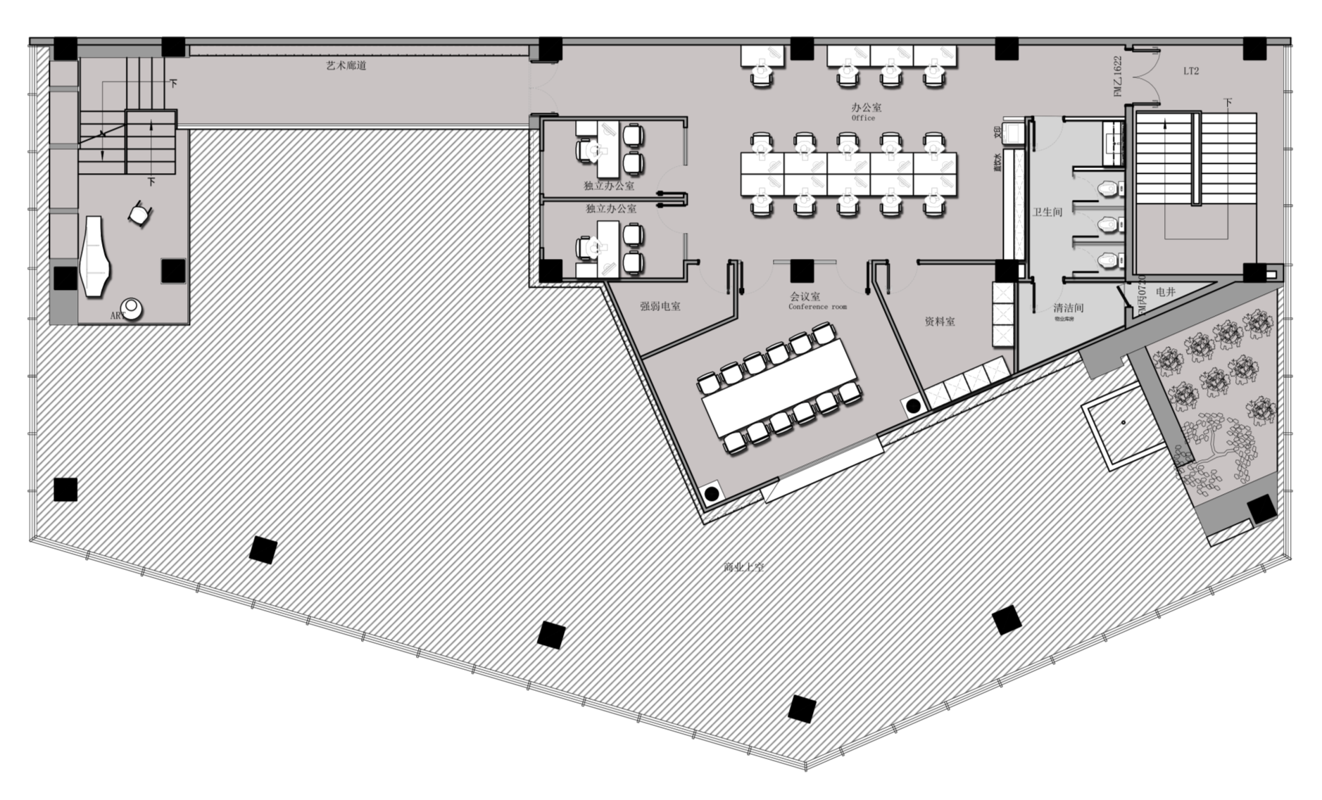
【和光璟樾营销中心-2层平面布局图】
- INFO 项目信息 -
项目名称 丨 和光璟樾营销中心设计
软装单位 丨 深圳市伊派室内设计有限公司
项目地址 丨 四川
建设单位 丨 绵投置地
客服
消息
收藏
下载
最近































