查看完整案例

收藏

下载
看惯了流行于世的优秀设计,感动于设计师在这些设计中的思考,他们或在简约、睿智中流动,充满灵性;或关注场地中对历史、文化的隐喻,厚重而谦逊;抑或用设计向生活致敬,彰显着“学习”的智慧……但这一切仍然改变不了设计师在思考空间时角度的单调与程式化。于是,我们急待一种“新设计” 的出现,它携带一种看待生活的角度去和市场博弈与共谋,去“赢得体验、赢得大众”。
用“社会学”的眼光来看,设计多元可能是一条途径。但是,如何使设计多元方法有很多,究其影响力而言,空间设计首当其冲!成都著名设计公司“润舍纳图”在“富森美家居天府”设计的自用办公空间,就是用美为话语,探求用体感与视觉使感观清澈的一次有实验意义的尝试。
石墙、深色木门、遮阳篷,三大体块构成了入口的基础。材质的粗犷与细腻、颜色的深沉与雅致,在极简的造型中碰撞融合,于立面上形成一处深邃而有力的视觉焦点。
在世界日趋多元的今天,我们看待世界的角度变得越来越“自我”,越来越呈现“叠加”的状态,越来越有“生命化”与“生物性”的特征。在“富森美家居.天府”“润舍纳图”设计工作室,设计总监李雪设计的自用办公空间的全过程中,他就用鲜明的生活特征和温婉、细腻的特质,让空间洋溢着“女性主义”光辉,在日渐生活化的空间类型中留下一抹亮色。
在我看来:美是多元的而非绝对的,否则,就不会出现“南橘北枳”的悲剧了。因此,纯粹的、形而上的美在现实中是不存在的,我们看待“美”,不是只有“任凭世间风雨,我自岿然不动”的笃定,而应该是看得见生命的辉煌与落寞后的感受,只有出自内心的、来自生活、相拥于日常的“美”,才具有恒常的生命力和持久性。
“润舍纳图”的办公空间无疑是美的,不过,这种美不算是强烈的视觉冲击下那样产生“多巴胺”的愉悦,而是身在其间,才能感受到的、来自身体和对时光、温度的感知,是一种“润物细无声”的美好。我们衡量美也不能只有一种刻度的尺子,就空间而言,我们越来越迷恋不同情态下的“微视觉”,其间既有男性思维壮丽与理性,也有“女性主义 ”的温婉、感性和包容;既有年轻生活方式和全球化视野,也有年老的、怀抱记忆与时光温润后的睿智……。因此,我们主张设计都应该有“人”的特征,应该纳入了“生命”、“自然”与“生活的日常”的刻度。
“润舍纳图”设计工作室空间的舒适感是从室外微型庭院开始的。
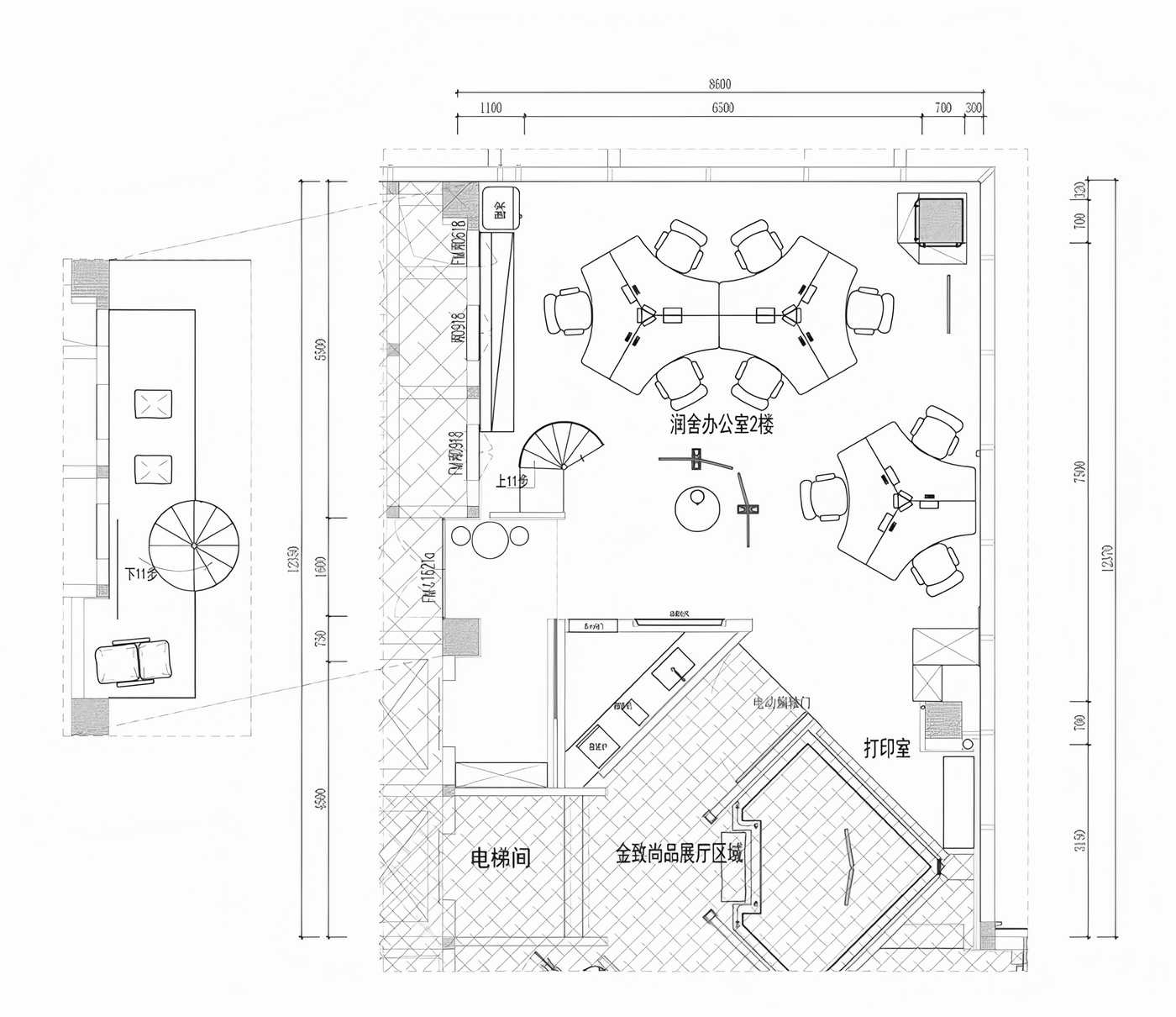
富森美家居.天府”9号楼是一个极其内敛的小型建筑,其间包含了一个门窗展厅—金致尚品展示空间、微型庭院作为“润舍纳图”设计工作室的入口,它还兼具了调节空间节奏的灰空间功能。在工作室空间的规划中,“润舍纳图”的设计总监李雪将建筑中作为“配角“的部分,划出两层、总计150平方米作为“润舍纳图”设计工作室的办公空间,并重新定义了设计师的工作状态和时间界限,让工作与生活完美地融为一体,使工作室的氛围成为设计师生活的一部分。
为了使原空间的逼仄感消失,设计师重新定义了空间节奏,并且,牺牲了 9 号楼的原秩序,让工作室与门窗展厅以两种逻辑并存于一个屋檐下,谁也不是谁的附庸。因此,设计师用室外庭院入户的方式,让室外空间与室内融为一体,光线改变了进入室内的路径。工作室在阳光漫洒下,一切都有了生机勃勃的景象,中古家具映衬着的植物,犹如从地面生长出来一样,一切显得熠熠生辉。设计师利用植物的设置和半高楼梯的关系与墙面带有做旧痕迹形成游走路径,使工作室内的其他设计师在这里安神、安心,付出一天的时光。
润舍3.0这是一次向内的回归,不再试图用设计去征服什么,而是想温柔地接住每一个走进来的人。哪怕什么也不做,只是感受时间,和空间一起呼吸。设计不只是造一个空间,更是织一张情绪的网,能接住人的恍惚、疲惫、突然的沉默或灵感。
石料以沉稳的肌理铺陈天地与立柱,奠定宁静的基调。低位灯笼悄然漫射暖光,轻柔地托起空间,消解了挑高的冷峻。一窗绿意被巧妙纳入画中,与室内简约的器物静默对话。
可开合的隔断灵活划分空间,旁边的木质书架陈列着书籍与艺术品,营造出雅致的氛围。
作为一位优秀的空间设计师,李雪具有较为超前的移情和转化感受的能力,在她的设计观中,空间属性之间从不是“主动”和“从动”之间的机械关系,她认为:设计是一个需要思想自由的行业,任何强加在设计师身上的限定,都有可能变成思想的枷锁,让设计变得匠气和不自由。
李雪首先重新定义了“润舍纳图”设计办公的方式:设计,不一定需要“自闭式”地坐在办公桌前闭门造车,更需要社交和沟通,只要可以落座的地方就是设计师工作的场域,因此,她取消了传统意义上的“工位”的概念,让设计师用自己感受最舒服的体态去站着、坐着,去交流与讨论,甚至去八卦,这时,浓郁的生活氛围包围、充盈了设计师行为。
在此基础上,设计师将整个建筑中的空间视为有生命体呼吸的“生命体”,空间变成情感叙事的框架,其间充斥人地行为与社交内容,空间成为和材料、形式、氛围同等重要的“元素”而不是现实“条件”,捆绑在设计师身上的锁链被打开了。
光线自高处泻下,绿植如藤蔓般垂落,交织成一幅活的穹顶。一方茶台仿佛漂浮其中,安放着温润的手作器物。光与影透过天窗,在空间中无声流转,随时间雕刻着风景。
疏朗的松枝影影绰绰,滤下一地闲适的绿意。黑色陶土桌台粗粝的肌理之上,手作陶器与古朴旧物安然静置,仿佛在进行一场无声的轻语。
“润舍纳图”设计工作室虽然仅150平方米、而且是跨二层的办公空间,但在设计师手中,却充分发挥女性设计师感性、细腻和想象力四溢的重要的领地。设计师将在生活中领悟到的节奏与美,用最个人也最日常的方式无言地彰显出来,李雪在这里没有说教,也没有高不可攀的理论,更没有提出什么“主义”,一切都坦坦荡荡,迎风生长,自然而流畅,但向我们揭示出一个道理:对我们随时都在使用的空间也好、器物也罢,都不能仪式感或设计的痕迹过于强烈,因为他会“反噬”我们的行为,让我们无法安神与专注。
木质百叶如画卷般向两侧舒展,将视野引向远方,拓展了空间的呼吸感。温润的灯光如轻柔的纱幔,掠过墙面细腻的粉质肌理。蓊郁的绿意与手作器物默契低语,悄然将室外的盎然生机与室内的宁谧安然编织为一体,形成一处令人心绪沉淀的情绪场域。
左侧,安藤忠雄为CarHansen&Son设计的「梦想椅」,以简洁的弧线成为沉思的角落;右侧,JACO的茶几以沉稳之姿托起日常;上方,Wdstck的吊灯则如一件轻盈的艺术装置,点亮这方温情天地。
行笔至此,我的心里突然萌生了一个想法:我们要讨论的是设计师李雪在“富森美家居.天府”9号楼的润舍纳图设计工作室的设计创意吗?显然不是!因为这个办公场地带有太过明显的场所胎记,而且不具有“普世”价值。但是,设计师在这个设计中抱有的设计观却是值得我们思考的。
项目名称 | 润舍纳图3.0办公空间
项目位置 | 四川成都
项目面积 | 150㎡
设计单位 | 润舍RESOLUTE设计事务所
设计内容 | 硬装、软装
设计总监 | 李雪
设计团队 | 李雪、叶黎
深化施工 | 2 % P Lab
项目品牌 | 本木木作、金致尚品门窗、瑞族V-ZUG、U+优家、昕升泰仿钢窗、BOMEI博美楼梯、BRIGHTNEST博根特、莫洛尼MOLONEY、Techsize德赛斯、集物地板、I HOUSE、壹集YIJI、haus101、予所Yusol、JUEST加里思特、麦克维尔中央空调、A.O.史密斯、鹏基艺术石材、富豪石业、尚锦 - 花不缺植造、AOARASI青嵐、Ballad捌楽、Kar、O nemorechair、莺Oriole、ZAMANI、顶丰科技、光度光舍照明、贰匠新型材料、不造新材料、CANOVA空间美学、石上流文化、石头牛建材、琦邦家居、陈光耀、周强、萬亨
品牌策划 | SACCREW果术品牌、灯笼惊喜
项目摄影 | 形在建筑摄影/贺川
项目文案 | 张轶青 设计年份 | 2023.12
完工年份 | 2024.10
RESOLUTE | 润舍纳图设计事务所2013年设立于中国成都,拥有国内外专业院校数余人的设计师团队,主理人李雪毕业于四川美术学院,常年设计游学英国、法国、意大利、瑞士、德国、美国、加拿大、日本、韩国、新西兰等国家。作品被国际及国内知名专业设计主流媒体收录及发布。践行“理想生活 不止于美”的价值理念、服务业态多元的空间设计事务所。以不断挑战极具美学价值、情感价值、商业价值、无可替代的全感官体验、营造极具文化、艺术感知力、启发性的空间设计。旨在关注人在空间里的情绪精神需求,以人为本,围绕当代中国人的精神与情绪安放场域,通过空间设计去诠释人们在空间里的情绪价值,设计服务范围涵盖:商业、零售、文旅、酒店、城市更迭、及私宅等。
售价: 1 金钱
客服
消息
收藏
下载
最近



















































