查看完整案例


收藏

下载

翻译
Quando abbiamo iniziato a pensare alla costruzione di un luogo per Masseto sapevamo che era necessario un concetto molto individuale. Un posto quasi sacro. L'architettura per il vino dove rappresentare l’azienda, rafforzare l'identità del brand e incarnare la sua filosofia. Dovrebbe essere un luogo per persone e tecnologie, e uno spazio perfetto per la produzione e la conservazione.
Nel caso di Masseto, sono state fatte due considerazioni. Prima di tutto, preservare il territorio. La cantina non deve essere indipendente o dominante. Bisogna integrare la cantina con il territorio, il vigneto, la collina e l’edificio storico Masseto. In secondo luogo, integrare l’architettura con il processo produttivo a gravità.
Abbiamo pensato alla Cava come tema portante del progetto. È un omaggio a un luogo di lavoro dedicato a svelare i segreti di ogni annata di Masseto. È anche un tributo alla più ampia storia dello sforzo delle persone e alla sua interazione con la natura.
A noi è stato richiesto di creare una nuova Architettura, ma allo stesso tempo per noi era molto importante creare un’Architettura senza tempo.
Il nostro concept è stato scelto tramite una gara a invito a cui hanno partecipato firme internazionali dell’architettura.
Dall'esterno, solo il corpo destinato a ricezione uva e l’edificio storico a due piani emergono dalla collina. All'interno abbiamo creato gli spazi non costruendo, ma estraendo massa monolitica. I diversi volumi, altezze e livelli interni ricordano una miniera da cui si estrae il materiale prezioso. Qui, sotto la collina, i vini prendono vita e maturano, protetti come un bambino nel ventre materno. La tecnica adottata per la costruzione della cantina è il cemento armato gettato in opera, che simboleggia la massa solida che lo circonda, come l’argilla blu, una delle peculiarità della stratificazione della collina Masseto e della sua vigna. Ne abbiamo lasciato una traccia visibile attraverso due tagli nel muro della barriqueria come testimonianza del territorio e della sua storia - le origini di Masseto.
Internamente, le superfici con texture e scanalature differenti rappresentano le tracce lasciate dall’estrazione. Le superfici sono il confine che divide il vuoto dell’interno e la massa che lo circonda.
Il concept ha portato a creare un’architettura interiore, visibile solo dall’interno.
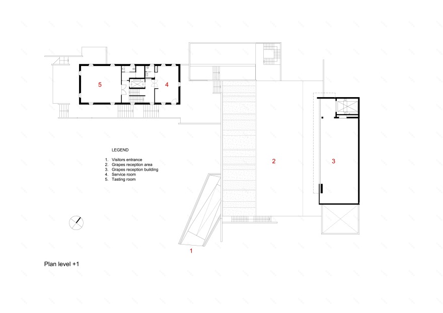
L’ingresso principale per i visitatori si inserisce come un taglio nella collina.
La superficie in cemento ossidato nero sottolinea l’effetto imbuto dell’ingresso e una lieve pendenza conduce al primo livello interrato della cantina. Qui, dietro una parete di acciaio inox, un piano sospeso si affaccia sul locale della fermentazione con i suoi dodici tini progettati appositamente per il progetto.
Da qui, attraverso una parete di vetro fumè, lo spazio si espande e si affaccia sulla barriqueria del primo anno. Una scala scavata conduce giù ad una passerella poggiata su una vasca d’acqua.
Il percorso continua nel cuore della cantina: due barriquerie e la cantina storica-Caveau Masseto. Una porta scorrevole in acciaio brunito separa la barriqueria del primo e del secondo anno. Qui il vino riposa e raggiunge lentamente la maturità. Gli spazi e le superfici sono stati progettati creando dei volumi in aggetto o dei vuoti con forme irregolari che aumentano la sensazione di essere all’interno di una cava. All’estremità della barriqueria del secondo anno c’è la sala degustazione in vetro, un cubo parzialmente sospeso. Dall’altro lato, nascosto dietro una parete rivestita di pietra, si trova la cantina storica. Qui vengono conservate bottiglie di ogni annata, sospese all’interno di una rete di acciaio inox.
Attorno alle barriquerie e alla cantina storica, che sono il cuore pulsante dell’edificio, si trovano i corridoi tecnici e di controllo del processo di vinificazione.
Ritornando in superficie, spostandosi dal buio verso la luce, delle scale in cemento portano all’interno di Casa Masseto. Ricostruita preservando il suo aspetto storico, le sue finestre fanno da cornice al vigneto sottostante, circondato da colline e dal mare.
客服
消息
收藏
下载
最近




























