查看完整案例


收藏

下载

翻译
Right after Whizar, a young Israeli startup, obtained 3 million dollars in investment, they moved from a premier top-floor office to an industrial old building, used as a modest printing house, in the workshops area of Tel Aviv.
The luxury old office was never fitting for the founder's vibes. Their decision to leave the coworking space coincided with the arrival of COVID-19.
Together with architects Manor Brown and Tamar Ofer we provide the company white, bright, clean and optimistic aesthetic. However, it was important for all parties to preserve the original industrial design of the building: Concrete floors, high ceilings, wide steel windows from the ‘60s, which reflect the skyline of Tel Aviv.
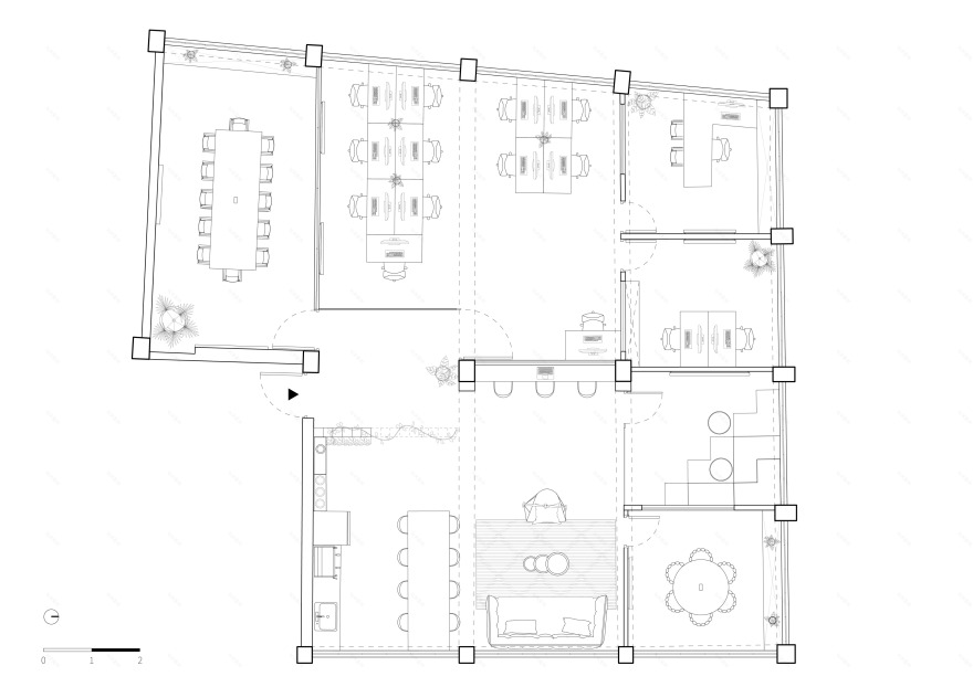
In spite of the global COVID-19 pandemic that caused the company to have a hiring freeze, like many other companies around the world, the founders asked for a versatile floor plan which enables to transform communal spaces into private offices easily. The new design offers a variety of shared working areas that ranged from formal meeting rooms to informal spaces for ideation.
客服
消息
收藏
下载
最近











































