查看完整案例

收藏

下载
合肥庐江矾矿,作为一处承载深厚历史价值的工业遗址,见证了我国矿业发展的辉煌历程。不同于传统的文保更新模式,结晶池的改造以策划与设计为先导,通过展览、咖啡、文创与公共活动的植入来激活场地。在保留原有建筑结构、台阶地貌与圆坑遗址的基础上,设计置入架空黑色栈道,生成全新的参观动线,并以“晶体”为媒介,以透光材料打造展陈、家具与灯光装置串联不同的空间功能。工业遗址由此不再只是被凝视的对象,经更新改造被赋予当代生活场景的矿坑咖啡,成为承载当代生活与生态修复的公共容器,实现了工业遗址的修复与文化生态景观的重塑。©朱润资
Fanshan Alunite Mine in Lujiang, Hefei is an industrial heritage site of profound historical significance, bearing witness to the glorious evolution of China’s mining industry. Unlike conventional cultural preservation models, the transformation of the crystallization ponds is driven by a strategic approach, activating the space through the integration of exhibitions, a café, cultural retail, and public events. While preserving the original structures, terraced landforms, and circular pit relics, the design introduces an elevated black boardwalk system, creating a new visitor circulation route. Inspired by the aesthetics of the alunite crystals, the design uses translucent materials to make exhibition displays, furniture, and lighting installations that connect different spatial programs. Thus, the industrial site is no longer merely an object of contemplation. The renovated Pit Café, now embedded with contemporary life, serves as a public vessel that combines modern living with ecological restoration, ultimately achieving the revitalization of the industrial heritage and the reshaping of the cultural-ecological landscape.
▼遗址场地,heritage site©朱润资
▼遗址俯视图,aerial view of the heritage site©朱润资
▼遗址入口,entrance of the heritage site©朱润资
项目背景:“千年矾都”的辉煌历史与落寞困局
Background: The Glory and Decline of the “Millennium Capital of Alunite”
庐江矾山素有“千年矾都”之称,采矿史可追溯到唐朝。50-70年代进入鼎盛期,矾矿迎来了黄金时代,然而90年代市场萎缩后于2001年停产,矿区辉煌的落幕遗留下来的,不仅仅是破旧的厂房还有满目疮痍的山体和逐渐恶化的生态环境。炉火熄灭了,结晶池被废弃,巨大的圆坑如大地沉默的伤口,裸露的台阶地貌在风雨侵蚀中荒芜,曾经的动力核心,其蕴含的独特历史价值与空间潜力,在漫长的沉寂中几近湮灭。▼矿坑遗址,Mine pit ruins©FLIP studio
Fanshan, Lujiang County has long been known as the “Millennium Capital of Alunite,” with a mining history dating back to the Tang Dynasty. It reached its peak from the 1950s to the 1970s, experiencing a golden era of alunite production. However, following market contraction in the 1990s, the mine ceased operations in 2001. The end of its prosperity left behind not only dilapidated factories and the crystallization ponds but also a deteriorating ecological environment. The unique historical value and spatial potential of this once-powerful industrial core nearly faded into oblivion over time.
▼入口,entrance©朱润资
战略性破题:保育|活化|植入|焕新
Strategic Approach: Conservation, Activation, Insertion, and Regeneration
面对这片承载千年工业血脉却又濒临“废墟化”的遗址,常规封存式保护显然力有不足。结晶池改造项目需要破局的利器,其核心策略凝练为:保育为本,活化为径,植入为机,焕新为果。这并非保守的瞻仰与凝视,亦非粗暴的覆盖或篡改,而是一次以深刻尊重为前提的、创造性的介入:探索如何在修复遗址的物质衰败与历史断层的同时,修复其与当代社会、自然生态之间被割裂的纽带,最终重塑一个融合工业遗产、文化活力与生态韧性的文化生态景观。
▼矾矿轴测,axonometric©FLIP studio
Faced with this site, which carries a thousand-year industrial legacy yet verges on becoming a ruin, conventional preservation methods proved insufficient. The transformation of the crystallization ponds required breakthrough strategies, summarized as: conservation, activation, insertion, and regeneration. It is a creative intervention seeks to address the physical decay and historical disconnection of the site while repairing its severed ties with contemporary society and the natural ecology. The goal is to reshape a cultural-ecological landscape that integrates industrial heritage, cultural vitality, and ecological resilience.
▼巨大的圆坑遗址,A huge circular pit site©朱润资
▼重塑后的文化生态景观,The reshaped cultural ecological landscape©朱润资
▼矿坑咖啡,cafe©FLIP studio
保育:守护工业记忆的基石
Conservation: The Foundation of Industrial Memory
保育是贯穿始终的底线与出发点。设计以近乎考古学的严谨态度对待场地遗存。结晶池群那由历史生产活动塑造的独特的台阶型地貌,是工业过程在大地上的直接镌刻,被完整保留下来,成为整个场地最震撼的立体基座。巨大的圆坑遗址——工业流程的终端容器——其原始的、粗粝形态与坑壁赤青色的矿物渍迹一起被精心呵护。那些承载着历史信息的原有建筑结构,如建筑的木结构绗架,斑驳的混凝土框架柱与条形基础,均被最大限度地保留,在确保这些工业“骨骼”的稳定性与安全性的同时,使其得以成为后续一切活化与植入得以生根发芽的坚实土壤。
Conservation serves as the fundamental principle and starting point throughout the project. The design treats the site with near-archaeological rigor. The unique terraced landforms shaped by historical production activities—a direct engraving of industrial processes on the earth—are entirely preserved, forming the site’s most striking three-dimensional base. The massive circular pit relics, the terminal containers of the industrial process, are carefully maintained in their brutal states, leaving mineral stains on the pit walls. Existing structures bearing historical significance, such as timber frame trusses, weathered concrete frame columns, and strip foundations, are retained to the greatest extent possible. Ensuring the stability and safety of these industrial “bones” allows them to become the solid ground upon which subsequent activation and insertion can take root.
▼木结构绗架,timber truss frame©朱润资
▼明矾主题展览,Alum theme exhibition©FLIP studio
▼明矾结晶池,Alum crystallization tank©朱润资
活化:流动的叙事,以晶体为媒介
Activation: Fluid Narratives Mediated by “Crystals”
设计在庞大的工业地景之上,编织出一条独立的路径——架空的黑色木栈道系统。栈道穿梭于高低错落的台阶地貌之间,凌驾于巨大的圆坑遗址之上,既最大限度地减少了对原始地貌的触碰与干扰,又为访客创造了视角多变的立体游览动线。
Above the vast industrial landscape, the design weaves an independent pathway—an elevated black boardwalk system. The walkway meanders between the uneven terraced landforms and overlooks the giant circular pits, minimizing disturbance to the original site.
▼架空的黑色木栈道,An elevated black wooden walkway©朱润资
▼50年代历史物件展览,Exhibition of historical objects from the 1950s©朱润资
▼架空的黑色木栈道,An elevated black wooden walkway©朱润资
“活化”的灵魂更在于主题叙事与空间氛围的营造。设计提炼矾矿核心产物——“晶体” 作为贯穿的媒介。一系列以透光性材料(如白色半透明玻璃钢,透明亚克力管,彩色磨砂玻璃)制作的展陈、家具及灯光装置被嵌入场地。
The essence of “activation” lies in the creation of narrative and spatial atmosphere. The design extracts the core product of the alunite mine—”crystals”—as a unifying medium. A series of exhibition displays, furniture, and lighting installations made of translucent materials (such as white translucent fiberglass, transparent acrylic tubes, and frosted colored glass) are placed throughout the site.
▼发光的玻璃钢展台,A glowing fiberglass reinforced plastic exhibition stand©朱润资
▼发光的玻璃钢展台,A glowing fiberglass reinforced plastic exhibition stand©朱润资
展览空间中的展台、研学工坊的长桌、咖啡吧的吧台都是以手工制作的白色半透玻璃钢制成。休息区的沙发以及文创区的置物架与展台是由工作室开发设计的一套结合回收老木头、彩色磨砂亚克力和金属框架的家具系统,意在回应工业厚重质感的同时,碰撞出新与旧的对话。矿坑咖啡区每个圆坑咖啡的上方悬挂着17个经过多次实验测试的,由亚克力弯管与LED灯丝制成的3m直径的巨型灯光装置。
In the exhibition space, display stands and the long workshop tables, as well as the café bar counter, are crafted from hand-made white translucent fiberglass. Sofas in the rest area and display furniture in the retail zone are also designed by FLIP, combining recycled wood, metal frames and colored frosted acrylic, to create a dialogue between old and new. Above each circular pit in the café area hangs a giant lighting installation—3 meters in diameter—composed of acrylic bent tubes and LED filaments.
▼发光的玻璃钢工坊长桌,A glowing fiberglass workshop long table©朱润资
▼巨型灯光装置细节,Details of the giant lighting installation©朱润资
这些“晶体”元素在自然光下折射光影,在阴天和傍晚则化为柔和的发光体,犹如从遗址深处重新生长出的璀璨矾花,游客行走其间,仿佛置身一部关于光、矿物与时间的立体诗篇。
These “crystal” elements refract light under natural sunlight and transform into soft luminescent bodies on cloudy days and evenings. Visitors walking through the space feel as though they are immersed in a three-dimensional poem about light, minerals, and time.
▼矿坑咖啡吧,Mine pit coffee bar©朱润资
▼木构展台展示50年代历史物件,The wooden exhibition stand showcases historical items from the 1950s©FLIP studio
▼回收老木与彩色亚克力的展台,A booth for recycling old wood and colored acrylic©FLIP studio
植入:新功能赋予当代生命力
Insertion: New Programs Infusing Contemporary Vitality
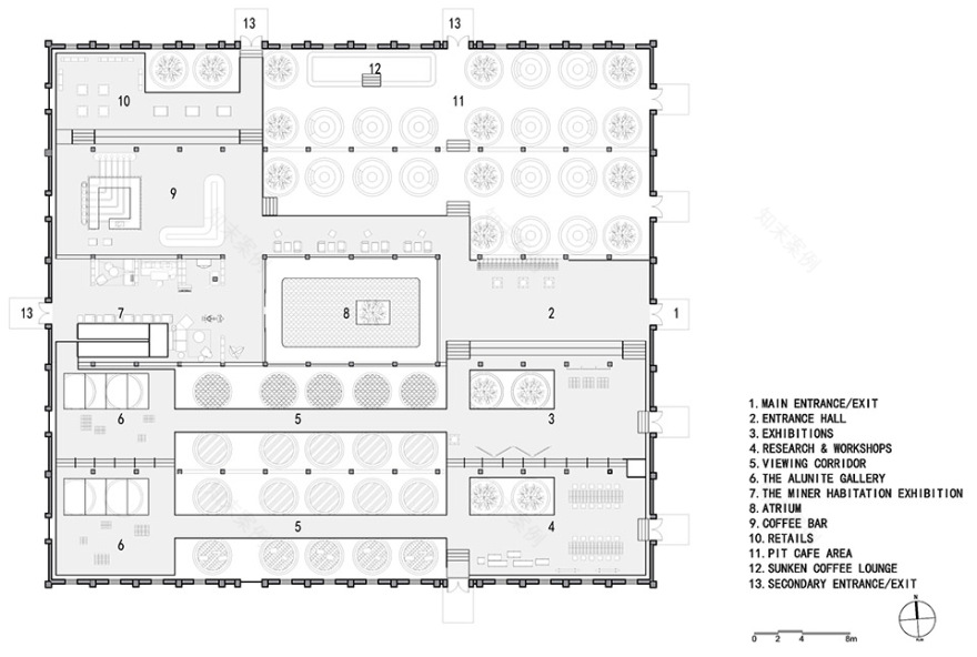
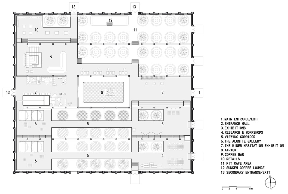
激活遗址,使其从单纯被凝视与瞻仰的客体身份中解脱出来,得益于文旅策划与设计先行的模式。项目结合遗址原有的地形、地貌、圆框的现状等因素,大胆而精准地植入了七类核心功能:入口接待、明矾主题展览、矿坑遗址参观、室外水雾景观剧场、50年代历史物件展览、矿坑咖啡、文创零售;并利用部分开阔的台阶地貌或平整区域,设置灵活多变的活动场地,使其可举办工作坊、研学教育、现场演奏,时装表演等活动,吸引多元人群,注入持续活力。
Activating the site and liberating it from being a mere object of gaze and reverence is made possible through a planning strategy that prioritizes cultural and tourism development. Based on the site’s original topography, landforms, and the conditions of the circular pits, new programs are inserted: reception, alunite themed exhibitions, pit relic tours, an outdoor theater, a 1950s historical artifacts exhibition, a pit café, and retail. Additionally, open terraced areas or flat zones are repurposed as flexible event spaces for workshops, educational activities, live performances, fashion shows, and more, attracting diverse crowds and infusing sustained vitality.
▼矿坑文创零售区,Mine Pit Cultural and Creative retail area©朱润资
其中最具标志性的植入点莫过于选取尺度适宜的圆坑遗址,将其转化为独一无二的“矿坑咖啡”。顾客沿着栈道下行进入,坐在以晶体为灵感的透光材质的圆环形灯具装置之下,手握一杯温热咖啡,环顾着四周历经沧桑的坑壁,工业历史的厚重与当代生活的闲适在此刻奇妙交融。圆坑从被远观的遗址,变为可沉浸其中、承载当代生活场景的容器,完成了从“客体”到“主体”的身份蜕变。
Among these, the most iconic adaptation is the transformation of a suitably scaled circular pit into a unique “Pit Café.” Visitors descend into the pit via the boardwalk and sit under circular lighting installations inspired by crystals and made of translucent materials. With a warm cup of coffee in hand, they are surrounded by weathered pit walls, where the industrial history and the contemporary life blend marvelously. The pit transitions from a distant relic to an immersive container of modern life, completing its transformation from “object” to “subject.”
▼矿坑咖啡,Mine Pit Cafe©朱润资
▼矿坑咖啡圆坑遗址,Mine Pit Cafe heritage site©朱润资
▼矿坑咖啡圆环形灯具装置,Mine Pit Cafe Circular ring-shaped lighting fixture©朱润资
这些植入并非简单的功能堆砌,而是深度契合场地特质与主题,并与保育的工业风貌、活化的叙事体验形成有机互动。它们像精心培育的新生组织,生长于遗址的“骨骼”与“脉络”之上,赋予其服务当下、面向未来的实用价值和吸引力。
These insertions are not mere functional additions but are deeply aligned with the site’s characteristics and themes, interacting organically with the conserved industrial features and the activated narrative experience. Like carefully cultivated new tissues, they grow upon the “bones” and “veins” of the site, endowing it with practical value and appeal for the present and future.
▼圆坑遗址成为生态修复的容器,The ring-shaped Site has become a container for ecological restoration©朱润资
▼景观水庭中的油橄榄树,The olive tree in the landscape water courtyard©朱润资
焕新:文化生态景观的重塑
Regeneration: Reshaping the Cultural-Ecological Landscape
保育其形,活化其神,植入其用,最终导向的是遗址及其所在区域整体的“焕新”。这种焕新是深刻而多维的。矿坑从废墟中重生,成为充满活力、可游可赏可用的文化地标。设计的介入不止于文化层面焕发新意,更将生态修复纳入其中:巨大的圆坑,一部分置入明矾晶体重现结晶池结晶的过程,一部分形成结构脱开的咖啡区卡座,还有一部分则引入室内植物景观,化作涵养水土、孕育微小生态的“自然的容器”。在这种层层递进的更新逻辑中,工业遗址逐渐蜕变为具有生态韧性的基底。
Conserving its form, activating its spirit, and implanting new programs ultimately lead to the holistic “regeneration” of the site and its surrounding area. This regeneration is profound and multidimensional. The pits are reborn from ruins, becoming vibrant cultural landmarks that are visitable, appreciable, and usable. The design intervention goes beyond cultural renewal to incorporate ecological restoration: some of the giant pits are used to recreate the crystallization process with alunite crystals, others are transformed into structurally detached café seating, and some are introduced with indoor planters, serving as “natural containers” that nurture micro-ecosystems. Through these series of strategic renewal, the industrial site gradually transforms into an ecologically resilient base.
▼矿坑遗址现场,The site of the mine pit ruins©朱润资
▼矿坑咖啡,The mine pit cafe©朱润资
▼矿坑咖啡圆坑遗址细节,The mine pit cafe detail ©朱润资
改造后的庐江矾山结晶池遗址,凭借保育、活化、植入的一系列策略,实现了从单一废弃工业场所到复合型文化生态景观的重塑蜕变。在这里,工业历史遗产不再是孤立的存在,它与修复中的自然生态紧密共生,又与当代文旅功能和谐交融,共同构筑成一个层次丰富、可持续、且具有强大吸引力的整体。
Through the strategies of conservation, activation, and insertion, the renovated Fanshan Crystallization Ponds site in Lujiang County has achieved a metamorphosis. It is no longer an isolated industrial historical heritage but coexists with the restored natural ecology and integrates with contemporary cultural and tourism, together forming a rich, sustainable, and highly attractive whole.
▼模型,model©FLIP studio
▼平面图,plan©FLIP studio
项目名称:庐江矾山结晶池遗址改造
项目地点:安徽省合肥市庐江县
业主:安徽矾山文旅投资运营有限公司
设计单位:FLIP studio 番番營作
策划:杨函憬
深化单位:安徽省城市综合设计研究院有限公司
主持设计师: 孙凯伦、王志明
设计团队:陈子玄,张旨脉
摄影师:朱润资
建筑面积:2165㎡
室内面积:2100㎡
设计时间:2024.06-2025.05
完工时间:2025.05
Project Name: Fanshan Alunite Crystallization Ponds
Project Location: Lujiang County, Hefei, Anhui Province, China
Client: Anhui Fanshan Cultural Tourism Investment Co., Ltd.
Design Firm: FLIP studio
Planing: Hanjing Yang
Lead Designer: Kailun Sun, Edward Wang
Design Team: Zixuan Chen, Zhimai Zhang
LDI: Anhui City Comprehensive Design Institute CO., LTD
Photo: Zhu Runzi
Gross Built Area: 2165㎡
Interior Area: 2100㎡
Design Period: 2024.06-2025.05
Completion: 2025.05
客服
消息
收藏
下载
最近










































