查看完整案例

收藏

下载
一、缘起
Origins
位于关中平原东南部秦岭深处的商洛,因商山、洛水而得名,是国家南水北调中线工程的重要水源涵养地,生态环境宜人,但水质保障的重任让其面临经济发展的压力。商洛市下辖一区六县,本项目位于商州区(中心城区)三岔河镇河谷地带的七星村,距市中心约半小时车程。当地政府自2017年开始推动七星村的农业经济,使其在2019年入选第二批国家森林乡村名单,2021年获评陕西省美丽宜居示范村。
Shangluo, located deep within the Qinling Mountains in the southeastern part of the Guanzhong Plain, derives its name from Mount Shang and the Luo River. It serves as a crucial water conservation area for China’s South-to-North Water Diversion Middle Route Project. While blessed with a pleasant ecological environment, the region faces economic development pressures due to its responsibility for water quality protection. Administratively, Shangluo City governs one district and six counties. This project is situated in Qixing Village within the San’chahe Town river valley of Shangzhou District (the central urban area), approximately a half-hour drive from the city center. Since 2017, local authorities have promoted agricultural development in Qixing Village, leading to its inclusion in the second batch of China’s National Forest Villages list in 2019 and recognition as a Model Demonstration Village for Beautiful and Livable Communities in Shaanxi Province in 2021.
▼七星村航拍,Aerial view of Qixing Village©垣建筑设计工作室
作为区域发展的重要补充,本项目被定位为七星村的“乡村客厅”,目标是将住宿、餐饮、地方产业和村落环境联动规划,吸引年轻人返乡,同时给予游客深入体验秦岭乡村生活的机会,以此改善乡村空心化现状,带动区域发展。项目得到了当地政府的全力支持,并由私营企业出资共建。与外来投资者不同,业主刘丁子和凤永斌作为当地知名企业家,表现出对家乡的爱与责任。从选址就可看出,他们并非只追求景观体验的独特性,更多考虑到了与乡村环境及村民之间的紧密联系。为此,项目选址于七星村及其产业基地的正对岸,仅一河相隔,由市政混凝土桥相连。
Positioned as the “rural living room” of Qixing Village, this project aims to integrate accommodation, dining, local industries, and village environments into a cohesive plan. Its goals are to attract young people back to their hometowns, offer visitors immersive experiences of rural life in the Qinling Mountains, mitigate rural hollowing-out, and stimulate regional development. The project has received full support from local authorities and is jointly funded by private enterprises. Unlike external investors, the owners—Liu Dingzi and Feng Yongbin—are well-known local entrepreneurs who demonstrate deep affection and responsibility for their hometown. This is evident in the site selection: rather than focusing solely on scenic uniqueness, they prioritized close integration with the village’s environment and community. Thus, the site is located directly across the river from Qixing Village and its industrial base, connected only by a municipal concrete bridge.
▼七星村航拍及区位图,Aerial view of Qixing Village and location©垣建筑设计工作室 &Google map
二、地方特征
Local Characteristics
1、关山行旅图
“Traveling Through the Mountains” (Guan Shan Xing Lv Tu)
从西安到项目场地约2小时车程,有高速和国道两种选择,我们更愿意选择后者。从蓝田辋川穿越312国道进入商洛的路段,就是曾经著名的“蓝关古道”之所在,需从蓝田平原升至1200多米的牧护关(商洛市西大门),沿路风景令人振奋。从蓝田进入不久,道路便被紧紧夹持在褶皱的岩石地貌之中,可强烈感受到关仝(五代后梁时期的山水画家,陕西人)在《关山行旅图》中所刻画出的壁立千仞、兀石丛立的实景震撼。画中,建筑以开放的院落式布局散布于平缓之处,空间宁静致远,坡顶轻盈舒展,自然的木构桥体与建筑共同勾勒出一个可行、可望、可游、可居的曲折漫游路径。
▼《关山行旅图》及壁立千仞的秦岭山川,Travelers’ View of Guanshan andThe towering mountains of the Qinling range©关仝(五代)&垣建筑设计工作室
The journey from Xi’an to the project site takes about two hours by car, with options of either highway or national road. We prefer the latter. The stretch along National Highway 312 from Lantian’s Weichuan into Shangluo follows the historic “Lan Pass Ancient Road.” The route ascends from the Lantian plain to the Muhuguan Pass (over 1,200 meters above sea level), the western gateway to Shangluo, offering exhilarating mountain scenery. Soon after entering Lantian, the road is tightly flanked by folded rocky terrain, evoking the powerful, vertical cliffs and clustered boulders depicted in Traveling Through the Mountains, a renowned landscape painting by Guan Tong—a 10th-century painter from Shaanxi. In the painting, buildings are arranged in open courtyard layouts on gentle slopes, creating serene, expansive spaces. Light, extended-pitch roofs and natural wooden bridges together form a winding path that is walkable, viewable, explorable, and livable.
▼褶皱岩石地貌中的312国道,National Highway 312 in the folded rock landscape© 垣建筑设计工作室
2、下重上轻
Heavy Below, Light Above
沿路民居顺山势星散分布,向阳避风而建,多采用“土木瓦房”,以厚重夯土或土坯粉白为墙,开窗较小,保温较好。双坡人字木构为顶,前后出檐深远,有的达到1米以上,屋顶两端也延伸到山墙以外五至八椽,檩条一并挑出,呈现出厚重体量与轻盈屋顶之组合。
Local dwellings are scattered along the mountain slopes, built to face the sun and shelter from wind. Most are traditional “earth-wood-tile houses,” with thick rammed earth or whitewashed adobe walls and small windows that provide good thermal insulation. Roofs are typically gabled wooden structures with wide overhangs—sometimes exceeding one meter—and eaves extending five to eight rafters beyond the gable ends, with purlins projecting outward. This creates a striking combination of a heavy base and a light, floating roof.
▼商洛民居,Shangluo residential house© 垣建筑设计工作室
3、挑楼形态
Stilted Balcony Houses (“Tiao Lou”)
在沿河集镇地区,陕南民居多依山傍水就复杂地势而建,呈现高低错落的整体风貌。因用地局促,场地平整难度大,会采用节地的多层建筑。为争取面积,二层以上多会出挑,形成独特的“挑楼”形态,同时带给一层半室外空间较大的遮阳。这种“挑”或“吊”的形态在南方湿热山区很常见,但陕南民居为了应对冬季保温,会把一层空间室内化,并借助石头砌筑出厚实的高台基础承托上部,同时防潮防湿。
In riverside towns, southern Shaanxi dwellings are often built on complex terrain, resulting in staggered, multi-level compositions. Due to limited land and difficulty in leveling, multi-story buildings are common. To maximize floor area, upper floors are often cantilevered, forming distinctive “stilted balcony houses” (tiao lou). These provide significant shade for semi-outdoor spaces on the ground floor. While such cantilevered or suspended forms are common in humid southern mountainous areas, southern Shaanxi houses adapt them for winter insulation: the ground floor is fully enclosed, supported by thick stone plinths that elevate the structure, preventing dampness and providing thermal mass.
▼旬阳城关街景及七星村民居,Xunyang Chengguan street view andQixing Village residential houses© 《陕西民居》& 垣建筑设计工作室
三、现实条件
On-Site Conditions
在垣建筑的过往乡村实践中,低造价、低技术、短周期及不可预期的错误常常成为我们必须面对的问题。这些问题在本项目中依然存在,并因场地的陡峭和道路不便显得愈发困难,建筑材料的运输常需要借助骡子或马匹来完成。但条件上的限制并非就是设计品质的障碍,如果综合平衡的好,反而会成就一种朴实无华的在地化高品质。
In previous rural projects by Heng Architecture, low budgets, limited technical resources, tight schedules, and unpredictable errors have been recurring challenges. These issues persisted here, exacerbated by the steep terrain and poor access, often requiring mules or horses to transport construction materials. Yet such constraints need not compromise design quality. When carefully balanced, they can instead foster a humble, authentic, and high-quality local architecture.
▼局促的施工场地,Cramped construction site© 垣建筑设计工作室
四、设计策略
Design Strategies
1、尊重与保护
Respect and Preservation
场地有五处废弃的宅基地,最高处的夯土民居情况较好,我们希望在施工条件成熟后再进行保护性改造。其余四处虽损坏严重,但场地已平整过,利于建造。宅基地周边的景观环境及毛石墙体在初次调研时便让我们印象深刻,妥善保留好它们成为首要态度。
▼场地的整体规划布局,Overall site planning and layout© 垣建筑设计工作室
▼四组院子的模型照片,Model photos of the four courtyard groups© 垣建筑设计工作室
The site includes five abandoned homesteads. The highest one, a rammed earth house, remains in relatively good condition, and we plan to preserve and renovate it once construction conditions permit. The other four, though severely damaged, have already been leveled and are suitable for new construction. The surrounding landscape and rubble-stone walls made a strong impression during our initial site survey, and preserving them became our primary principle.
▼场地原状航拍,Aerial view of the site’s original condition© 垣建筑设计工作室
▼冬季的场地原状,The site’s original condition in winter© 垣建筑设计工作室
另外,业主希望酒店及院落能够沿用“北斗七星”的传统来命名,以接续七星村历史。我们欣然接受这个提案,因为深知“自然”和“人文”两种风土都得到尊重和延续,才有可能获得地方性广泛而持久的认同。最终,北斗七星的名字分别落位到了项目的七个节点。
Additionally, the owners wished to name the hotel buildings and courtyards after the “Seven Stars of the Northern Dipper” (Beidou), continuing Qixing Village’s historical theme. We gladly accepted this proposal, recognizing that only by respecting and continuing both natural and cultural traditions can a project gain broad and lasting local acceptance. Ultimately, each of the seven stars was assigned to a distinct node within the project.
▼秋天的建筑群落与山体,The building complex and the mountains in autumn© 垣建筑设计工作室
2、布局与组织
Layout and Organization
前文已经提到,项目选址既与国道及村民生活紧密联系,又身处自然山体之中,由此便出现两个重要命题:第一,如何在开放与共享前提下,平衡好酒店客房的私密品质?第二,如何在山野之间的自然栖居中,创造无约束的放松及丰富体验?为解决命题,我们进行了反复推敲,最终形成如下组织策略。
As previously noted, the site maintains close connections to both the national highway and village life, while also being nestled in natural mountainous terrain. This duality raises two key challenges: first, how to balance guest privacy with openness and shared space? Second, how to create an experience of unrestricted relaxation and rich engagement with nature? After extensive deliberation, we developed the following organizational strategies.
▼鸟瞰天枢廊桥,Aerial view of Tian Shu bridge© 孔锦权
(1)增设廊桥,形成功能复合的纽带
A New Covered Bridge: A Functional and Social Link
我们将设计范围延伸至与七星村及国道相连的既有混凝土桥梁,取名“天枢廊桥”。首先通过地面高差实现人车分离,然后利用简洁的结构和工厂预制的方式,借力桥梁一侧搭建出木结构单坡廊架及休息座椅,同时回应了陕南地区善用木材的朴素传统。建成后的线性廊架将河道两侧连为统一整体,供大家日常驻足、休憩和观景,与国道相连的北端兼具公交站点的等候功能。主城区来向的错层双坡屋顶则成为酒店入口区的重要标志。▼廊桥模型,Model of Tian Shu bridge©垣建筑设计工作室
We extended the design scope to include the existing concrete bridge connecting the site to Qixing Village and the national highway, renaming it “Tian Shu Covered Bridge.” By introducing level changes, we separated pedestrian and vehicular traffic. Using a simple structural system and prefabricated components, we added a single-slope wooden canopy and seating along one side of the bridge, echoing southern Shaanxi’s tradition of wood craftsmanship. The linear canopy unifies both sides of the river, serving as a place for rest, pause, and viewing. The northern end, connected to the highway, also functions as a bus stop. The staggered double-pitched roof on the urban approach side serves as a prominent landmark for the hotel entrance.
▼天枢廊桥与国道,Tian Shu bridge and the National Highway©孔锦权
▼夕阳下的天枢廊桥,Tian Shu bridge under the setting sun©孔锦权
▼天枢廊桥的公交站点服务,Bus stop service at Tian Shu bridge©垣建筑设计工作室
(2)“安静的隐居”与“开放的广阔”
“Quiet Seclusion” and “Open Vastness”
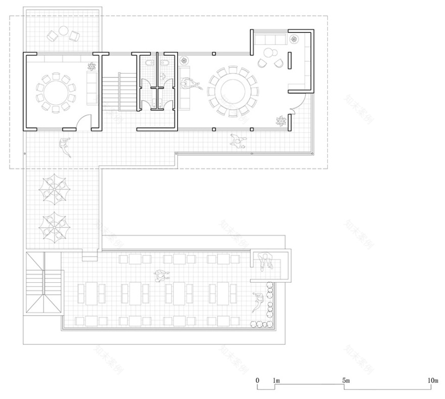
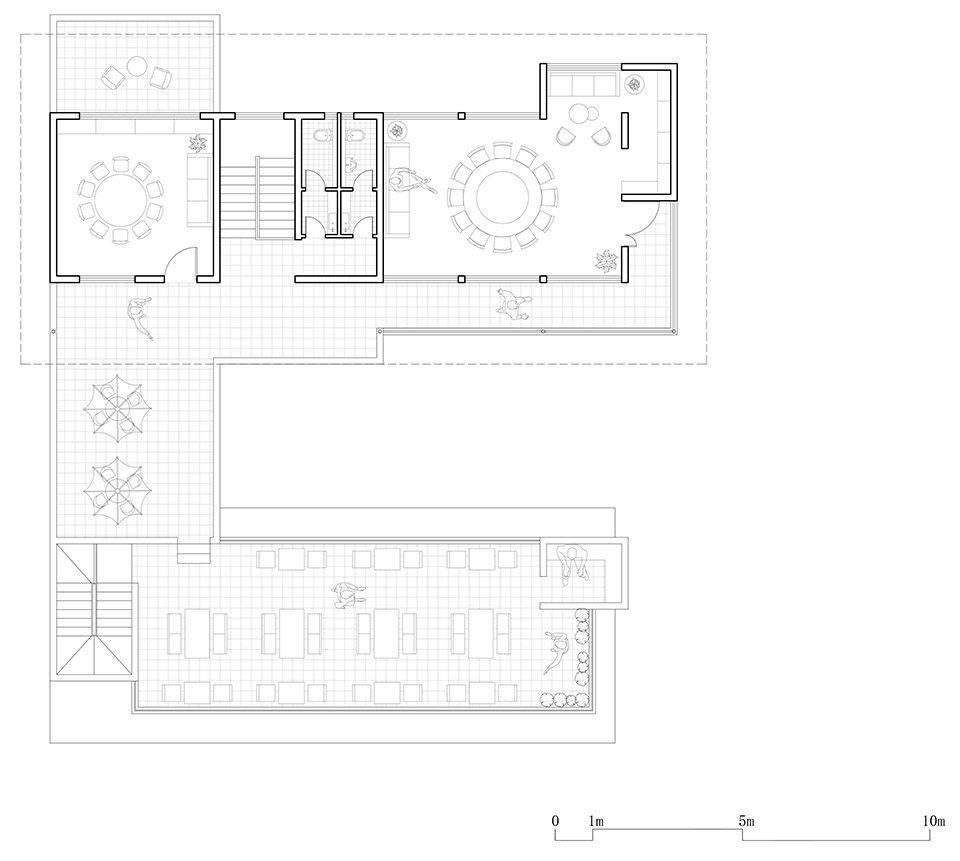
穿过廊桥,入眼便是U形布局的“天璇驿站”,院子开口朝向入口一侧,U形的三翼分别承载咖啡(含接待)、展示及餐厅等对外功能。展厅陈列着当地的土特产品,是业主对外展示家乡的窗口。建筑整体北低南高,临河一侧被完全打开,与环境最大化融通,其屋顶作为观景露台与南翼建筑的二层外廊直接连通。南翼两层建筑作为餐厅区,一层对外开放,二层对内服务,厨房等服务功能藏于角部;▼四组院子的剖面类型,Section types of the four courtyard groups©垣建筑设计工作室
Crossing the bridge, visitors arrive at the U-shaped “Tian Xuan Station.” The courtyard opens toward the entrance, with its three wings housing coffee (with reception), exhibition, and dining functions. The exhibition hall displays local specialty products, serving as a window for the owners to showcase their hometown. The building is lower on the north and higher on the south, with the riverside side fully opened to maximize integration with the surroundings. Its roof doubles as a viewing terrace, directly connected to the second-floor corridor of the southern wing. The two-story southern wing serves as the dining area: the ground floor is open to the public, while the second floor is reserved for internal use, with service areas such as the kitchen tucked into the corners.
▼天璇驿站鸟瞰,Aerial view of Tian Xuan Service Station©孔锦权
▼天璇驿站一隅,A corner of Tian Xuan Service Station©孔锦权
▼天璇驿站咖啡区,The coffee area of Tian Xuan Service Station©孔锦权
▼天璇驿站二层挑廊,Second-floor balcony of Tian Xuan Service Station©孔锦权
▼天璇驿站的U形内院,The U-shaped courtyard of Tian Xuan Service Station©孔锦权
▼天璇驿站餐厅区,Tian Xuan Service Station Restaurant Area©孔锦权
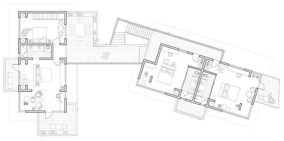
“天权院”位于“天璇驿站”以南的台地之上,两院之间设置有一条与入口区相连并蜿蜒可达后山的汀步路径,强化了连续的漫游体验。“天权院”的建筑主体被保护性的推向靠近泉水的南侧,以获得静谧且阳光充盈的居住氛围。靠山的架空廊桥及北端小茶室与建筑主体共同构成背山面景的L形布局。入口一侧利用毛石墙体的错层限定,形成既开放又私密的前院,坐在院中或漫步于廊桥之上可远望山景,获得无限广阔。
▼天权院顶视剖透,Tian Quan Courtyard Top Sectional Perspective©垣建筑设计工作室
Located on a terrace south of “Tian Xuan Station,” “Tian Quan Courtyard” is linked by a stepping-stone path that winds from the entrance toward the back mountain, enhancing the sense of continuous exploration. The main building is set back toward the spring on the southern edge, ensuring a tranquil and sunlit atmosphere. An elevated walkway along the mountain and a small teahouse at the northern end form an L-shaped layout facing the view, with the mountain at its back. On the entrance side, staggered rubble-stone walls define a forecourt that is both open and private. Sitting in the courtyard or walking along the bridge, one can gaze into the distant mountains, experiencing a sense of boundless space.
▼天权院的廊桥与光影,The corridor bridge and play of light and shadow at Tian Quan Courtyard©孔锦权
▼天权院的内院,The inner courtyard of Tian Quan Courtyard©孔锦权
▼天权院东立面,East elevation of Tian Quan Courtyard©孔锦权
▼天权院入口一隅,A corner of the entrance to Tian Quan Courtyard©孔锦权
▼天权院鸟瞰,Aerial view of Tian Quan Courtyard©孔锦权
“天玑院”位于“天权院”以东的台地之上,可远眺七星村落及远山。因用地较窄,采用一字形满铺。公共部分靠近山路一侧,并与靠山的楼梯共同界定出过渡性的入口空间。公共体量的略微错动形成了对客房区域的限定与保护,其屋顶作为共享露台,可享山林美景。
“Tian Ji Courtyard” sits on a terrace east of “Tian Quan Courtyard,” offering panoramic views of Qixing Village and distant peaks. Due to the narrow site, a linear layout was adopted. Public areas are placed near the mountain path, together with a mountain-side staircase, defining a transitional entrance space. A slight offset in the public volume creates a sense of enclosure and protection for the guest rooms. Its roof serves as a shared terrace with scenic views of the forest.
▼天玑院与开阳院鸟瞰,Aerial view of Tian Ji Courtyard and Kai Yang Courtyard©孔锦权
▼天玑院的屋顶露台,The rooftop terrace of Tian Ji Courtyard ©孔锦权
▼大屋顶之下的天玑院露台,The terrace of Tian Ji Courtyard under the large roof©孔锦权
▼天玑院轻盈的大屋顶,The lightweight large roof of Tian Ji Courtyard©孔锦权
▼与自然交融的天玑院一隅,A corner of Tian Ji Courtyard blending with nature©孔锦权
▼与自然交融的天玑院一隅,A corner of Tian Ji Courtyard blending with nature©孔锦权
“开阳院”位于山体高处,与山路有3米左右高差,私密性较好。两栋二层建筑紧贴后山崖壁,呈L形布局,围合出景观深远的共享前院,形成“安静的隐居”。两个建筑体量之间留出虚空,用通透的廊子相联系,形成后山与前院的融通。漫步式的转折楼梯平行于崖壁,进一步强化场地体验。南翼建筑的一层空间作为公共使用,最大化面向前院及远山,获得“开放的广阔”。最终,差异化的院落组织关系塑造了漫步体验中的变化与惊喜,形成13间各具特色的客房及其公共配套,实现了内外空间最大化的交融,使人获得被解放的愉悦,形成“安静的隐居”与“开放的广阔”之平衡。
“Kai Yang Courtyard” occupies a higher elevation on the mountainside, with about a 3-meter difference from the access road, ensuring high privacy. Two two-story buildings are closely set against the rear cliff, arranged in an L-shape to enclose a shared front courtyard with expansive views—embodying “quiet seclusion.” A transparent corridor links the two volumes across an open void, connecting the back mountain with the front courtyard. A meandering staircase runs parallel to the cliff, further enhancing the spatial experience. The ground floor of the southern building is used for public functions, fully oriented toward the courtyard and distant mountains, achieving “open vastness.” Ultimately, the differentiated courtyard arrangements create variation and surprise throughout the walking experience. The 13 uniquely designed guest rooms and their supporting facilities achieve maximum integration between interior and exterior spaces, liberating the senses and striking a balance between “quiet seclusion” and “open vastness.”
▼开阳院的虚实变化,The interplay of solid and void at Kai Yang Courtyard©孔锦权
▼开阳院轻盈的屋顶与虚实变化,The lightweight roof and interplay of solid and void at Kai Yang Courtyard©孔锦权
▼开阳院的内院夜景,Night view of the inner courtyard of Kai Yang Courtyard©孔锦权
▼开阳院鸟瞰,Aerial view of Kai Yang Courtyard©孔锦权
3、建造与实现
Construction and Realization
(1)结构体系
Structural System
在空间体验丰富性的目标下,我们采用了“混凝土异形剪力墙或柱+厚板”的结构体系,是一种既利于施工,又有足够自由度来应对乡建施工不确定性的方式。经过综合研判,异形剪力墙或柱,有序分散在空间四周,实现了某种程度的“消隐”。“暗梁”隐匿在“厚板”中与异形墙柱进行“暗中”拉结,实现了内部空间的完整统一,并可以向外无阻隔的延展。室内装修也能充分利用层高,甚至裸露结构表面以节约造价。“厚板”也大大提高了施工效率,避免厚度不一可能产生的钢筋绑扎、模板支护等问题,从而规避了乡建施工能力与协调组织的不足。从建成的效果来看,纯净的楼板和各构件的干净交接,给予空间纯粹简洁的特质,营造出“结构即空间”的美学氛围,不失为乡建的一种参考范式。
To achieve rich spatial experiences, we adopted a structural system combining “irregular concrete shear walls or columns with thick slabs.” However, we sought a system that was both construction-friendly and flexible enough to accommodate the uncertainties of rural building. After comprehensive analysis, we distributed irregular shear walls or columns around the perimeter of spaces, achieving a degree of “invisibility.” Hidden beams embedded within the thick slabs connect seamlessly with the irregular walls and columns, maintaining spatial integrity and enabling unobstructed outward expansion. Interior finishes can fully utilize ceiling height, and structural surfaces are sometimes left exposed to reduce costs. The thick slab system also significantly improved construction efficiency, avoiding complications from varying slab thicknesses—such as rebar tying and formwork issues—thus compensating for limitations in rural construction capabilities and coordination. The clean, unadorned slab surfaces and precise junctions between components create a pure, minimalist spatial quality, establishing an aesthetic where “structure is space”—a valuable reference for rural architecture.
▼厚板水平延伸至室外形成轻盈的廊子,The thick slab extends horizontally outdoors forming a lightweight corridor©垣建筑设计工作室
(2)挑楼与挑檐
Cantilevered Floors and Eaves
项目用地局促,我们借鉴了陕南民居的“挑楼”做法,在悬挑方向增加钢筋的直径和布置密度,同时增设放射钢筋以有效控制混凝土板的开裂和变形,最终厚板得以悬挑1.5至2米,有效增加了2层的使用面积,同时解放出角部空间融通外部。阳光下的阴影关系也减弱了体量的厚重,塑造出轻盈漂浮于山体之中的形象。其次,我们延续了陕南民居的大屋顶形态,通过钢结构及金属板(工厂预制,保证时间、质量及造价的可控),实现了双坡屋顶的大悬挑,使之覆盖出利于活动的半室外空间。屋顶檐口的线性收窄进一步削弱重量感,使大屋顶整体如浮游在空中一般轻盈。钢结构屋架与二楼屋面板之间形成传统的“闷顶”空间,加强了客房区的保温隔热,同时作为设备铺设。
Given the limited site area, we adopted the southern Shaanxi “tiao lou” (stilted balcony) approach, increasing rebar diameter and density in cantilevered sections and adding radial reinforcement to effectively control cracking and deformation in concrete slabs. This allowed the thick slabs to cantilever 1.5 to 2 meters, significantly expanding second-floor usable area and freeing up corner spaces for outdoor integration. The resulting shadows under the overhangs soften the perceived mass, creating an image of lightness and buoyancy hovering over the mountainside. Additionally, we retained the large roof forms typical of southern Shaanxi dwellings. Using prefabricated steel frames and metal roofing (ensuring control over time, quality, and cost), we achieved deep roof overhangs that create semi-outdoor spaces suitable for activities. The linear narrowing of the eaves further reduces visual weight, making the large roofs appear to float in midair. The space between the steel roof trusses and the second-floor slab forms a traditional “attic” space, improving thermal insulation for guest rooms and serving as a utility zone.
▼钢结构大屋顶,Large steel roof structure©垣建筑设计工作室
(3)轻快自然
Lightness and Naturalness
因为工期及造价的原因,我们最终选用了质感灰作为建筑外墙的主材,与清水混凝土及当地砖石和崖壁共同勾勒出朴素的基调。室内及软装设计也在“轻快自然”的目标下,依据每个院落及空间特征,搭配砖、石、土、木、竹等自然材质的家装器具,细腻的塑造出温暖柔和的气氛,进一步强化出官体验上“静谧安居”与“开放流动”之间的平衡。
Due to budget and schedule constraints, we selected a gray-toned finish as the primary exterior material, harmonizing with exposed concrete, local stone, and the natural cliff face to establish a humble, grounded aesthetic. Interior and soft furnishing design, guided by the principle of “lightness and naturalness,” employs natural materials—brick, stone, earth, wood, and bamboo—selected according to each courtyard’s unique character. These materials delicately create a warm, gentle atmosphere, further reinforcing the balance between “tranquil dwelling” and “open flow” in the user experience.
▼开阳院二层挑廊与崖壁,The second-floor balcony of Kai Yang Courtyard and the cliff face©孔锦权
▼开阳院檐下空间与崖壁 ,The eaves space of Kai Yang Courtyard and the cliff face©孔锦权
▼天玑院檐下空间,The eaves space of Tian Ji Courtyard©垣建筑
▼开阳院的虚实变化,The interplay of solid and void at Kai Yang Courtyard©垣建筑
▼室内公共空间,Indoor public space©四碗儿
▼室内公共空间,Indoor public space©四碗儿
▼室内客房空间,Indoor guest room©四碗儿
五、小结:Conclusion
北斗山居是一次各方通力合作的乡建项目,困难与不确定性让它更像是一种地方性的自我挖掘与实验,里面交融着地方经验与现代意识、传统技艺与工业技术,最终呈现出既抽象又朴素的在地化品质,诠释着现代陕南民居的另一种可能。
Beidou Mountain Homestay is a collaborative rural architecture project. Its challenges and uncertainties transformed it into a kind of local self-exploration and experiment, blending regional experience with modern sensibilities, traditional craftsmanship with industrial techniques. The result is a locally grounded architecture that is both abstract and humble, offering an alternative vision for contemporary southern Shaanxi dwellings.
▼静谧的天权院,Tranquil Tian Quan Courtyard©孔锦权
▼整体鸟瞰北斗山居,Overall aerial view of Beidou Mountain Residence©孔锦权
▼天璇驿站一层平面,Tian Xuan Service Station 1F©垣建筑设计工作室
▼天璇驿站二层平面,Tian Xuan Service Station 2F©垣建筑设计工作室
▼天璇驿站剖面图,Tian Xuan Service Station – Section©垣建筑设计工作室
▼天权院一层平面,Tian Quan Courtyard 1F©垣建筑设计工作室
▼天权院二层平面,Tian Quan Courtyard 2F©垣建筑设计工作室
▼天权院剖面图,Tian Quan Courtyard Section©垣建筑设计工作室
▼天玑院一层平面,Tian Ji Courtyard 1F©垣建筑设计工作室
▼天玑院二层平面,Tian Ji Courtyard 2F©垣建筑设计工作室
▼天玑院剖面,Tian Ji Courtyard section©垣建筑设计工作室
▼开阳院一层平面,Kai Yang Courtyard 1F©垣建筑设计工作室
▼开阳院二层平面,Kai Yang Courtyard 2F©垣建筑设计工作室
▼开阳院剖面,Kai Yang Courtyard Section©垣建筑设计工作室
项目名称:商洛七星村北斗山居民宿群落
项目类型:酒店类
设计方:垣建筑设计工作室(西安建筑科技大学建筑学院)
项目设计:2024.01-2024.04
完成年份:2025.03
设计团队:吴瑞,王毛真,刘泽宪,高佳乐,侯兰欣,王慧,汪鹏飞,刘蓓,王岚,张木岩,全俊龙
合作建筑师:白翌尧,李轩
结构:胡晓劼
给排水:燕博
电气:鲁晓林
室内:陈醉-酉言设计(天权院,开阳院);西安殷朝伟空间设计研究院有限公司(天璇驿站,天玑院)
视觉:见筑UookArch,杜习邦
施工:陕西乾佑建设工程有限责任公司
项目地址:中国陕西省商洛市商州区三岔河镇七星村
建筑面积:1500㎡
摄影版权:孔锦权,四碗儿
客户:陕西城外云光文化旅游投资有限公司
材料:钢筋混凝土、钢、铝镁锰屋面板、铝板、玻璃、天然石材、生土
Project name:Beidou mountain boutique hotel
Project type:Hotel
Design::Wall Architects(School of Architecture, Xi’an University of Architecture and Technology)
Design year:2024.01-2024.04
Completion Year:2025.03
Leader designer & Team:Wu Rui, Wang Maozhen, Liu Zexian, Gao Jiale, Hou Lanxin, Wang Hui, Wang Pengfei, Liu Bei, Wang Lan, Zhang Muyan, Quan Junlong
Collaborating Architects: Bai Yiyao, Li Xuan
Structure: Hu Xiaojie
Plumbing: Yan Bo
Electrical: Lu Xiaolin
Interior Design: Chen Zui – Youyan Design (Tian Quan Courtyard, Kai Yang Courtyard); Xi’an Yin Chaowei Space Design Research Institute Co., Ltd. (Tian Xuan Courtyard, Tian Ji Courtyard)
Visualization: UookArch, Du Xibang
Contractor: Shaanxi Qianyou Construction Engineering Co., Ltd.
Project location:Qixing Village, Sanchahe Town, Shangzhou District, Shangluo City, Shaanxi Province, China
Gross built area: 1500㎡
Photo credit: Kong Jinquan, Si Wan’er
Clients:Shaanxi Chengwai Yunguang Cultural Tourism Investment Co., Ltd.
Materials:Reinforced concrete, steel, aluminum-magnesium-manganese roofing panels, aluminum panels, glass, natural stone, rammed earth
客服
消息
收藏
下载
最近

























































































